Kinnaird House 3 Drymen Wynd

G61 2UB

Siobhan Cox

Director

0141 943 3150

bearsden@rettie.co.uk

G61 2UB

6 Receptions
8 Beds
7 Baths
8964 Sq ft

A significant residence, with swimming pool, and arguably Bearsden's largest home.

 

 

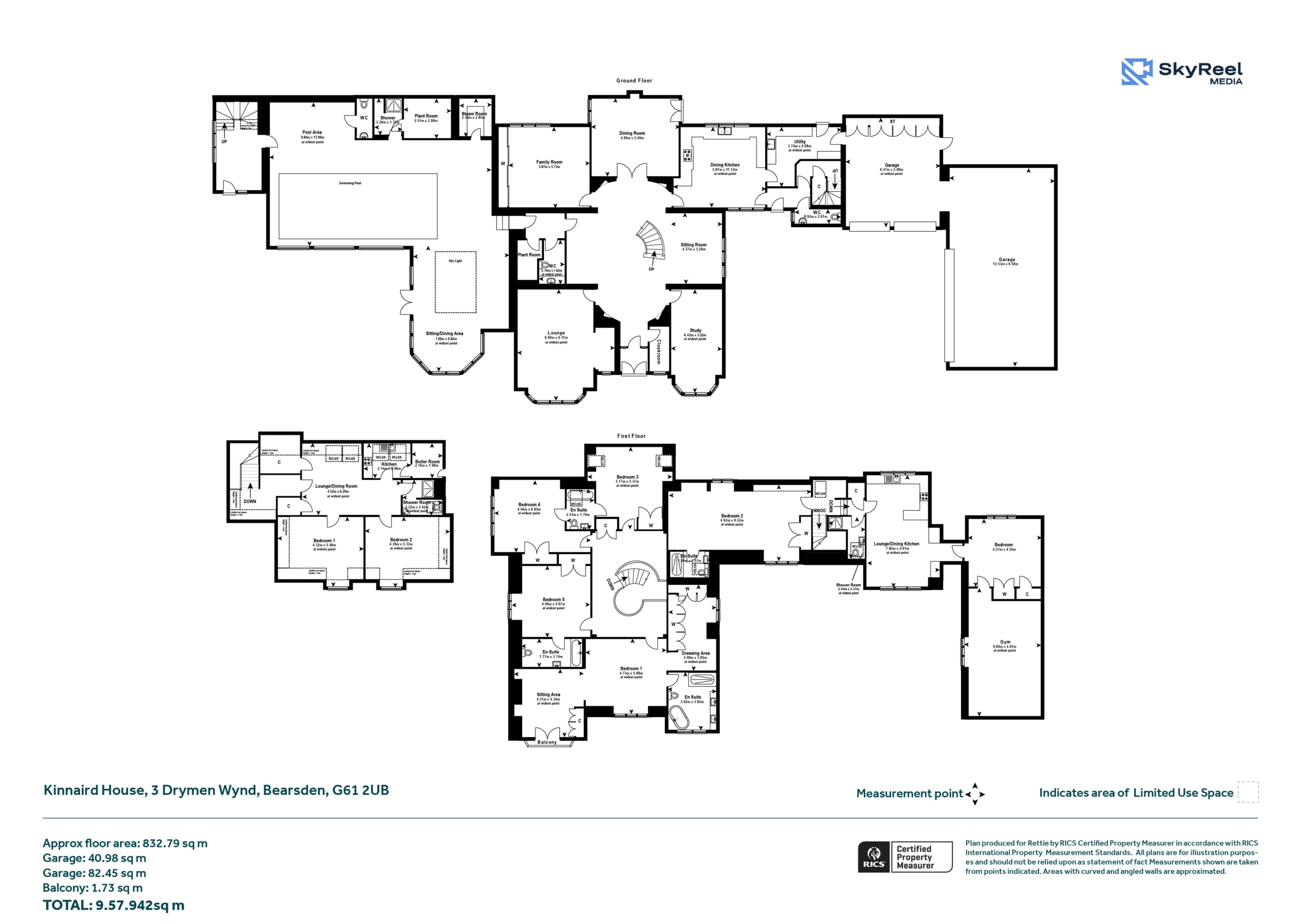
Built in 2002 and designed by Ratcliffe Groves Architects, Kinnaird House is a sizeable home, with east and west wings, with nearly 9000 sq ft (834 sq m) accommodation and with double and triple garages of 1323 sq ft (123 sq m) in a little known, private, conservation setting of some 0.82 acre.

 

The main, central, house has five bedrooms and five public rooms with the east wing providing a guest/staff flat and gym with the west wing home to the large swimming pool facility, with Orangerie style sitting/dining area, and a further self-contained two-bedroom flat for family/guests/staff.

 

Designed in a traditional style with natural sandstone, slate roofs, wet-dash render, and timber double glazed windows the house, whilst less than 25 years old, will be in the exclusive group of the area's finest homes.

Siobhan Cox

Director

0141 943 3150

bearsden@rettie.co.uk

Enter the Fully Immersive 360 Tour

Summary of Accommodation

Main House, Ground Floor

Vestibule, grand hall and staircase with sitting room, lounge, family room, dining room, study, dining kitchen, utility room, two WCs.

Main House, First Floor

Hall with fine roof cupola, primary suite with bedroom, sitting room with balcony, dressing room, and large bathroom, four further bedrooms all with ensuite facilities.

East Wing, First Floor

Lounge with open plan kitchen, bedroom, shower room, gymnasium.

West Wing, Ground Floor

Swimming pool complex with large pool, sitting/dining area in an Orangerie style with large roof light, changing room with shower, WC, steam room, plant room, private “west” entrance hall.

West Wing, First Floor

Hall, lounge, two bedrooms, kitchenette, shower room.

Garages

Integral to the house there is both a double garage and, connected, a triple garage both of which have remote controlled doors.

Outside Space

The garden extends to some 0.82 acre and is in a private conservation area surrounded by native and rare specimen trees. A sizeable lawn is great for kids and a stone sun terrace outside the west wing makes for a wonderful socialising spot in spring and summer months. In front of the garage is a large courtyard parking area. Pathways lead around either side of the property and to the very rear of the house is a further sundeck sitting area accessed both from the dining room and the utility.

General Remarks & Information

Fixtures and Fittings:

Only appliances specifically mentioned in the sales particulars are included in the sale price. In all other aspects the treatment of fixtures and fittings within the relevant Conveyancing Standard Clauses apply.

Services:

Gas heating, mains water, electricity, broadband, telephone (subject to telephone providers’ regulations).

Viewing:

By appointment through Rettie Bearsden. 165 Milngavie Road, Glasgow, Strathclyde, G61 3DY. Email: bearsden@rettie.co.uk Tel: 0141 943 3150

Offers:

Offers should be submitted in Scottish Legal Form to the selling agents Rettie & Co. A closing date by which offers must be submitted may be fixed later. Please note that interested parties are advised to register their interest with the selling agents in order that they may be advised should a closing date be set. The seller reserves the right to accept any offer at any time.

Council Tax Band:

H

Postcode:

G61 2UB

Tenure:

Not Specified

Particulars Prepared:

3 September 2025

This property and other properties offered by Rettie & Co. & Rettie LLP's. can be viewed on our website at www.rettie.co.uk as well as Rightmove, OnTheMarket and The London Office.

The property is sold subject to and with the benefit of all servitude rights, burdens, reservations and wayleaves including rights of access and rights of way, whether public or private, light, support, drainage, water and wayleaves for masts, pylons, stays, cable, drains and water, gas and other pipes whether contained in the title deeds or informally constituted and whether or not referred to above.

Rettie, their clients and any joint agents give notice that:

  1. They are not authorised to make or give any representations or warranties in relation to the property either in writing or by word of mouth. Any information given is entirely without responsibility on the part of the agents or the sellers. These particulars do not form part of any offer or contract and must not be relied upon as statements or representations of fact.
  2. All Rettie floorplans are drawn to RICS standard. The text, photographs and plans are for guidance only and are not necessarily comprehensive and it should not be assumed that the property remains as photographed. Any error, omission or mis-statement shall not annul the sale or entitle any party to compensation or recourse to action at law. It should not be assumed that the property has all necessary planning, building regulation or other consents, including for its current use. Rettie & Co. & Rettie LLP’s have not tested any services, equipment or facilities. Purchasers must satisfy themselves by inspection or otherwise and ought to seek their own professional advice.
  3. All descriptions or references to condition are given in good faith only. Whilst every endeavour is made to ensure accuracy, please check with us on any points of especial importance to you, especially if intending to travel some distance. No responsibility can be accepted for expenses incurred in inspecting properties which have been sold or withdrawn.
Under the HMRC Anti Money Laundering legislation all offers to purchase a property on a cash basis or subject to mortgage require evidence of source of funds. This may include evidence of bank statements/funding source, mortgage or confirmation from a solicitor the purchaser has the funds to conclude the transaction.

All individuals involved in the transaction are required to produce proof of identity and proof of address. Rettie use electronic verification, if this is not possible original documents are acceptable.
  1. The property is sold with all faults and defects, whether of condition or otherwise and neither the seller nor Rettie & Co. or Rettie LLP’s, the selling agent, are responsible for such faults and defects, nor for any statement contained in the particulars of the property prepared by the said agent.
  2. The Purchaser(s) shall be deemed to acknowledge that they have not entered into contract in reliance on the said statements, that they are satisfied themselves as to the content of each of the said statements by inspection or otherwise and that no warranty or representation has been made by the seller or the said agents in relation to or in connection with the property.
  3. Any error, omission or misstatement in any of the said statements shall not entitle the purchaser(s) to rescind or to be discharged from this contract, nor entitle either party to compensation or damages nor in any circumstances to give either party any cause for action.

Location

Drymen Wynd is a discreet and little-known private lane off Drymen Road, half mile south of Bearsden Cross. Its use is shared by only six others with only one property being an immediate neighbour. Whilst tucked away and out of sight it is only minutes’ walk to Bearsden railway station (1/3 mile). School catchment is Bearsden Primary (at The Cross) and the consistently high-performing Bearsden Academy. On Ledcameroch Road, and only ¾ mile away, is the junior school for The High School of Glasgow.

Sat NAV ref: G61 2UB

What3Words: mice.museum.pinks

Contact us

    Siobhan Cox

    Director

    0141 943 3150

    bearsden@rettie.co.uk