51g Montrose Drive

Bearsden, Glasgow, G61 3JY

Siobhan Cox

Director

0141 943 3150

bearsden@rettie.co.uk

Bearsden, Glasgow, G61 3JY

1 Receptions
2 Beds
1 Baths
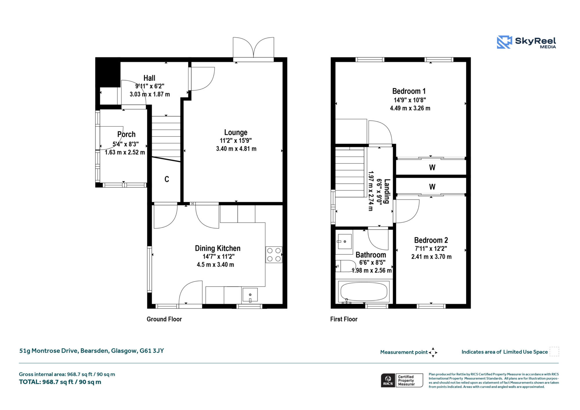
969 Sq ft

An extensively upgraded, and beautifully presented, End Terraced House in the highly desirable district of Mosshead. 

  • Modern End Terraced House
  • Significantly invested upon from 2021 including:
  • Very smart dining kitchen
  • Fully tiled, by Porcelanosa, bathroom
  • uPVC double glazing
  • Gas central heating system with combination boiler
  • Additionally, underfloor heating in lounge, dining kitchen, bathroom
  • Replacement oak internal doors
  • Quality carpet and tile flooring
  • Garden
  • Mosshead Primary and Bearsden Academy catchment 

Description 

Forming part of a small 15-unit development, built in the 1980s, a beautifully presented and very impressively spec’d End Terraced House. 

The original purchaser of the property had the builder configure it as a 2-bedroom home, the principal bedroom occupying the floorspace of bedrooms 1 and 3 in other comparable properties within the development. 

Our clients purchased the house in 2020 and from 2021 onwards have improved nearly all aspects to include the renewal of windows (uPVC double glazed units, finished in a dark woodgrain to the exterior and white to the interior. Only the entrance porch retains older old white units); a new gas central heating system (with Worcester Greenstar condensing combination boiler and modern radiators) and in the lounge, dining kitchen and bathroom the added luxury of electric underfloor heating; a lovely Howdens Shaker kitchen in sage green colour, with integrated appliances; a fully tiled luxury bathroom, by Porcelanosa; oak door sets, stair handrail, and upper hall oak/glass balustrade; new floor coverings (carpet to the stairs, upper hall, and bedrooms with tiling, again by Porcelanosa, elsewhere - really smart “woodplank” design throughout the ground floor and the cool grey coloured tile to the bathroom; upgraded doors fitted to the sliding wardrobes in both bedrooms; redecoration throughout.


Siobhan Cox

Director

0141 943 3150

bearsden@rettie.co.uk

Enter the Fully Immersive 360 Tour

Summary of Accommodation

Ground Floor

A good sized entrance porch, double glazed around two sides, with brick wall feature retained. Reception hall. Lounge with double glazed French doors (white New England style wooden shutter blinds) opening to a southwest orientated garden. The dining kitchen has a good complement of units with marble style laminate worktops and a quite striking designed white wall tile. Under unit kitchen lights cast a lovely tone of an evening. Integrated appliances include - induction hob, cooker hood, oven, microwave, and, integrated, a fridge-freezer, dishwasher, and washer-dryer. As with the lounge there is a French door to a northeast orientated patio garden. Windows to two elevations throw plenty of light into this room. Understair storage cupboard (boiler here).


First Floor

The staircase ascends to the first floor hallway featuring a really smart oak and glass balustrade/screen and a feature triangular shaped oriel bay window. Two double bedrooms. Fully tiled bathroom with a powerful thermostatic shower, with both deluge and hand shower heads, set over the bath. A large wall vanity mirror, with halo lighting, is a notable design feature and a tall radiator provides both heat and, again, design.

Outside

The house sits on the corner of Montrose Drive and Lennox Court and has two main areas of garden with a further smaller section at the front entrance path. The principal area lies to the west side of the house, accessed from the lounge French doors and with a gate from the front garden. This lies to gravel, is fully enclosed by fencing (and the gate) and features an appealingly different decking arrangement utilising galvanised mild steel - really contemporary look. The second section of garden, again all enclosed (fencing, gate, and brick wall) is to the rear of the house accessed from the kitchen French door. This is laid to slab.

The development has parking bays and a small car park for residents. No.51g uses, through custom and practise, the parking space immediately by its front door (note: this does not form part of the title).

General Remarks & Information

Fixtures and Fittings:

Only appliances specifically mentioned in the sales particulars are included in the sale price. In all other aspects the treatment of fixtures and fittings within the relevant Conveyancing Standard Clauses apply.

Services:

Gas heating, mains water, electricity, broadband, telephone (subject to telephone providers’ regulations).

Viewing:

By appointment through Rettie Bearsden. 165 Milngavie Road, Glasgow, Strathclyde, G61 3DY. Email: bearsden@rettie.co.uk Tel: 0141 943 3150

Offers:

Offers should be submitted in Scottish Legal Form to the selling agents Rettie & Co. A closing date by which offers must be submitted may be fixed later. Please note that interested parties are advised to register their interest with the selling agents in order that they may be advised should a closing date be set. The seller reserves the right to accept any offer at any time.

Council Tax Band:

D

EPC Rating:

C

Postcode:

G61 3JY

Tenure:

Freehold

This property and other properties offered by Rettie & Co. & Rettie LLP's. can be viewed on our website at www.rettie.co.uk as well as Rightmove, OnTheMarket and The London Office.

The property is sold subject to and with the benefit of all servitude rights, burdens, reservations and wayleaves including rights of access and rights of way, whether public or private, light, support, drainage, water and wayleaves for masts, pylons, stays, cable, drains and water, gas and other pipes whether contained in the title deeds or informally constituted and whether or not referred to above.


Under the HMRC Anti Money Laundering legislation all offers to purchase a property on a cash basis or subject to mortgage require evidence of source of funds. This may include evidence of bank statements/funding source, mortgage or confirmation from a solicitor the purchaser has the funds to conclude the transaction.

All individuals involved in the transaction are required to produce proof of identity and proof of address. Rettie use electronic verification, if this is not possible original documents are acceptable.


Location

The Mosshead estate is on the northerly edge of Bearsden yet is only just over one mile, by direct line on foot, to Bearsden Cross (and approx 1.5 mile by car). It is close to the beauty spot of Kilmardinny Loch around which is a lovely woodland walk. Very popular with families due to the local primary school and from being in the catchment for Bearsden Academy beside which is St Nicholas Primary. On Stockiemuir Avenue is a well stocked Co-op mini market with Bearsden’s main shops to be found at The Cross or Kessington. At the top of the estate is Bearsden Ski Club with its two slopes and clubhouse. Beyond the nearby Mosshead Park, via Mosshead Road, is a relatively short walk to the brilliant facilities of the, local-authority, Allander Sports Centre at Kilmardinny as well as the private Pure Gym on Milngavie Road.

Sat NAV ref: G61 3JY

Contact us

    Siobhan Cox

    Director

    0141 943 3150

    bearsden@rettie.co.uk