2 Thorn Heights

Bearsden, Glasgow, G61 4AZ

Siobhan Cox

Director

0141 943 3150

bearsden@rettie.co.uk

Bearsden, Glasgow, G61 4AZ

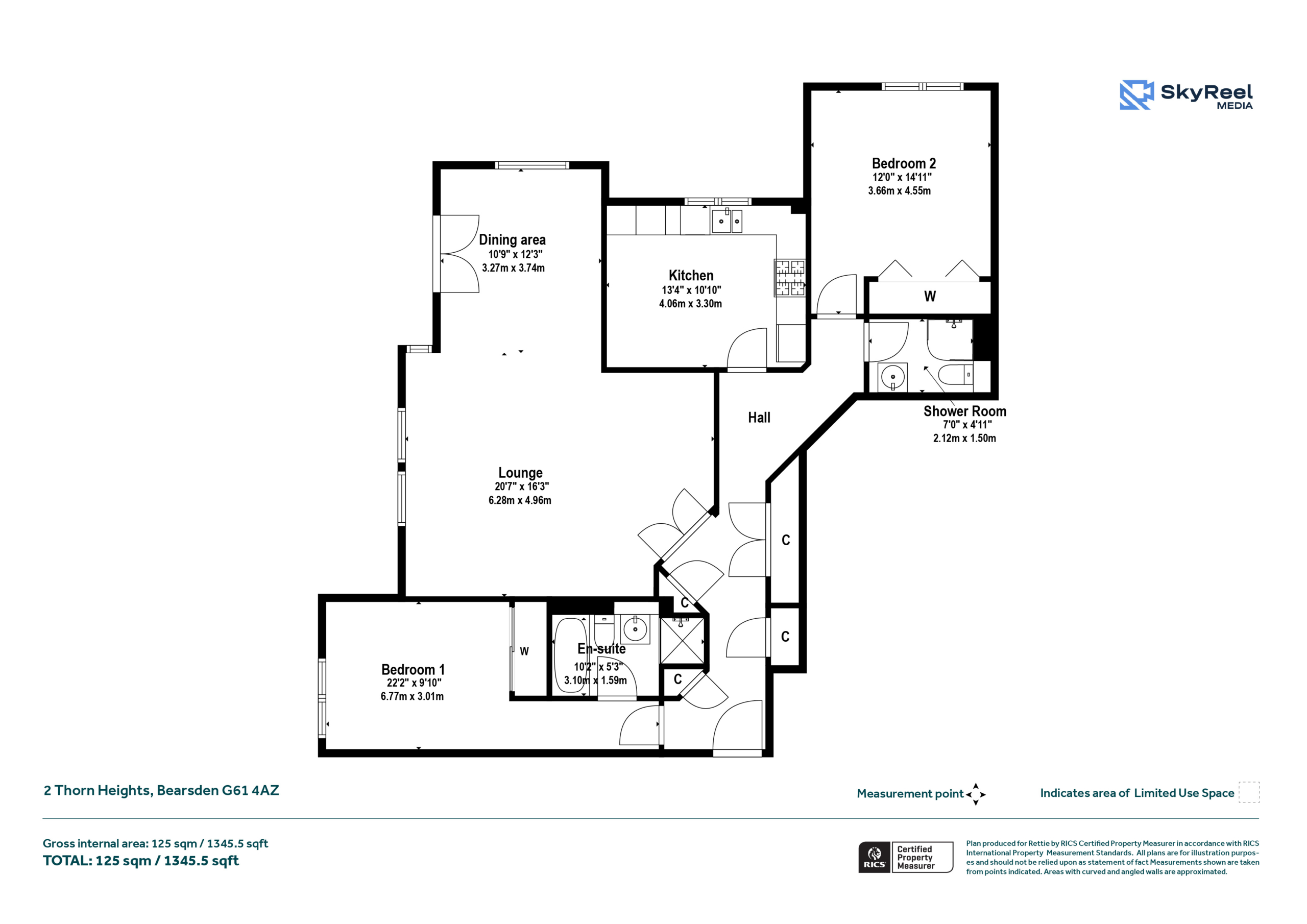
1 Receptions
2 Beds
2 Baths
1345 Sq ft

• An executive two bedroomed apartment

• Part of exclusive/luxury development by Lorimer Homes

• Beautifully finished

• Fabulous location just over half a mile from Bearsden Cross

• Lift to all floors

• Ground floor position with terrace

• 2 Bedrooms

• Ensuite Bathroom and separate shower room

• Gas central heating

• Residents (allocated space) and visitor car parking

• Lovely, landscaped resident’s gardens 

Lorimer Homes built Thorn Heights years circa 2005/2006 upon the leafy southerly grounds of the former seminary, Scotus College, the centrepiece of which is the Victorian mansion house, Chesters House. Lorimer were known for the quality of their designs and the high specification of their developments, and this is clearly on show at Thorn Heights. The two blocks (East and West) are beautifully finished in reconstituted stone and sit amidst lovely residents’ gardens off Chesters Road.

No.2 is as a warmly presented and very smart example of these outstanding apartments.

As a property, it should appeal to both couples and individuals, with many of the residents at Thorn Heights having moved from larger family homes seeking easy and comfortable living for their retirement/semi-retirement. Common areas are well maintained and managed by the appointed property management company, Redpath Bruce of Glasgow in conjunction with the residents.

Siobhan Cox

Director

0141 943 3150

bearsden@rettie.co.uk

Enter the Fully Immersive 360 Tour

Summary of Accommodation

Our suite of HDR images, 360° immersive tour, HD video and floorplan will allow for thorough desktop appraisal of the property, with a summary of the accommodation to be found as follows:-
Summary of Accommodation
• Reception hallway
• Spacious lounge/dining room (terrace accessed off dining area)
• Dining kitchen with range of quality appliances
• Two double bedrooms
• Ensuite bathroom off principal bedroom
• Shower room off the hallway.

General Remarks & Information

Fixtures and Fittings:

Only appliances specifically mentioned in the sales particulars are included in the sale price. In all other aspects the treatment of fixtures and fittings within the relevant Conveyancing Standard Clauses apply.

Services:

Gas heating, mains water, electricity, broadband, telephone (subject to telephone providers’ regulations).

Viewing:

By appointment through Rettie Bearsden. 165 Milngavie Road, Glasgow, Strathclyde, G61 3DY. Email: bearsden@rettie.co.uk Tel: 0141 943 3150

Offers:

Offers should be submitted in Scottish Legal Form to the selling agents Rettie & Co. A closing date by which offers must be submitted may be fixed later. Please note that interested parties are advised to register their interest with the selling agents in order that they may be advised should a closing date be set. The seller reserves the right to accept any offer at any time.

Council Tax Band:

G

EPC Rating:

B

Postcode:

G61 4AZ

Tenure:

Freehold

This property and other properties offered by Rettie & Co. & Rettie LLP's. can be viewed on our website at www.rettie.co.uk as well as Rightmove, OnTheMarket and The London Office.

The property is sold subject to and with the benefit of all servitude rights, burdens, reservations and wayleaves including rights of access and rights of way, whether public or private, light, support, drainage, water and wayleaves for masts, pylons, stays, cable, drains and water, gas and other pipes whether contained in the title deeds or informally constituted and whether or not referred to above.

Rettie, their clients and any joint agents give notice that:

  1. They are not authorised to make or give any representations or warranties in relation to the property either in writing or by word of mouth. Any information given is entirely without responsibility on the part of the agents or the sellers. These particulars do not form part of any offer or contract and must not be relied upon as statements or representations of fact.
  2. All Rettie floorplans are drawn to RICS standard. The text, photographs and plans are for guidance only and are not necessarily comprehensive and it should not be assumed that the property remains as photographed. Any error, omission or mis-statement shall not annul the sale or entitle any party to compensation or recourse to action at law. It should not be assumed that the property has all necessary planning, building regulation or other consents, including for its current use. Rettie & Co. & Rettie LLP’s have not tested any services, equipment or facilities. Purchasers must satisfy themselves by inspection or otherwise and ought to seek their own professional advice.
  3. All descriptions or references to condition are given in good faith only. Whilst every endeavour is made to ensure accuracy, please check with us on any points of especial importance to you, especially if intending to travel some distance. No responsibility can be accepted for expenses incurred in inspecting properties which have been sold or withdrawn.
Under the HMRC Anti Money Laundering legislation all offers to purchase a property on a cash basis or subject to mortgage require evidence of source of funds. This may include evidence of bank statements/funding source, mortgage or confirmation from a solicitor the purchaser has the funds to conclude the transaction.

All individuals involved in the transaction are required to produce proof of identity and proof of address. Rettie use electronic verification, if this is not possible original documents are acceptable.
  1. The property is sold with all faults and defects, whether of condition or otherwise and neither the seller nor Rettie & Co. or Rettie LLP’s, the selling agent, are responsible for such faults and defects, nor for any statement contained in the particulars of the property prepared by the said agent.
  2. The Purchaser(s) shall be deemed to acknowledge that they have not entered into contract in reliance on the said statements, that they are satisfied themselves as to the content of each of the said statements by inspection or otherwise and that no warranty or representation has been made by the seller or the said agents in relation to or in connection with the property.
  3. Any error, omission or misstatement in any of the said statements shall not entitle the purchaser(s) to rescind or to be discharged from this contract, nor entitle either party to compensation or damages nor in any circumstances to give either party any cause for action.

Location

Thorn Heights enjoys a most established and leafy setting by virtue of the Chesters House origins. It is in the highly admired Thorn district and is located off Chesters Road. Nearby is Thorn Park, Thorn Tennis Club, and Bearsden Golf Course. Bearsden Cross, the heart of the town, is but half a mile to the east where there is an excellent selection of shops, cafés, restaurants, a well-stocked post office, and a Marks & Spencer food hall. Bearsden railway station is just south of The Cross and provides regular services to Glasgow’s West End and City Centre. The Cross has churches of various denominations, doctor and dental practices and, at its heart, Bearsden’s Library and Community Hub (temporarily closed).

This a very appealing luxury apartment.

SAT NAV REF: G61 4AZ

Contact us

    Siobhan Cox

    Director

    0141 943 3150

    bearsden@rettie.co.uk