The Elms, 14 Clouds

Duns, Scottish Borders, TD11 3BB

Duns, Scottish Borders, TD11 3BB

2 Receptions
4 Beds
2 Baths
3261 Sq ft

Set in an elevated position with open views across the surrounding landscape, The Elms is a striking four-bedroom, semi-detached home formed from the sympathetic conversion of a former United Secession Church. This Grade C listed property blends historic character with generous living space, offering a unique and versatile home in a peaceful and highly desirable setting on the edge of Duns.

The property comprises four bedrooms, flexible reception space and externally benefits from a garage and stone outbuilding, ideal for storage or workshop use. The enclosed rear garden provides a private and secure outdoor space, whilst the elevated position ensures attractive open views and a feeling of privacy.

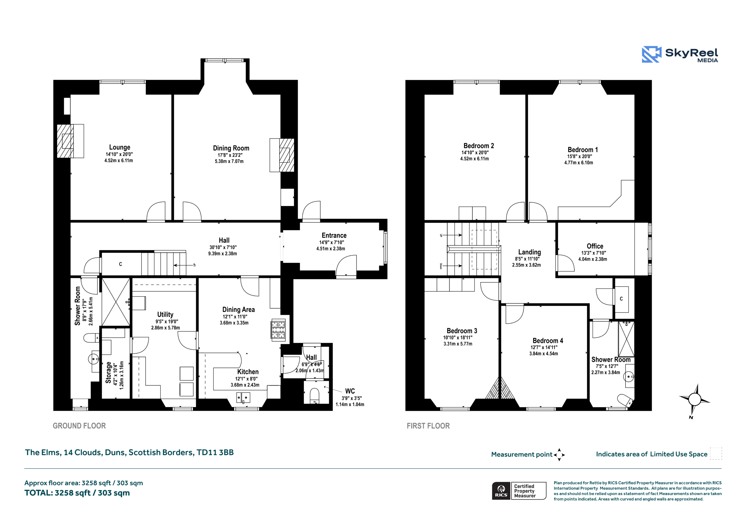
Accommodation Comprises: 

First Floor: Reception Hall, Dining Room, Lounge, Kitchen, Utility, Cloakroom, Wet Room.

Second Floor: Landing, Four Bedrooms, Office, Bathroom.

Outside: Enclosed Rear Garden, Garage, Stone Outbuilding.

Distances: Berwick-upon-Tweed 15 miles, Edinburgh 40 miles, Newcastle 65 miles.

Summary of Accommodation

Set on the desirable street of Clouds in Duns, this striking four-bedroom semi-detached home is a converted former church, occupying an elevated position with far-reaching views across its enclosed garden, the town, and towards the historic Duns Castle. Rich in character and architectural interest, the property blends its ecclesiastical heritage with versatile family accommodation over two floors.

The first floor welcomes you via a spacious reception hall, leading to a formal dining room and an impressive lounge, ideal for both everyday living and entertaining. The kitchen is well proportioned and complemented by a separate utility room, while a cloakroom and wet room add further practicality.

On the second floor, a generous landing provides access to four well-proportioned bedrooms, offering flexible accommodation for families or guests. An additional office space is ideal for home working, while a family bathroom completes the upper level.

Externally, the enclosed rear garden provides a private and sheltered outdoor space, enjoying elevated views over the surrounding area. A garage and traditional stone outbuilding offer excellent storage or potential for further use, subject to any necessary consents.

Tenure: Freehold
EPC: D (58)
Servicing: All mains services connected.
Council Tax Band: F
Agents Notes: Please be aware the property is grade C listed and lies within a conservation area.

General Remarks & Information

Fixtures and Fittings:

Only appliances specifically mentioned in the sales particulars are included in the sale price. In all other aspects the treatment of fixtures and fittings within the relevant Conveyancing Standard Clauses apply.

Services:

Gas heating, mains water, electricity, broadband, telephone (subject to telephone providers’ regulations).

Viewing:

By appointment through Rettie Berwick. 50 Hide Hill, Berwick‑Upon‑Tweed, TD15 1AB. Email: amy.brown@rettie.co.uk Tel: 01289 334 532

Offers:

Offers should be submitted in Scottish Legal Form to the selling agents Rettie & Co. A closing date by which offers must be submitted may be fixed later. Please note that interested parties are advised to register their interest with the selling agents in order that they may be advised should a closing date be set. The seller reserves the right to accept any offer at any time.

Council Tax Band:

F

Postcode:

TD11 3BB

Tenure:

Freehold

This property and other properties offered by Rettie & Co. & Rettie LLP's. can be viewed on our website at www.rettie.co.uk as well as Rightmove, OnTheMarket and The London Office.

The property is sold subject to and with the benefit of all servitude rights, burdens, reservations and wayleaves including rights of access and rights of way, whether public or private, light, support, drainage, water and wayleaves for masts, pylons, stays, cable, drains and water, gas and other pipes whether contained in the title deeds or informally constituted and whether or not referred to above.


Under the HMRC Anti Money Laundering legislation all offers to purchase a property on a cash basis or subject to mortgage require evidence of source of funds. This may include evidence of bank statements/funding source, mortgage or confirmation from a solicitor the purchaser has the funds to conclude the transaction.

All individuals involved in the transaction are required to produce proof of identity and proof of address. Rettie use electronic verification, if this is not possible original documents are acceptable.


Location

Duns is a charming and historic market town set amid the rolling countryside of Berwickshire, offering an appealing balance of rural tranquillity and everyday convenience. Steeped in history, the town is best known for the impressive Duns Castle and its surrounding estate, which form a striking focal point within the local landscape. The town itself provides a good range of amenities including independent shops, cafés, primary and secondary schooling, medical facilities, and leisure options, all serving a welcoming and close-knit community.

The wider Berwickshire region is renowned for its unspoilt scenery, picturesque villages, and beautiful coastline. Often described as one of Scotland’s hidden gems, the area boasts dramatic clifftop walks, sandy beaches, and peaceful harbours along the Berwickshire Coast Path, all within easy reach. The surrounding countryside is ideal for outdoor pursuits such as walking, cycling, riding, and fishing, while the region’s rich agricultural heritage adds to its timeless rural character.

Despite its peaceful setting, Berwickshire is well connected. Nearby towns such as Berwick-upon-Tweed provide mainline rail services to Edinburgh, Newcastle, and London, while road links allow straightforward access throughout the Scottish Borders and into Northumberland. This combination of natural beauty, historic interest, and accessibility makes Duns and the wider Berwickshire area an increasingly sought-after location for those seeking a high quality of life in a scenic and well-connected part of Scotland.

Contact us