2 West Loanend Cottages

Berwick-upon-Tweed, Northumberland, TD15 2XT

Berwick-upon-Tweed, Northumberland, TD15 2XT

1 Receptions
2 Beds
1 Baths
1076 Sq ft

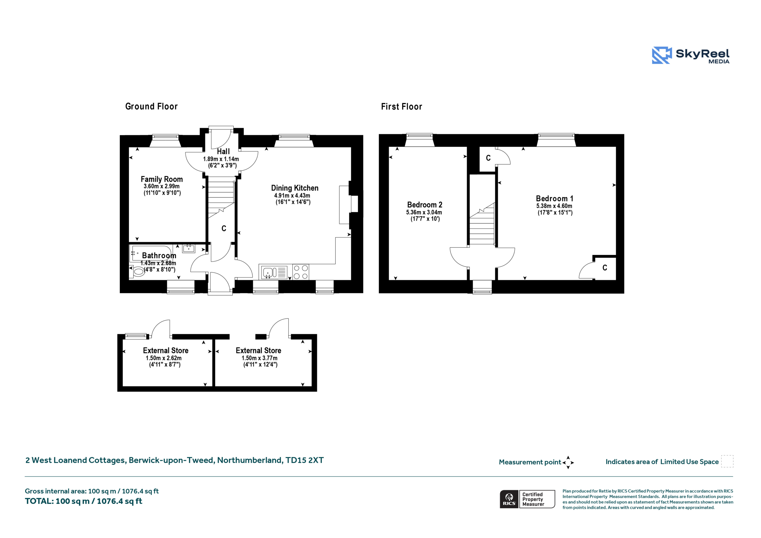
Nestled in a charming rural setting, 2 West Loanend Cottage is a delightful stone-built, two-bedroom end-terraced home offering bright, spacious accommodation over two floors, extending to approximately 100 sq. metres. Beautifully presented with neutral décor throughout, the property seamlessly blends traditional character with modern comfort, benefiting from oil-fired central heating and newly installed double glazing. Opposite the cottage lies an enclosed grass paddock extending to approximately 0.35 acres. Currently utilised as a productive market garden, it features established vegetable beds and a polytunnel, offering excellent potential for those with an interest in gardening, smallholding, or sustainable living.

Accommodation Comprises:

Ground Floor: Entrance Hall, Dining Kitchen, Family Room, Bathroom.

First Floor: Landing, Bedroom 1, Bedroom 2.

Outside: Enclosed Front Garden, Rear Courtyard, Outhouses, Private Parking, Enclosed Paddock.


Summary of Accommodation

This inviting home presents a wonderful lifestyle opportunity, ideal for those seeking a peaceful retreat with space to grow and enjoy the outdoors.

Upon entering through the front door, you are welcomed into a warm and inviting entrance hall with stairs leading to the first floor. To the right lies a cosy family room, whilst to the left is a generously proportioned dining kitchen, truly the heart of the home. This impressive space offers ample room for both dining and informal living, with windows to the front and rear flooding the room with natural light. A charming fireplace with a wood-burning stove creates a striking focal point, complemented by a range of handcrafted pine units, a ceramic sink, and space for appliances.

Completing the ground floor is a beautifully appointed family bathroom, featuring a classic suite with a roll-top bath. The ground floor is further enhanced by exposed beams and elegant Travertine stone flooring, adding warmth and character throughout.

Upstairs, the first floor offers two spacious double bedrooms, both enjoying delightful views over the paddock and surrounding countryside. The larger bedroom has scope to create a first floor bathroom/en-suite facility.

Externally, the property continues to impress. A pretty, cottage-style front garden offers a welcoming first impression, whilst to the rear there is a courtyard with three traditional stone outhouses. One of these has been thoughtfully adapted as a utility space, complete with a sink, plumbing for a washing machine, and housing the oil-fired boiler.

Opposite the cottage lies an enclosed grass paddock extending to approximately 0.35 acres. Currently utilised as a productive market garden, it features established vegetable beds and a polytunnel, offering excellent potential for those with an interest in gardening, smallholding, or sustainable living.

Private parking is conveniently located to the front of the property.

2 West Loanend Cottage is a rare opportunity to acquire a characterful home with land, combining countryside charm with practical living.

Agents Notes - The back courtyard has a right of way for the neighbouring cottages.

General Remarks & Information

Fixtures and Fittings:

Only appliances specifically mentioned in the sales particulars are included in the sale price. In all other aspects the treatment of fixtures and fittings within the relevant Conveyancing Standard Clauses apply.

Services:

EPC: tbc
Tenure: Freehold
Services: Mains water and electricity. Private drainage. Oil fired central heating. Fast fibre installed.
What 3 Words: aside.pokes.litigate.

Viewing:

By appointment through Rettie Berwick. 50 Hide Hill, Berwick‑Upon‑Tweed, TD15 1AB. Email: amy.brown@rettie.co.uk Tel: 01289 334 532

Offers:

Offers should be submitted in Scottish Legal Form to the selling agents Rettie & Co. A closing date by which offers must be submitted may be fixed later. Please note that interested parties are advised to register their interest with the selling agents in order that they may be advised should a closing date be set. The seller reserves the right to accept any offer at any time.

Council Tax Band:

B

Postcode:

TD15 2XT

Tenure:

Freehold

This property and other properties offered by Rettie & Co. & Rettie LLP's. can be viewed on our website at www.rettie.co.uk as well as Rightmove, OnTheMarket and The London Office.

The property is sold subject to and with the benefit of all servitude rights, burdens, reservations and wayleaves including rights of access and rights of way, whether public or private, light, support, drainage, water and wayleaves for masts, pylons, stays, cable, drains and water, gas and other pipes whether contained in the title deeds or informally constituted and whether or not referred to above.


Under the HMRC Anti Money Laundering legislation all offers to purchase a property on a cash basis or subject to mortgage require evidence of source of funds. This may include evidence of bank statements/funding source, mortgage or confirmation from a solicitor the purchaser has the funds to conclude the transaction.

All individuals involved in the transaction are required to produce proof of identity and proof of address. Rettie use electronic verification, if this is not possible original documents are acceptable.


Location

West Loanend enjoys a picturesque setting, close to the charming village of Horncliffe, a sought-after rural location nestled along the banks of the iconic River Tweed and offering circular walks via the River Tweed and adjacent footpath. The village offers a strong sense of community and is surrounded by beautiful open countryside, making it ideal for those seeking a tranquil lifestyle while remaining well connected.

Horncliffe is perfectly positioned just a short drive from the historic market town of Berwick-upon-Tweed, renowned for its Elizabethan ramparts, striking architecture, and rich heritage. Berwick provides an excellent range of amenities including independent shops, supermarkets, cafés, restaurants, and leisure facilities, along with schooling for all ages.

For commuters, Berwick-upon-Tweed’s mainline railway station offers regular services to both Edinburgh and Newcastle, making it an attractive option for those wishing to enjoy rural living without sacrificing accessibility.

The surrounding area is celebrated for its outstanding natural beauty. The nearby Northumberland Coast Area of Outstanding Natural Beauty boasts miles of unspoilt sandy beaches, dramatic coastal scenery, and abundant wildlife, while the rolling countryside and riverbanks provide endless opportunities for walking, cycling, and outdoor pursuits. The River Tweed itself is famed for its salmon fishing and scenic beauty.

Despite its peaceful setting, West Loanend benefits from easy access to major road links, allowing convenient travel both north into Edinburgh and south towards Newcastle upon Tyne.

Combining rural charm with excellent connectivity and access to both coast and countryside, the area around West Loanend and Horncliffe offers an exceptional quality of life in one of Northumberland’s most desirable locations.

Contact us