23B Tweed Street

Berwick-upon-Tweed, Northumberland, TD15 1NG

Berwick-upon-Tweed, Northumberland, TD15 1NG

1 Receptions
2 Beds
1 Baths
635 Sq ft

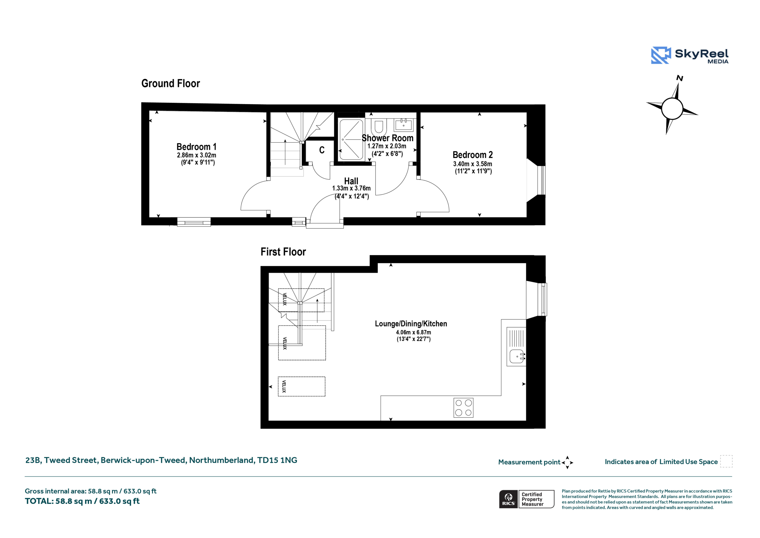
23B Tweed Street is a charming two-bedroom townhouse dating back to 1891, thoughtfully modernised and refurbished in 2017 by renowned local developers, GMC Developments. Blending period character with contemporary style, the property offers bright, well-proportioned accommodation over two levels, extending to approximately 59 sq. metres.

Accommodation Comprises:

Ground Floor: Entrance Hall, Bedroom 1, Bedroom 2, Shower Room.

First Floor: Open Plan Living/Dining/Kitchen.

Outside: Small Communal Area.




Summary of Accommodation

Accessed via a secure entry phone system, the property opens into a welcoming hallway. The ground floor offers two generously sized double bedrooms along with a sleek, modern shower room, finished to a high standard.

A staircase leads to the upper level, where an impressive open-plan living space forms the heart of the home. This stylish area incorporates a modern kitchen fitted with integrated appliances, alongside ample room for both dining and relaxed living. The space is flooded with natural light, benefitting from a front-facing window and three large Velux windows to the rear, creating a bright and airy atmosphere throughout.

Further benefits include gas-fired central heating and double glazing, ensuring comfort and efficiency year-round.

Externally, there is a small communal area providing practical space for bin storage.

Ideally positioned within the town centre and in close proximity to the train station, this appealing property would make an excellent bolt-hole, second home, or holiday let investment.

General Remarks & Information

Fixtures and Fittings:

Only appliances specifically mentioned in the sales particulars are included in the sale price. In all other aspects the treatment of fixtures and fittings within the relevant Conveyancing Standard Clauses apply.

Services:

Gas heating, mains water, electricity, broadband, telephone (subject to telephone providers’ regulations).

Viewing:

By appointment through Rettie Berwick. 50 Hide Hill, Berwick‑Upon‑Tweed, TD15 1AB. Email: amy.brown@rettie.co.uk Tel: 01289 334 532

Offers:

Offers should be submitted to the selling agents Rettie & Co. A closing date by which offers must be submitted may be fixed later. Please note that interested parties are advised to register their interest with the selling agents in order that they may be advised should a closing date be set. The seller reserves the right to accept any offer at any time.

Council Tax Band:

A

Postcode:

TD15 1NG

Tenure:

Freehold

This property and other properties offered by Rettie & Co. & Rettie LLP's. can be viewed on our website at www.rettie.co.uk as well as Rightmove, OnTheMarket and The London Office.

The property is sold subject to and with the benefit of all servitude rights, burdens, reservations and wayleaves including rights of access and rights of way, whether public or private, light, support, drainage, water and wayleaves for masts, pylons, stays, cable, drains and water, gas and other pipes whether contained in the title deeds or informally constituted and whether or not referred to above.

Rettie, their clients and any joint agents give notice that:

  1. They are not authorised to make or give any representations or warranties in relation to the property either in writing or by word of mouth. Any information given is entirely without responsibility on the part of the agents or the sellers. These particulars do not form part of any offer or contract and must not be relied upon as statements or representations of fact.
  2. All Rettie floorplans are drawn to RICS standard. The text, photographs and plans are for guidance only and are not necessarily comprehensive and it should not be assumed that the property remains as photographed. Any error, omission or mis-statement shall not annul the sale or entitle any party to compensation or recourse to action at law. It should not be assumed that the property has all necessary planning, building regulation or other consents, including for its current use. Rettie & Co. & Rettie LLP’s have not tested any services, equipment or facilities. Purchasers must satisfy themselves by inspection or otherwise and ought to seek their own professional advice.
  3. All descriptions or references to condition are given in good faith only. Whilst every endeavour is made to ensure accuracy, please check with us on any points of especial importance to you, especially if intending to travel some distance. No responsibility can be accepted for expenses incurred in inspecting properties which have been sold or withdrawn.
Under the HMRC Anti Money Laundering legislation all offers to purchase a property on a cash basis or subject to mortgage require evidence of source of funds. This may include evidence of bank statements/funding source, mortgage or confirmation from a solicitor the purchaser has the funds to conclude the transaction.

All individuals involved in the transaction are required to produce proof of identity and proof of address. Rettie use electronic verification, if this is not possible original documents are acceptable.
  1. The property is sold with all faults and defects, whether of condition or otherwise and neither the seller nor Rettie & Co. or Rettie LLP’s, the selling agent, are responsible for such faults and defects, nor for any statement contained in the particulars of the property prepared by the said agent.
  2. The Purchaser(s) shall be deemed to acknowledge that they have not entered into contract in reliance on the said statements, that they are satisfied themselves as to the content of each of the said statements by inspection or otherwise and that no warranty or representation has been made by the seller or the said agents in relation to or in connection with the property.
  3. Any error, omission or misstatement in any of the said statements shall not entitle the purchaser(s) to rescind or to be discharged from this contract, nor entitle either party to compensation or damages nor in any circumstances to give either party any cause for action.

Location

Tweed Street enjoys a central position within the historic market town of Berwick-upon-Tweed, one of Northumberland’s most picturesque and characterful coastal locations. Rich in heritage, the town is renowned for its Elizabethan town walls, charming streetscapes, and stunning views over the River Tweed estuary.

The property is ideally placed for access to the town centre, where a range of independent shops, cafés, restaurants, and local amenities can be found, alongside well-known retailers and supermarkets. Berwick’s vibrant high street and weekly markets add to the town’s strong sense of community and local character.

For commuters and those seeking excellent connectivity, Berwick-upon-Tweed railway station is just a short distance away, offering direct services along the East Coast Main Line to Edinburgh, Newcastle, and London, making it an attractive base for both full-time residents and second-home owners.

The surrounding area is equally appealing, with beautiful coastal walks, sandy beaches, and the dramatic Northumberland coastline all within easy reach. Nearby attractions include Spittal Beach, the scenic River Tweed, and a host of outdoor pursuits such as walking, cycling, and watersports.

Combining historic charm with modern convenience and excellent transport links, Tweed Street is perfectly situated to enjoy the very best of Berwick-upon-Tweed and the wider Northumberland region.

Contact us