59 Low Greens

Berwick-upon-Tweed, Northumberland, TD15 1LX

Berwick-upon-Tweed, Northumberland, TD15 1LX

2 Beds

A charming white cottage in the sought-after area of Low Greens, just a short walk away from the railway station. The cottage has a large garden, with the potential for development subject to planning and double gates opening on to off-street parking. The property offers tremendous potential and is offered for sale with no onward chain.

Description:                                                                                                                      

Coble Cottage is a period semi-detached cottage on a large plot and positioned towards the eastern end of Low Greens, a peaceful residential area with excellent access to the train station and town centre. The generous gardens are to the rear and side of the cottage with double gates opening on to a drive providing off-street parking. The plot is sizeable and could be developed by a new owner, or sold as a building plot, subject to planning permission. The property overlooks a small green and affords a high degree of privacy. The front door opens into the hall with a ceramic tiled floor and a stairs leading up to three attic rooms. The sitting room is a generous size with windows to the front and side and exposed timber flooring. There is a feature open fireplace with a tiled hearth and built-in storage to one side. The dining room has a window to the rear of the property and a part-glazed door opens into the conservatory with a ceramic tiled floor, timber panelling and a door leading out into the garden. The kitchen has a window to the rear with a ceramic tiled floor and fitted with a range of floor and wall-mounted units with countertops over. There is a sink with mixer tap, a ceramic hob with extractor over and an electric oven. A part-glazed door leads from the kitchen into the utility room, with a window and door to the side leading out into the garden. There is plumbing for a washing machine and space for a fridge. The double bedroom is good-size with built in wardrobes and an en-suite, comprising a bath, WC and hand basin. Completing the accommodation is a shower room to the front of the house off the hall. The shower room has a window to the front and comprises a shower, WC and hand basin.    

Outside:

The cottage stands on a large plot with landscaped gardens and grounds. There is patio area to the rear of the property with built-in seating, perfect for alfresco entertaining in the summer months. There are areas of lawn and range of mature trees and shrubs, a brick shed, timber shed, green house, raised beds and a vegetable garden. There is also off-street parking.

 

GENERAL REMARKS

Satellite Navigation

For those with the use of Satellite Navigation the postcode for this property is TD15 1LX

 

What3words

await.them.quite

(please download the application “what3words” for the exact location)

 

Tenure

Freehold

 

Fixtures and Fittings

All fitted carpets and light fittings are included with the sale.

 

Listing and Conservation

Please be aware, Coble Cottage is not Listed, but it is in a conservation area.

 

Services

Mains water, drainage and electricity, gas central heating.

 

Council Tax

Band B

 

Energy Efficiency Rating

Band F

 

Internet Web Site:

 This property and other properties offered by Rettie Berwick LLP can be viewed on our website as well as our affiliated websites at www.rightmove.co.uk www.onthemarket.com and www.thelondonoffice.co.uk

 

Offers:

Offers should be submitted to the selling agents Rettie Berwick LLP, 50 Hide Hill, Berwick upon Tweed, TD15 1AB.  A closing date by which offers must be submitted may be fixed later. Please note that interested parties are advised to register their interest with the selling agents in order that they may be advised should a closing date be set. The seller reserves the right to accept any offer at any time.

 

Servitude Rights, Burdens & Wayleaves:

The property is sold subject to and with the benefit of all servitude rights, burdens, reservations and wayleaves including rights of access and rights of way, whether public or private, light, support, drainage, water and wayleaves for masts, pylons, stays, cable, drains and water, gas and other pipes whether contained in the title deeds or informally constituted and whether or not referred to above. 

 

 

Particulars and Plans:

These particulars and plan are believed to be correct but they are in no way guaranteed.  Any error, omission or misstatement shall not annul the sale or entitle any party to compensation nor in any circumstances give grounds for action at law.

 

Important Notice

 

Rettie Berwick LLP, their clients and any joint agents give notice that:

 

  1.         They are not authorised to make or give any representations or warranties in relation to the property either in writing or by word of mouth.  Any information given is entirely without responsibility on the part of the agents or the sellers.  These particulars do not form part of any offer or contract and must not be relied upon as statements or representations of fact.

 

  1.         Any areas, measurements or distances are approximate.  The text, photographs and plans are for guidance only and are not necessarily comprehensive and it should not be assumed that the property remains as photographed. Any error, omission or mis-statement shall not annul the sale, or entitle any party to compensation or recourse to action at law. It should not be assumed that the property has all necessary planning, building regulation or other consents, including for its current use. Rettie Berwick LLP have not tested any services, equipment or facilities.  Purchasers must satisfy themselves by inspection or otherwise and ought to seek their own professional advice.

 

  1.         All descriptions or references to condition are given in good faith only. Whilst every endeavour is made to ensure accuracy, please check with us on any points of especial importance to you, especially if intending to travel some distance. No responsibility can be accepted for expenses incurred in inspecting properties   which have been sold or withdrawn.

 

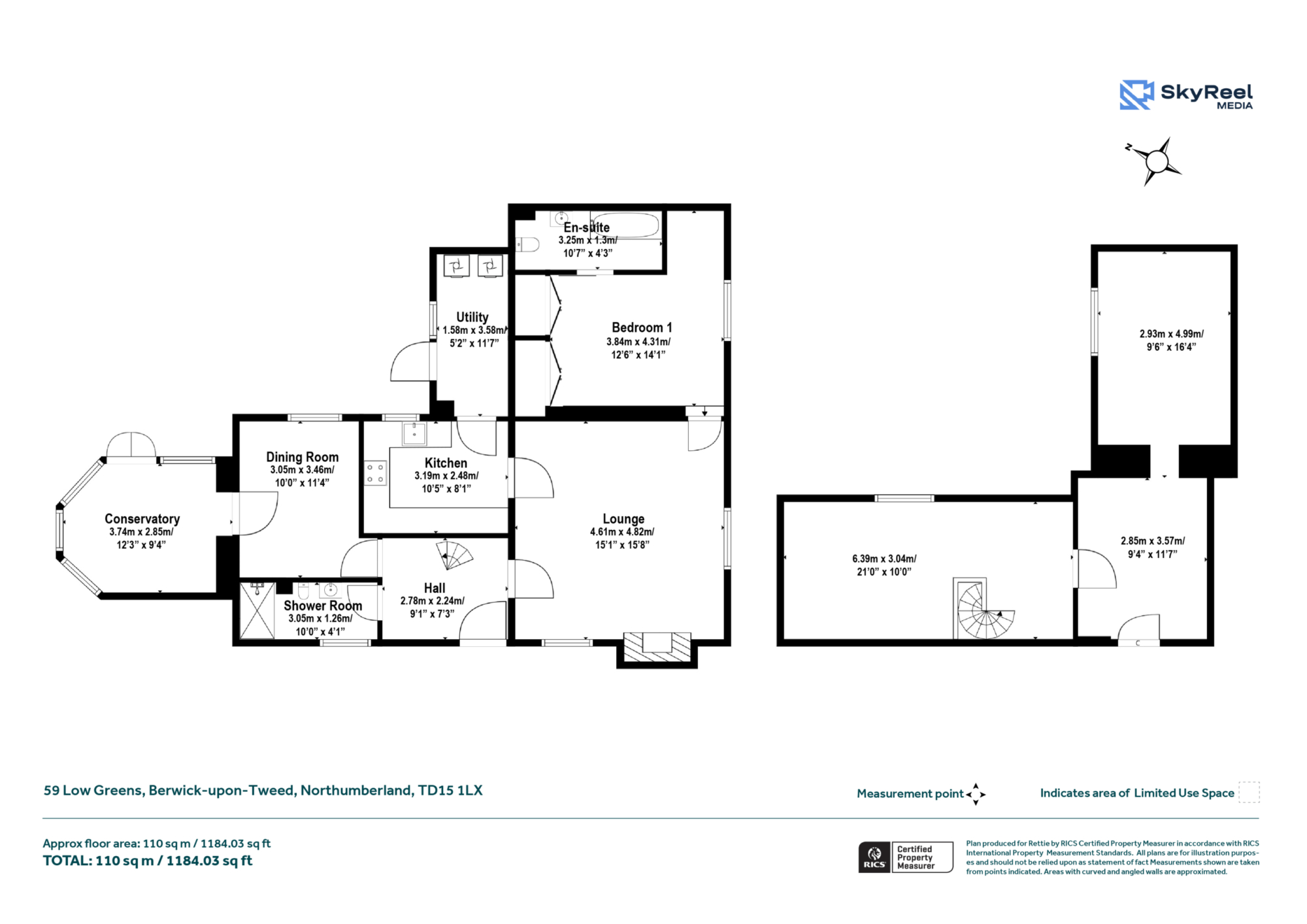
Summary of Accommodation

Accommodation comprises:

Ground Floor: Hall, Sitting Room, Dining Room, Conservatory, Kitchen, Utility Room, En-Suite Double Bedroom, Shower Room/WC.

First Floor: Three Attic Rooms.

Outside: Private Off-Street Parking, Large Landscaped Garden, Brick Shed, Timber Shed, Green House.

General Remarks & Information

Fixtures and Fittings:

Only appliances specifically mentioned in the sales particulars are included in the sale price. In all other aspects the treatment of fixtures and fittings within the relevant Conveyancing Standard Clauses apply.

Services:

Gas heating, mains water, electricity, broadband, telephone (subject to telephone providers’ regulations).

Viewing:

By appointment through Rettie Berwick. 50 Hide Hill, Berwick‑Upon‑Tweed, TD15 1AB. Email: amy.brown@rettie.co.uk Tel: 01289 334 532

Offers:

Offers should be submitted in Scottish Legal Form to the selling agents Rettie & Co. A closing date by which offers must be submitted may be fixed later. Please note that interested parties are advised to register their interest with the selling agents in order that they may be advised should a closing date be set. The seller reserves the right to accept any offer at any time.

Postcode:

TD15 1LX

This property and other properties offered by Rettie & Co. & Rettie LLP's. can be viewed on our website at www.rettie.co.uk as well as Rightmove, OnTheMarket and The London Office.

The property is sold subject to and with the benefit of all servitude rights, burdens, reservations and wayleaves including rights of access and rights of way, whether public or private, light, support, drainage, water and wayleaves for masts, pylons, stays, cable, drains and water, gas and other pipes whether contained in the title deeds or informally constituted and whether or not referred to above.

Rettie, their clients and any joint agents give notice that:

  1. They are not authorised to make or give any representations or warranties in relation to the property either in writing or by word of mouth. Any information given is entirely without responsibility on the part of the agents or the sellers. These particulars do not form part of any offer or contract and must not be relied upon as statements or representations of fact.
  2. All Rettie floorplans are drawn to RICS standard. The text, photographs and plans are for guidance only and are not necessarily comprehensive and it should not be assumed that the property remains as photographed. Any error, omission or mis-statement shall not annul the sale or entitle any party to compensation or recourse to action at law. It should not be assumed that the property has all necessary planning, building regulation or other consents, including for its current use. Rettie & Co. & Rettie LLP’s have not tested any services, equipment or facilities. Purchasers must satisfy themselves by inspection or otherwise and ought to seek their own professional advice.
  3. All descriptions or references to condition are given in good faith only. Whilst every endeavour is made to ensure accuracy, please check with us on any points of especial importance to you, especially if intending to travel some distance. No responsibility can be accepted for expenses incurred in inspecting properties which have been sold or withdrawn.
Under the HMRC Anti Money Laundering legislation all offers to purchase a property on a cash basis or subject to mortgage require evidence of source of funds. This may include evidence of bank statements/funding source, mortgage or confirmation from a solicitor the purchaser has the funds to conclude the transaction.

All individuals involved in the transaction are required to produce proof of identity and proof of address. Rettie use electronic verification, if this is not possible original documents are acceptable.
  1. The property is sold with all faults and defects, whether of condition or otherwise and neither the seller nor Rettie & Co. or Rettie LLP’s, the selling agent, are responsible for such faults and defects, nor for any statement contained in the particulars of the property prepared by the said agent.
  2. The Purchaser(s) shall be deemed to acknowledge that they have not entered into contract in reliance on the said statements, that they are satisfied themselves as to the content of each of the said statements by inspection or otherwise and that no warranty or representation has been made by the seller or the said agents in relation to or in connection with the property.
  3. Any error, omission or misstatement in any of the said statements shall not entitle the purchaser(s) to rescind or to be discharged from this contract, nor entitle either party to compensation or damages nor in any circumstances to give either party any cause for action.

Location

This characterful cottage is positioned in Low Greens in Berwick upon Tweed, a popular residential locale within a very short walk of the train station and Berwick’s main shopping street, with cafés, shops, restaurants and a twice weekly market. Nearby Castlegate has a good range of amenities including a shop, a butcher, wine bar/bistro and gallery, hairdressers and restaurants and the town centre is just a five-minute walk away. Berwick-upon-Tweed is England’s most northerly market town and is renowned for its historic Elizabethan walls. The town offers a wide range of amenities including five national supermarkets, schooling for all ages, a leisure centre and swimming pool and golf course. The town has a mainline rail station with regular services to Edinburgh, Newcastle and to London King’s Cross. Beyond Berwick, the local area has a wide range of popular attractions and activities including Northumberland’s and Berwickshire’s rugged coastline of unspoilt sandy beaches and beautiful rolling countryside. Lindisfarne National Nature Reserve, Bamburgh Castle and the ancient Border towns of Coldstream, Kelso and Melrose are also within easy reach. Despite Berwick’s proximity to both Edinburgh and Newcastle, the area has a low population, and can, therefore, offer a quality of life that is becoming increasingly rare.

Contact us