59A Bridge Street

Berwick-upon-Tweed, Northumberland, TD15 1ES

Berwick-upon-Tweed, Northumberland, TD15 1ES

1 Receptions
3 Beds
1 Baths
1464 Sq ft

Set within one of Berwick-upon-Tweed’s most characterful historic streets, this beautifully presented three-bedroom first floor apartment occupies part of an impressive Grade II listed building on Bridge Street. Combining period charm with generous proportions, the property offers refined living in a highly sought-after central location.

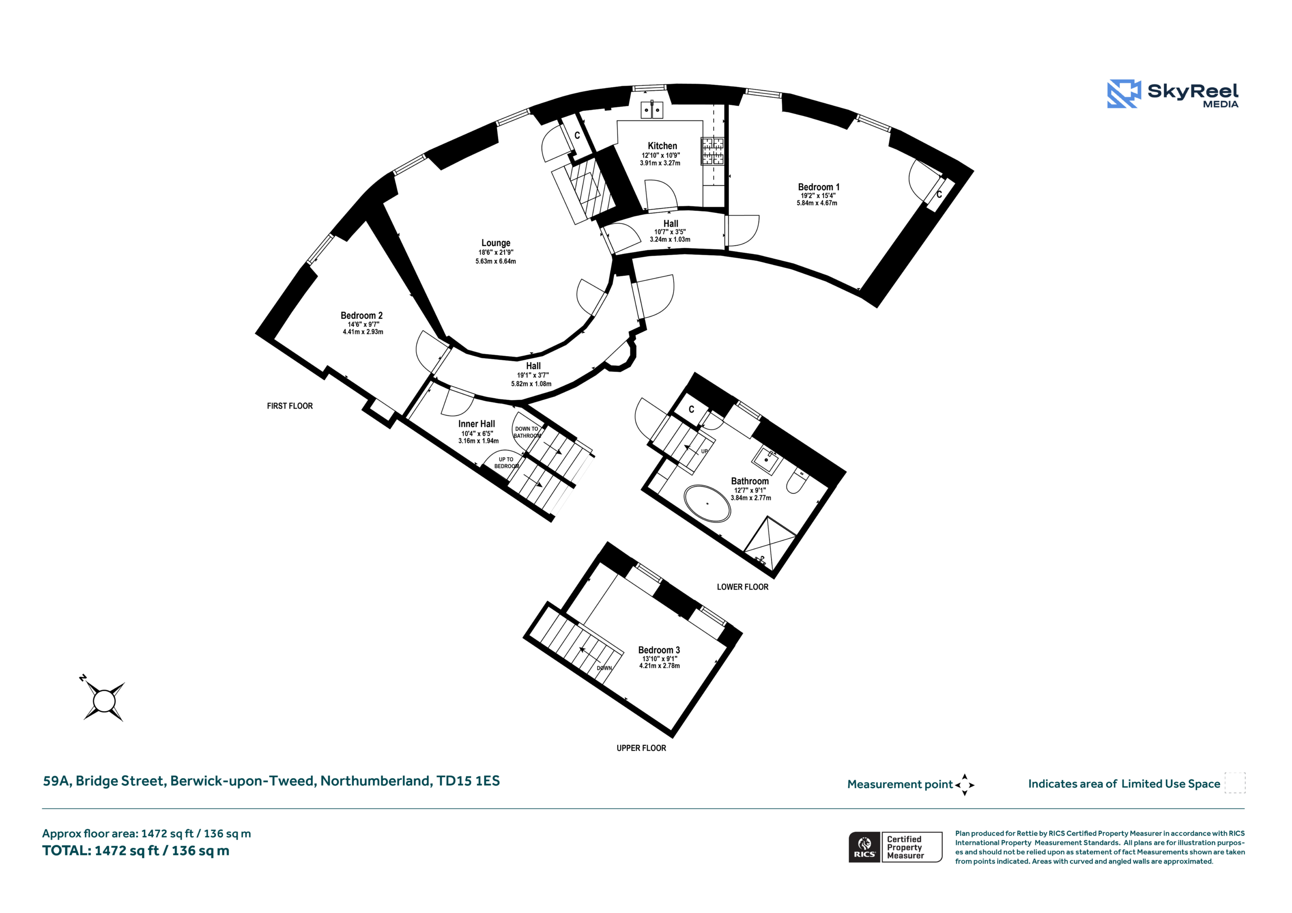
Accommodation Comprises: Inner Hall, Hallway, Lounge, Kitchen, Three Bedrooms, Bathroom.

Distances: Berwick Railway Station 1 mile, Edinburgh 57 miles, Newcastle upon Tyne 63 miles (All distances are approximate).

Summary of Accommodation

The spacious accommodation provides a superb balance of elegance and practicality. A welcoming entrance hall leads to a bright and airy living room, ideal for both relaxing and entertaining, with excellent natural light and attractive street views. The well-appointed kitchen offers ample storage and workspace, making it both functional and stylish.

There are three well-proportioned bedrooms, each offering flexibility for family living, guest accommodation, or home working. The principal bedroom is particularly generous in size, while the additional rooms are equally adaptable. A modern bathroom and further storage complete the layout.

Key Features:

* First floor apartment in a Grade II listed building

* Prime Bridge Street location in the heart of Berwick-upon-Tweed

* Three generous bedrooms

* Spacious, light-filled living room

* Well-equipped kitchen

* Character features and high ceilings

* Central location close to shops, cafés, and amenities

* Convenient for the railway station and riverside walks

Tenure: Leasehold
Council Tax Band: A
EPC: Expempt - grade 2 listed.
Listing: Please be aware the property is Grade 2 listed and lies within the deisgnated conservation area.

General Remarks & Information

Fixtures and Fittings:

Only appliances specifically mentioned in the sales particulars are included in the sale price. In all other aspects the treatment of fixtures and fittings within the relevant Conveyancing Standard Clauses apply.

Services:

Gas heating, mains water, electricity, broadband, telephone (subject to telephone providers’ regulations).

Viewing:

By appointment through Rettie Berwick. 50 Hide Hill, Berwick‑Upon‑Tweed, TD15 1AB. Email: amy.brown@rettie.co.uk Tel: 01289 334 532

Offers:

Offers should be submitted in Scottish Legal Form to the selling agents Rettie & Co. A closing date by which offers must be submitted may be fixed later. Please note that interested parties are advised to register their interest with the selling agents in order that they may be advised should a closing date be set. The seller reserves the right to accept any offer at any time.

Council Tax Band:

A

Postcode:

TD15 1ES

Tenure:

Leasehold

This property and other properties offered by Rettie & Co. & Rettie LLP's. can be viewed on our website at www.rettie.co.uk as well as Rightmove, OnTheMarket and The London Office.

The property is sold subject to and with the benefit of all servitude rights, burdens, reservations and wayleaves including rights of access and rights of way, whether public or private, light, support, drainage, water and wayleaves for masts, pylons, stays, cable, drains and water, gas and other pipes whether contained in the title deeds or informally constituted and whether or not referred to above.


Under the HMRC Anti Money Laundering legislation all offers to purchase a property on a cash basis or subject to mortgage require evidence of source of funds. This may include evidence of bank statements/funding source, mortgage or confirmation from a solicitor the purchaser has the funds to conclude the transaction.

All individuals involved in the transaction are required to produce proof of identity and proof of address. Rettie use electronic verification, if this is not possible original documents are acceptable.


Location

Bridge Street is one of Berwick’s most desirable addresses, offering immediate access to the town’s historic walls, independent shops, restaurants, and cultural attractions. The railway station is within easy reach, providing excellent links north and south, making the property suitable as a main residence, second home, or investment opportunity.

Berwick-upon-Tweed is one of Northumberland’s most distinctive and historic market towns, uniquely positioned on the English–Scottish border and surrounded by some of the most beautiful coastline and countryside in the UK. Rich in heritage and character, the town blends striking architecture, vibrant local culture, and modern convenience.

Famed for its Elizabethan town walls — among the best preserved in Europe — Berwick offers panoramic walks with sweeping views over the River Tweed, the North Sea, and the town’s iconic bridges. Its streets are lined with attractive period buildings, independent shops, galleries, cafés, and traditional pubs, creating a welcoming and lively atmosphere year-round.

The town benefits from excellent amenities including supermarkets, schools, leisure facilities, and healthcare services, while its thriving arts scene features theatres, festivals, and exhibitions. The Maltings arts centre serves as a cultural hub, hosting film, music, and live performances.

Berwick’s mainline railway station provides direct services to Edinburgh, Newcastle, and London, making it an ideal location for commuters, second-home owners, and those seeking a well-connected coastal lifestyle. Road links also offer easy access to Northumberland National Park, the Scottish Borders, and the region’s celebrated beaches.

Contact us