8 Harcar Court

Tweedmouth, Berwick-upon-Tweed, TD15 2FB

Tweedmouth, Berwick-upon-Tweed, TD15 2FB

2 Receptions
3 Beds
1 Baths
893 Sq ft

Rarely available in this sought-after cul-de-sac, this immaculately presented family home offers well laid out accommodation over two floors, a contemporary kitchen and bathroom and stylish and elegant décor throughout. The front and rear landscaped gardens are low-maintenance and there is a driveway providing off-street parking. This peaceful residential area is popular with families and young professionals and is close to schools and amenities.   Berwick Town Centre is a twenty-five minute walk away and the mainline railway station connects to Newcastle and Edinburgh in around 45 minutes and has regular services into London Kings Cross.

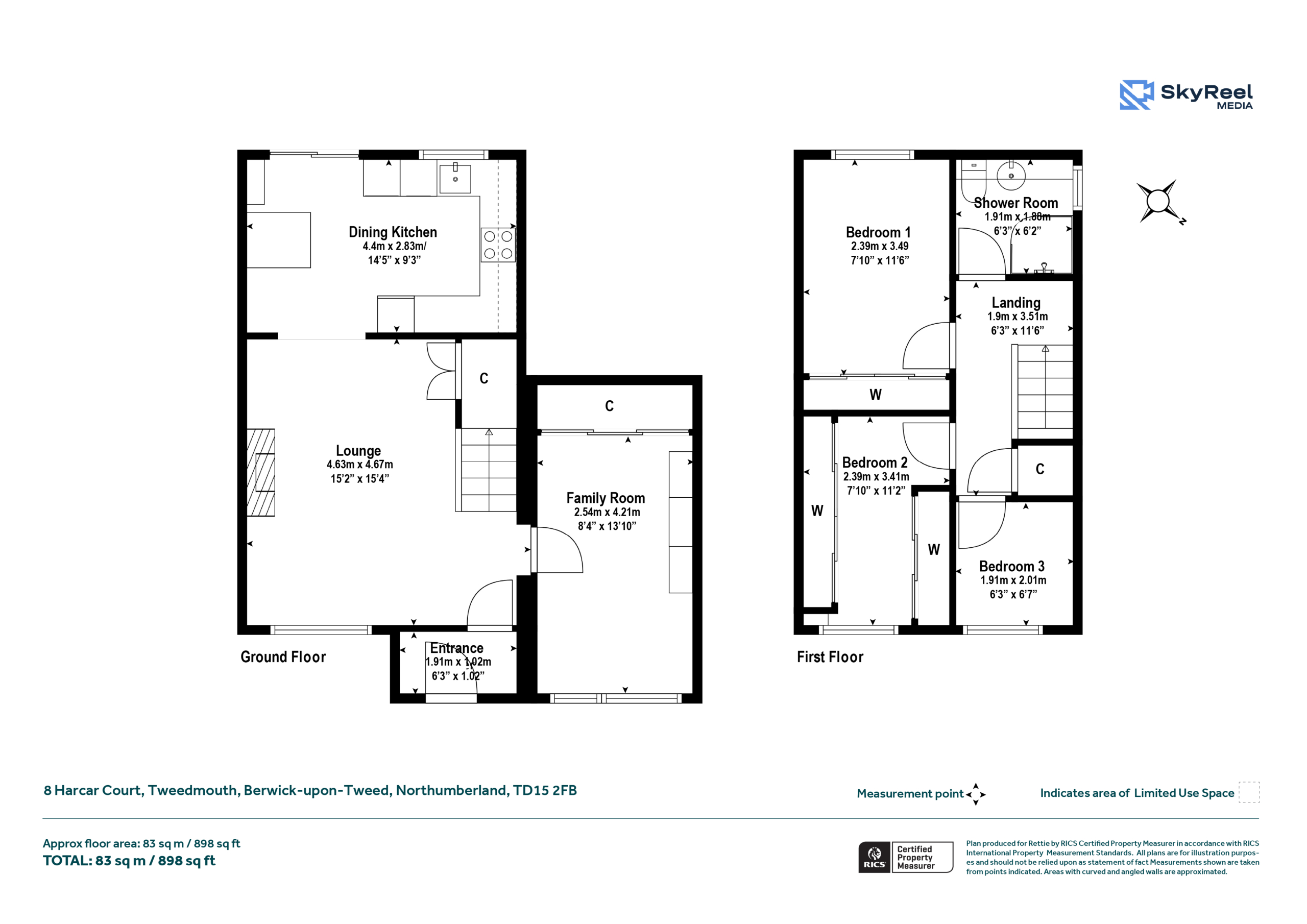
This modern family home is beautifully presented throughout and positioned at the bottom of a popular residential cul-de-sac in Tweedmouth. The house benefits from elegant décor, a contemporary kitchen and bathroom, stylish internal timber doors and solid timber flooring on the ground floor living spaces. The property is approached over a mono-block driveway to the front door which has a covered porch. The front door opens into a vestibule with space for coats and shoes and an inner part-glazed timber door opening into the sitting room. This generous reception has a window to the front of the property and a staircase with a timber and glass balustrade rising to the first floor and having enclosed storage beneath. The feature of the room is a log burning stove that sits on a slate hearth with a timber mantle above, perfect for cosy winter evenings. There are slatted timber features walls either side of the fireplace and an archway leading through to the kitchen, which is to the rear of the house. The bespoke contemporary kitchen is fitted with grey high-gloss floor and wall mounted units with composite countertops and a beautiful porcelain tiled floor. Integral appliances include a double electric oven, induction hob with extractor over and a dishwasher. There is space for a fridge freezer and plumbing for a dishwasher. The units have a mixture of cupboards, drawers and pan-drawers and there is a matching stand-alone peninsula providing further storage and dining. There is a window overlooking the rear garden and double doors giving access to the garden. The staircase with contemporary timber and glass balustrade rises from the ground floor to the first-floor landing, with a light well, linen cupboard and access to the loft through a hatch and pull-down ladder. The master bedroom is to the rear of the house with built-in wardrobes. There is a single bedroom to the front and a double bedroom, currently being used as a dressing room with a range of fitted wardrobes. Completing the accommodation is the bathroom, with a window to the rear and fitted with a contemporary suite comprising a large mains shower and a vanity unit with WC, hand basin and storage. There is a wall-mounted towel radiator and a ceramic tiled floor and wall tiles.    

Exterior:

To the front of the house is a low-maintenance garden and mono-block driveway providing parking for two cars. To the rear of the property is a fully enclosed low-maintenance garden with a pergola, patio area and a timber shed. There is also scope to extend to the rear to create an en-suite for the downstairs bedroom, subject to planning permission. There is a garden cabin in the garden with power and light, this is not included in the sale, but may be available to purchase by separate negotiation.

 

Summary of Accommodation

Accommodation comprises:

Ground floor: Entrance Vestibule, Sitting Room, Kitchen-Breakfast Room, Dining Room/Double Bedroom.
First Floor: Landing, Three Bedrooms, Bathroom.
Exterior: Driveway, Off-Street Parking, Landscaped Gardens, Timber Shed.

General Remarks & Information

Fixtures and Fittings:

Only appliances specifically mentioned in the sales particulars are included in the sale price. In all other aspects the treatment of fixtures and fittings within the relevant Conveyancing Standard Clauses apply.

Services:

Gas heating, mains water, electricity, broadband, telephone (subject to telephone providers’ regulations).

Viewing:

By appointment through Rettie Berwick. 50 Hide Hill, Berwick‑Upon‑Tweed, TD15 1AB. Email: amy.brown@rettie.co.uk Tel: 01289 334 532

Offers:

Offers should be submitted in Scottish Legal Form to the selling agents Rettie & Co. A closing date by which offers must be submitted may be fixed later. Please note that interested parties are advised to register their interest with the selling agents in order that they may be advised should a closing date be set. The seller reserves the right to accept any offer at any time.

Council Tax Band:

B

Postcode:

TD15 2FB

Tenure:

Freehold

This property and other properties offered by Rettie & Co. & Rettie LLP's. can be viewed on our website at www.rettie.co.uk as well as Rightmove, OnTheMarket and The London Office.

The property is sold subject to and with the benefit of all servitude rights, burdens, reservations and wayleaves including rights of access and rights of way, whether public or private, light, support, drainage, water and wayleaves for masts, pylons, stays, cable, drains and water, gas and other pipes whether contained in the title deeds or informally constituted and whether or not referred to above.

Rettie, their clients and any joint agents give notice that:

  1. They are not authorised to make or give any representations or warranties in relation to the property either in writing or by word of mouth. Any information given is entirely without responsibility on the part of the agents or the sellers. These particulars do not form part of any offer or contract and must not be relied upon as statements or representations of fact.
  2. All Rettie floorplans are drawn to RICS standard. The text, photographs and plans are for guidance only and are not necessarily comprehensive and it should not be assumed that the property remains as photographed. Any error, omission or mis-statement shall not annul the sale or entitle any party to compensation or recourse to action at law. It should not be assumed that the property has all necessary planning, building regulation or other consents, including for its current use. Rettie & Co. & Rettie LLP’s have not tested any services, equipment or facilities. Purchasers must satisfy themselves by inspection or otherwise and ought to seek their own professional advice.
  3. All descriptions or references to condition are given in good faith only. Whilst every endeavour is made to ensure accuracy, please check with us on any points of especial importance to you, especially if intending to travel some distance. No responsibility can be accepted for expenses incurred in inspecting properties which have been sold or withdrawn.
Under the HMRC Anti Money Laundering legislation all offers to purchase a property on a cash basis or subject to mortgage require evidence of source of funds. This may include evidence of bank statements/funding source, mortgage or confirmation from a solicitor the purchaser has the funds to conclude the transaction.

All individuals involved in the transaction are required to produce proof of identity and proof of address. Rettie use electronic verification, if this is not possible original documents are acceptable.
  1. The property is sold with all faults and defects, whether of condition or otherwise and neither the seller nor Rettie & Co. or Rettie LLP’s, the selling agent, are responsible for such faults and defects, nor for any statement contained in the particulars of the property prepared by the said agent.
  2. The Purchaser(s) shall be deemed to acknowledge that they have not entered into contract in reliance on the said statements, that they are satisfied themselves as to the content of each of the said statements by inspection or otherwise and that no warranty or representation has been made by the seller or the said agents in relation to or in connection with the property.
  3. Any error, omission or misstatement in any of the said statements shall not entitle the purchaser(s) to rescind or to be discharged from this contract, nor entitle either party to compensation or damages nor in any circumstances to give either party any cause for action.

Location

This semi-detached family home sits in its own grounds towards the end of a cul-de-sac with neighbouring properties. This quiet and peaceful setting is located in a modern development on the edge of the village of Tweedmouth which offers local shops and facilities and also links up with the wider Berwick upon Tweed, which offers excellent national and local shopping facilities, six national supermarkets, local Leisure and Sporting facilities and schooling for all ages.
The town is renowned for its value for money as well as the lifestyle it offers and also has access to Northumberland’s picturesque countryside as well as the Scottish Borders and the sandy dog-friendly beaches along the north-east coastline.

Contact us