51/1 Rattray Drive

Greenbank, Edinburgh, EH10 5TH

James Ward

Sales Consultant

0131 603 4446

james.ward@rettie.co.uk

Greenbank, Edinburgh, EH10 5TH

1 Receptions
2 Beds
2 Baths
958 Sq ft

Ideally positioned within the peaceful Greenbank Village development, 51/1 Rattray Drive offers a spacious and immaculately maintained two bedroom ground floor apartment. Benefited by allocated parking conveniently located outside the property, and access to attractive communal landscaped grounds, this well-kept property presents an fantastic opportunity for a range of buyers, looking to upsize, downsize or relocate just minutes away from Morningside’s boutique shops and amenities.


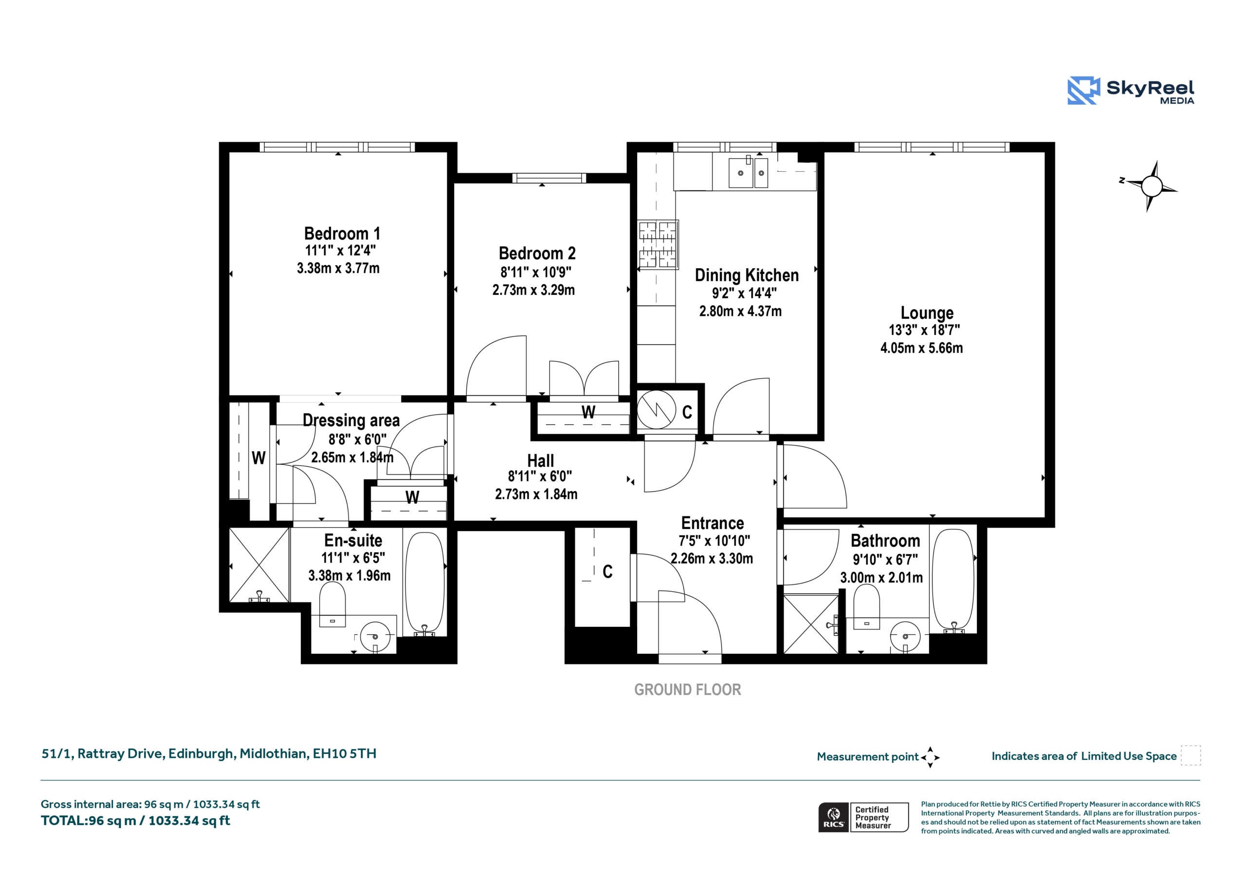
The property opens into a generous entrance hall, with impressive built in storage, leading into the bright and well proportioned sitting room. An inviting living space with ample room for both relaxation and entertaining. Adjacent, the kitchen features a well thought layout with extensive worktops, integrated appliances, storage, ideal for everyday living. The main bathroom, with separate bath and shower is conveniently located close to the entrance.


The principal bedroom, a standout feature of the accommodation, with large windows flooring the room with light, features its own dressing area and a stylish ensuite with separate bath and shower cubicle. The second double bedroom is also generously sized with built in storage, completing the accommodation.


Externally the property benefits from a conveniently located allocated parking space and access to the well-maintained communal grounds within Greenbank Village.


James Ward

Sales Consultant

0131 603 4446

james.ward@rettie.co.uk

Summary of Accommodation

Entrance Hallway, Storage, Lounge, Dining Kitchen, Principal Bedroom with Dressing Area and Ensuite, Second Bedroom, Bathroom

Externally: Allocated Parking, Communal Grounds

General Remarks & Information

Fixtures and Fittings:

Only appliances specifically mentioned in the sales particulars are included in the sale price. In all other aspects the treatment of fixtures and fittings within the relevant Conveyancing Standard Clauses apply.

Services:

Gas heating, mains water, electricity, broadband, telephone (subject to telephone providers’ regulations).

Viewing:

By appointment through Rettie Edinburgh South Sales. 47-49 Morningside Road, Edinburgh, EH10 4AZ. Email: edinburghsouthsales@rettie.co.uk Tel: 0131 287 7200

Offers:

Offers should be submitted in Scottish Legal Form to the selling agents Rettie & Co. A closing date by which offers must be submitted may be fixed later. Please note that interested parties are advised to register their interest with the selling agents in order that they may be advised should a closing date be set. The seller reserves the right to accept any offer at any time.

Council Tax Band:

F

EPC Rating:

C

Postcode:

EH10 5TH

Tenure:

Freehold

Particulars Prepared:

February 2026

This property and other properties offered by Rettie & Co. & Rettie LLP's. can be viewed on our website at www.rettie.co.uk as well as Rightmove, OnTheMarket and The London Office.

The property is sold subject to and with the benefit of all servitude rights, burdens, reservations and wayleaves including rights of access and rights of way, whether public or private, light, support, drainage, water and wayleaves for masts, pylons, stays, cable, drains and water, gas and other pipes whether contained in the title deeds or informally constituted and whether or not referred to above.

Rettie, their clients and any joint agents give notice that:

  1. They are not authorised to make or give any representations or warranties in relation to the property either in writing or by word of mouth. Any information given is entirely without responsibility on the part of the agents or the sellers. These particulars do not form part of any offer or contract and must not be relied upon as statements or representations of fact.
  2. All Rettie floorplans are drawn to RICS standard. The text, photographs and plans are for guidance only and are not necessarily comprehensive and it should not be assumed that the property remains as photographed. Any error, omission or mis-statement shall not annul the sale or entitle any party to compensation or recourse to action at law. It should not be assumed that the property has all necessary planning, building regulation or other consents, including for its current use. Rettie & Co. & Rettie LLP’s have not tested any services, equipment or facilities. Purchasers must satisfy themselves by inspection or otherwise and ought to seek their own professional advice.
  3. All descriptions or references to condition are given in good faith only. Whilst every endeavour is made to ensure accuracy, please check with us on any points of especial importance to you, especially if intending to travel some distance. No responsibility can be accepted for expenses incurred in inspecting properties which have been sold or withdrawn.
Under the HMRC Anti Money Laundering legislation all offers to purchase a property on a cash basis or subject to mortgage require evidence of source of funds. This may include evidence of bank statements/funding source, mortgage or confirmation from a solicitor the purchaser has the funds to conclude the transaction.

All individuals involved in the transaction are required to produce proof of identity and proof of address. Rettie use electronic verification, if this is not possible original documents are acceptable.
  1. The property is sold with all faults and defects, whether of condition or otherwise and neither the seller nor Rettie & Co. or Rettie LLP’s, the selling agent, are responsible for such faults and defects, nor for any statement contained in the particulars of the property prepared by the said agent.
  2. The Purchaser(s) shall be deemed to acknowledge that they have not entered into contract in reliance on the said statements, that they are satisfied themselves as to the content of each of the said statements by inspection or otherwise and that no warranty or representation has been made by the seller or the said agents in relation to or in connection with the property.
  3. Any error, omission or misstatement in any of the said statements shall not entitle the purchaser(s) to rescind or to be discharged from this contract, nor entitle either party to compensation or damages nor in any circumstances to give either party any cause for action.

Location

Located in the well established Greenbank Village development and enjoying a highly desirable location offering the perfect balance of tranquillity and convenience. Surrounded by landscaped grounds and leafy residential streets, the area provides a calm and attractive setting while remaining just a short distance from the vibrant amenities of Morningside, including cafés, restaurants, independent shops, and everyday services. Excellent public transport links offer quick access to the city centre, and nearby green spaces such as the Hermitage of Braid and Blackford Hill provide superb opportunities for walking and outdoor recreation.

Contact us

    James Ward

    Sales Consultant

    0131 603 4446

    james.ward@rettie.co.uk