21 Braid Mount

Edinburgh, Midlothian, EH10 6JH

James Ward

Sales Consultant

0131 603 4446

james.ward@rettie.co.uk

Edinburgh, Midlothian, EH10 6JH

3 Receptions
4 Beds
2 Baths
1798 Sq ft

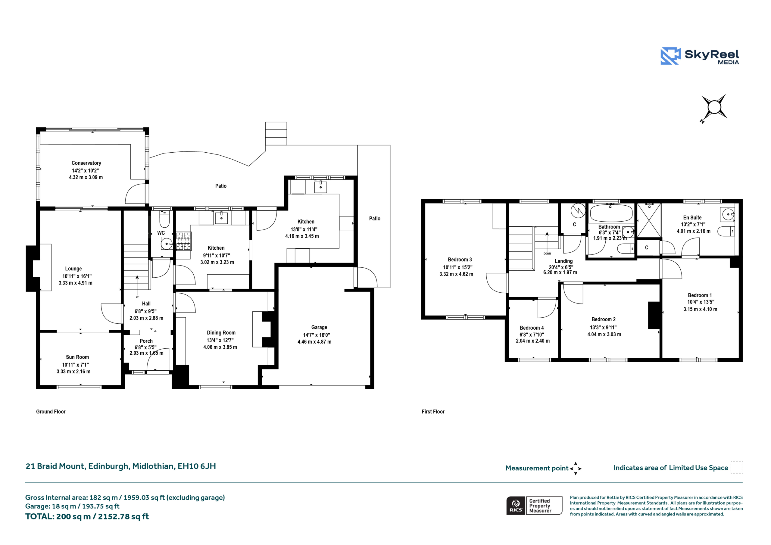
Set on a quiet residential street in Edinbrugh's Braids district, 21 Braid Mount is a substantial detached family home extending over 1,700 sqft, offering flexible accommodation over two levels with excellent potential for tasteful modernisation.

The ground floor provides generous living space, with views streatching across the city and beyond. Fitted with log burner and double doors leading through to a south facing conservatory overlooking the rear garden, the main entertaining space filling with sunlight throughout the day. Adjacent, a flexible dining room, well suited to its current form would also suit as a cosy family space, home office or play room. To the rear, the well proportioned kitchen opens into a useful utility area. The ground floor is completed by W/C and access to the garage.

On the first floor, the property comprises four bedrooms, including principal bedroom with ensuite shower room, two doubles and a fourth bedroom, ideal as a nursery or home office. Central to the property the family bathroom and excellent storage cupboard. Externally, the property benefits from private front and rear gardens, driveway providing off street parking, and garage.


James Ward

Sales Consultant

0131 603 4446

james.ward@rettie.co.uk

Summary of Accommodation

Ground Floor: Porch, Hall, Lounge, Sun Room/Conservatory, Dining Room, Kitchen/Utility, W/C, Garage

First Floor: Principal Bedroom with Ensuite, Two Double Bedrooms, Further Bedroom, Bathroom, Storage Cupboard

Externally: Private Front and Rear Garden, Driveway

General Remarks & Information

Fixtures and Fittings:

Only appliances specifically mentioned in the sales particulars are included in the sale price. In all other aspects the treatment of fixtures and fittings within the relevant Conveyancing Standard Clauses apply.

Services:

Gas heating, mains water, electricity, broadband, telephone (subject to telephone providers’ regulations).

Viewing:

By appointment through Rettie Edinburgh South Sales. 47-49 Morningside Road, Edinburgh, EH10 4AZ. Email: edinburghsouthsales@rettie.co.uk Tel: 0131 287 7200

Offers:

Offers should be submitted in Scottish Legal Form to the selling agents Rettie & Co. A closing date by which offers must be submitted may be fixed later. Please note that interested parties are advised to register their interest with the selling agents in order that they may be advised should a closing date be set. The seller reserves the right to accept any offer at any time.

Council Tax Band:

G

EPC Rating:

D

Postcode:

EH10 6JH

Tenure:

Freehold

Particulars Prepared:

April 2026

This property and other properties offered by Rettie & Co. & Rettie LLP's. can be viewed on our website at www.rettie.co.uk as well as Rightmove, OnTheMarket and The London Office.

The property is sold subject to and with the benefit of all servitude rights, burdens, reservations and wayleaves including rights of access and rights of way, whether public or private, light, support, drainage, water and wayleaves for masts, pylons, stays, cable, drains and water, gas and other pipes whether contained in the title deeds or informally constituted and whether or not referred to above.


Under the HMRC Anti Money Laundering legislation all offers to purchase a property on a cash basis or subject to mortgage require evidence of source of funds. This may include evidence of bank statements/funding source, mortgage or confirmation from a solicitor the purchaser has the funds to conclude the transaction.

All individuals involved in the transaction are required to produce proof of identity and proof of address. Rettie use electronic verification, if this is not possible original documents are acceptable.


Location

21 Braid Mount is situated in a highly regarded residential area of south Edinburgh. Enjoying a peaceful setting close to the open green spaces of the Braid Hills and Hermitage of Braid, offering excellent opportunities for walking and outdoor recreation. A good range of local amenities can be found nearby in Morningside and Bruntsfield, including independent shops, cafés, and supermarkets, while the city centre is easily accessible by regular public transport links. Well-regarded schools, leisure facilities, and road connections to the City Bypass and beyond further enhance the appeal of this convenient and desirable location.

Contact us

    James Ward

    Sales Consultant

    0131 603 4446

    james.ward@rettie.co.uk