30 Barony Street

Edinburgh, EH3 6NY

Maria Ponte

Senior Sales Negotiator

0131 624 9085

maria.ponte@rettie.co.uk

Edinburgh, EH3 6NY

1 Receptions
3 Beds
1 Baths
1399 Sq ft

An impressive three-bedroom main door duplex flat with private terrace, set over ground and lower ground floors, in the heart of Edinburgh’s New Town.

38/6 Barony Street is a spacious and well-proportioned three-bedroom main door flat arranged over ground and lower ground floors, forming part of a traditional Georgian, Category C-Listed tenement building. The property benefits from its own private entrance and a rare private terrace, offering flexible accommodation well suited to modern city living with a practical and versatile layout ideal for families, professionals, or those seeking additional work-from-home space.

Maria Ponte

Senior Sales Negotiator

0131 624 9085

maria.ponte@rettie.co.uk

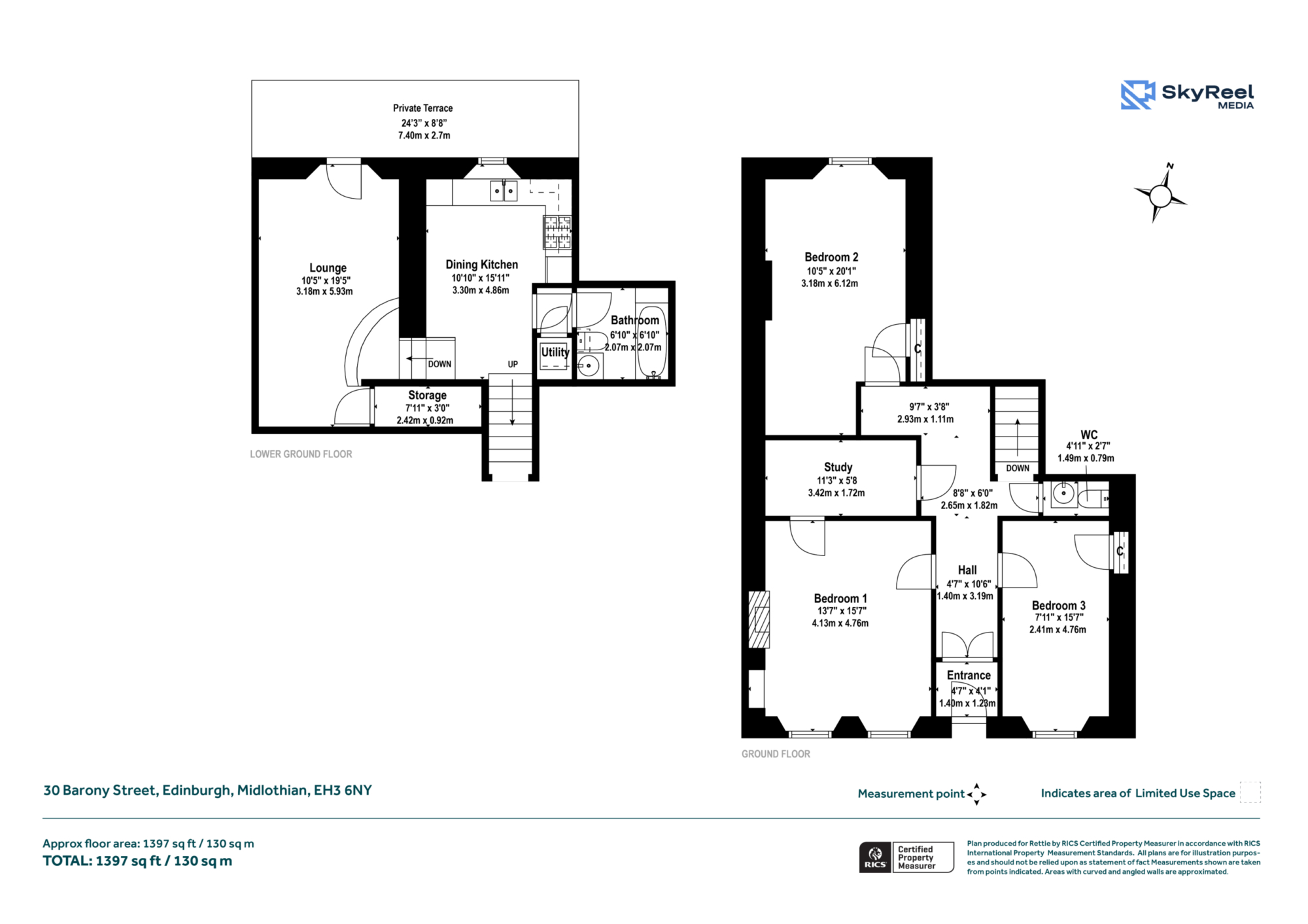
Summary of Accommodation

The ground floor provides entrance vestibule, spacious and bright hall and three double bedrooms, a box room/home office and WC.

The lower ground floor offers a fully fitted dining kitchen, sitting room with access to a private terrace, family bathroom, utility and storage cupboards

Outdoor Space:
The property enjoys the rare benefit of a private terrace, providing valuable outdoor space for seating, entertaining, or container gardening — a notable feature for a central New Town property. In addition there is access to a shared residents' garden space with lawn and planted areas.

General Remarks & Information

Fixtures and Fittings:

Only appliances specifically mentioned in the sales particulars are included in the sale price. In all other aspects the treatment of fixtures and fittings within the relevant Conveyancing Standard Clauses apply.

Services:

Gas heating, mains water, electricity, broadband, telephone (subject to telephone providers’ regulations).

Viewing:

By appointment through Rettie Edinburgh. 11 Wemyss Place, Edinburgh, EH3 6DH. Email: edinburghsales@rettie.co.uk Tel: 0131 220 4160

Offers:

Offers should be submitted in Scottish Legal Form to the selling agents Rettie & Co. A closing date by which offers must be submitted may be fixed later. Please note that interested parties are advised to register their interest with the selling agents in order that they may be advised should a closing date be set. The seller reserves the right to accept any offer at any time.

Council Tax Band:

D

EPC Rating:

D

Postcode:

EH3 6NY

Tenure:

Freehold

Particulars Prepared:

February 2026

This property and other properties offered by Rettie & Co. & Rettie LLP's. can be viewed on our website at www.rettie.co.uk as well as Rightmove, OnTheMarket and The London Office.

The property is sold subject to and with the benefit of all servitude rights, burdens, reservations and wayleaves including rights of access and rights of way, whether public or private, light, support, drainage, water and wayleaves for masts, pylons, stays, cable, drains and water, gas and other pipes whether contained in the title deeds or informally constituted and whether or not referred to above.


Under the HMRC Anti Money Laundering legislation all offers to purchase a property on a cash basis or subject to mortgage require evidence of source of funds. This may include evidence of bank statements/funding source, mortgage or confirmation from a solicitor the purchaser has the funds to conclude the transaction.

All individuals involved in the transaction are required to produce proof of identity and proof of address. Rettie use electronic verification, if this is not possible original documents are acceptable.


Location

Barony Street is ideally located within Edinburgh’s prestigious New Town, a UNESCO World Heritage Site. The property is perfectly positioned for easy access to the city centre, Stockbridge, Broughton, the new St James Quarter and Canonmills, with an excellent range of cafés, restaurants, shops, and amenities nearby.

The area is well served by public transport, tram network, with Waverley Station within walking distance and convenient road links to the wider city and beyond. Green spaces such as King George V Park and Inverleith Park are also close at hand.

Contact us

    Maria Ponte

    Senior Sales Negotiator

    0131 624 9085

    maria.ponte@rettie.co.uk