1/3 Hartington Place

Edinburgh, EH10 4LF

Laura Mathieson

Associate Director

0131 624 4066

laura.mathieson@rettie.co.uk

Faith Peden

Senior Sales Negotiator

0131 322 2662

faith.peden@rettie.co.uk

Edinburgh, EH10 4LF

1 Receptions
2 Beds
1 Baths
689 Sq ft

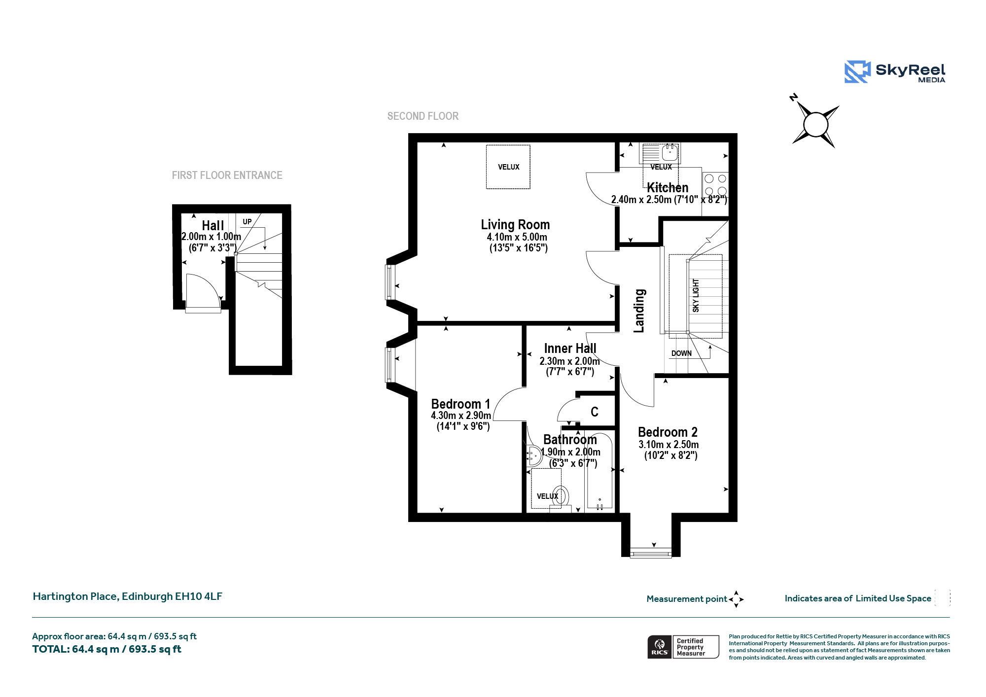
Situated on the top floor of a traditional built end terrace property in the ever-popular Bruntsfield area of Edinburgh, this attractive two-bedroom flat offers well-balanced accommodation, with excellent natural light, generous room sizes, and a highly convenient location, the property will appeal to first-time buyers, professionals, and buy-to-let investors alike.

Entered through a private staircase from the second floor of the building, the central landing space and inner hall with built in storage, provides a welcoming and bright space lit by the copula. The living room offering ample room for both lounge and dining furniture with Velux roof light draws natural light into the room, enhancing the sense of space and creating a comfortable setting for everyday living and entertaining. The kitchen is accessed directly from the living room provides a practical and well laid out space with good storage and worktop space.

The principal bedroom, a double room comfortably accommodating a full range of bedroom furniture located at the back of the property. Separated by the bathroom, a three-piece suit titled throughout, the second bedroom is another well-proportioned room, suitable for use as a guest bedroom, child’s room, or home office completing the accommodation.

There is also parking for one car at the rear of the flat which is incredibly helpful.

Laura Mathieson

Associate Director

0131 624 4066

laura.mathieson@rettie.co.uk

Faith Peden

Senior Sales Negotiator

0131 322 2662

faith.peden@rettie.co.uk

Summary of Accommodation

Inner Hall and Landing, Kitchen, Sitting/Dining Room, Principal Double Bedroom, Second Double Bedroom, Bathroom

General Remarks & Information

Fixtures and Fittings:

Only appliances specifically mentioned in the sales particulars are included in the sale price. In all other aspects the treatment of fixtures and fittings within the relevant Conveyancing Standard Clauses apply.

Services:

Gas heating, mains water, electricity, broadband, telephone (subject to telephone providers’ regulations).

Viewing:

By appointment through Rettie Edinburgh. 11 Wemyss Place, Edinburgh, EH3 6DH. Email: edinburghsales@rettie.co.uk Tel: 0131 220 4160

Offers:

Offers should be submitted in Scottish Legal Form to the selling agents Rettie & Co. A closing date by which offers must be submitted may be fixed later. Please note that interested parties are advised to register their interest with the selling agents in order that they may be advised should a closing date be set. The seller reserves the right to accept any offer at any time.

Council Tax Band:

D

EPC Rating:

C

Postcode:

EH10 4LF

Tenure:

Freehold

Particulars Prepared:

December 2025

This property and other properties offered by Rettie & Co. & Rettie LLP's. can be viewed on our website at www.rettie.co.uk as well as Rightmove, OnTheMarket and The London Office.

The property is sold subject to and with the benefit of all servitude rights, burdens, reservations and wayleaves including rights of access and rights of way, whether public or private, light, support, drainage, water and wayleaves for masts, pylons, stays, cable, drains and water, gas and other pipes whether contained in the title deeds or informally constituted and whether or not referred to above.

Rettie, their clients and any joint agents give notice that:

  1. They are not authorised to make or give any representations or warranties in relation to the property either in writing or by word of mouth. Any information given is entirely without responsibility on the part of the agents or the sellers. These particulars do not form part of any offer or contract and must not be relied upon as statements or representations of fact.
  2. All Rettie floorplans are drawn to RICS standard. The text, photographs and plans are for guidance only and are not necessarily comprehensive and it should not be assumed that the property remains as photographed. Any error, omission or mis-statement shall not annul the sale or entitle any party to compensation or recourse to action at law. It should not be assumed that the property has all necessary planning, building regulation or other consents, including for its current use. Rettie & Co. & Rettie LLP’s have not tested any services, equipment or facilities. Purchasers must satisfy themselves by inspection or otherwise and ought to seek their own professional advice.
  3. All descriptions or references to condition are given in good faith only. Whilst every endeavour is made to ensure accuracy, please check with us on any points of especial importance to you, especially if intending to travel some distance. No responsibility can be accepted for expenses incurred in inspecting properties which have been sold or withdrawn.
Under the HMRC Anti Money Laundering legislation all offers to purchase a property on a cash basis or subject to mortgage require evidence of source of funds. This may include evidence of bank statements/funding source, mortgage or confirmation from a solicitor the purchaser has the funds to conclude the transaction.

All individuals involved in the transaction are required to produce proof of identity and proof of address. Rettie use electronic verification, if this is not possible original documents are acceptable.
  1. The property is sold with all faults and defects, whether of condition or otherwise and neither the seller nor Rettie & Co. or Rettie LLP’s, the selling agent, are responsible for such faults and defects, nor for any statement contained in the particulars of the property prepared by the said agent.
  2. The Purchaser(s) shall be deemed to acknowledge that they have not entered into contract in reliance on the said statements, that they are satisfied themselves as to the content of each of the said statements by inspection or otherwise and that no warranty or representation has been made by the seller or the said agents in relation to or in connection with the property.
  3. Any error, omission or misstatement in any of the said statements shall not entitle the purchaser(s) to rescind or to be discharged from this contract, nor entitle either party to compensation or damages nor in any circumstances to give either party any cause for action.

Location

Located within the Bruntsfield area, Hartington Place accessed from Viewforth lies just moments from Bruntsfield Links and The Meadows, offering open green spaces right on your doorstep. Within walking distance an array of cafés, restaurants, boutiques, and independent shops line Bruntsfield Place and nearby Morningside Road. The area also boasts excellent transport links, highly regarded local schooling, and proximity to Edinburgh Napier University and The University of Edinburgh.

Contact us

    Laura Mathieson

    Associate Director

    0131 624 4066

    laura.mathieson@rettie.co.uk

    Faith Peden

    Senior Sales Negotiator

    0131 322 2662

    faith.peden@rettie.co.uk