1F2, 43 Iona Street

Leith, Edinburgh, EH6 8SP

Kate Purdie

Sales Negotiator

0131 322 2666

kate.purdie@rettie.co.uk

Leith, Edinburgh, EH6 8SP

1 Beds

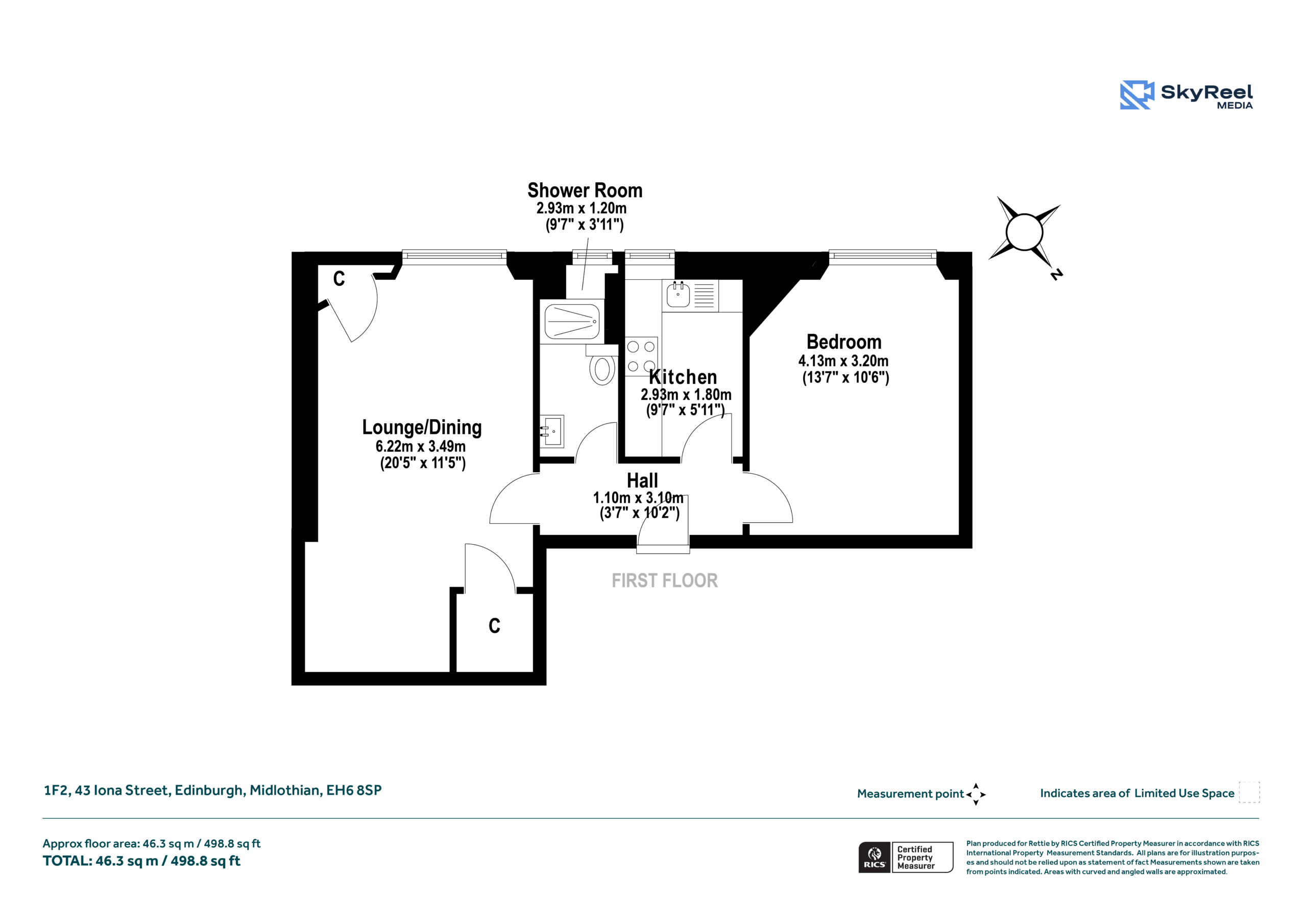
A beautifully presented one-bedroom first floor flat extending to approximately 46.3 sq m (498.8 sq ft), set within a traditional Edinburgh tenement in the heart of the ever-popular Leith district. The property is offered in good order throughout and enjoys access to a well-maintained communal rear garden, accessed via the communal stair.

The accommodation is well-proportioned and thoughtfully arranged, with a welcoming entrance hallway providing access to all rooms. To the front of the property lies a generous and naturally bright lounge/dining room, offering ample space for both everyday living and entertaining. Adjacent is the modern fitted kitchen, which is well equipped with good storage and worktop space.

The double bedroom is quietly positioned to the rear and provides a peaceful retreat, while the contemporary shower room is neatly finished and well laid out. Additional storage is provided by built-in cupboards off the hall and within the living space.

Situated on one of Leith’s most desirable residential streets, the property is ideally placed for access to an excellent range of local cafés, shops, restaurants and transport links. Leith Walk, The Shore and the city centre are all within easy reach, making this an ideal first-time purchase or investment opportunity.

 

 

 

 

 

 

Kate Purdie

Sales Negotiator

0131 322 2666

kate.purdie@rettie.co.uk

Summary of Accommodation

First Floor
Entrance hallway with storage, bright lounge/dining room, fitted kitchen, double bedroom, modern shower room.

External
Access to well-maintained communal rear garden via communal stair.

General Remarks & Information

Fixtures and Fittings:

Only appliances specifically mentioned in the sales particulars are included in the sale price. In all other aspects the treatment of fixtures and fittings within the relevant Conveyancing Standard Clauses apply.

Services:

Gas heating, mains water, electricity, broadband, telephone (subject to telephone providers’ regulations).

Viewing:

By appointment through Rettie Edinburgh. 11 Wemyss Place, Edinburgh, EH3 6DH. Email: edinburghsales@rettie.co.uk Tel: 0131 220 4160

Offers:

Offers should be submitted in Scottish Legal Form to the selling agents Rettie & Co. A closing date by which offers must be submitted may be fixed later. Please note that interested parties are advised to register their interest with the selling agents in order that they may be advised should a closing date be set. The seller reserves the right to accept any offer at any time.

Council Tax Band:

B

EPC Rating:

C

Postcode:

EH6 8SP

This property and other properties offered by Rettie & Co. & Rettie LLP's. can be viewed on our website at www.rettie.co.uk as well as Rightmove, OnTheMarket and The London Office.

The property is sold subject to and with the benefit of all servitude rights, burdens, reservations and wayleaves including rights of access and rights of way, whether public or private, light, support, drainage, water and wayleaves for masts, pylons, stays, cable, drains and water, gas and other pipes whether contained in the title deeds or informally constituted and whether or not referred to above.

Rettie, their clients and any joint agents give notice that:

  1. They are not authorised to make or give any representations or warranties in relation to the property either in writing or by word of mouth. Any information given is entirely without responsibility on the part of the agents or the sellers. These particulars do not form part of any offer or contract and must not be relied upon as statements or representations of fact.
  2. All Rettie floorplans are drawn to RICS standard. The text, photographs and plans are for guidance only and are not necessarily comprehensive and it should not be assumed that the property remains as photographed. Any error, omission or mis-statement shall not annul the sale or entitle any party to compensation or recourse to action at law. It should not be assumed that the property has all necessary planning, building regulation or other consents, including for its current use. Rettie & Co. & Rettie LLP’s have not tested any services, equipment or facilities. Purchasers must satisfy themselves by inspection or otherwise and ought to seek their own professional advice.
  3. All descriptions or references to condition are given in good faith only. Whilst every endeavour is made to ensure accuracy, please check with us on any points of especial importance to you, especially if intending to travel some distance. No responsibility can be accepted for expenses incurred in inspecting properties which have been sold or withdrawn.
Under the HMRC Anti Money Laundering legislation all offers to purchase a property on a cash basis or subject to mortgage require evidence of source of funds. This may include evidence of bank statements/funding source, mortgage or confirmation from a solicitor the purchaser has the funds to conclude the transaction.

All individuals involved in the transaction are required to produce proof of identity and proof of address. Rettie use electronic verification, if this is not possible original documents are acceptable.
  1. The property is sold with all faults and defects, whether of condition or otherwise and neither the seller nor Rettie & Co. or Rettie LLP’s, the selling agent, are responsible for such faults and defects, nor for any statement contained in the particulars of the property prepared by the said agent.
  2. The Purchaser(s) shall be deemed to acknowledge that they have not entered into contract in reliance on the said statements, that they are satisfied themselves as to the content of each of the said statements by inspection or otherwise and that no warranty or representation has been made by the seller or the said agents in relation to or in connection with the property.
  3. Any error, omission or misstatement in any of the said statements shall not entitle the purchaser(s) to rescind or to be discharged from this contract, nor entitle either party to compensation or damages nor in any circumstances to give either party any cause for action.

Location

Leith is one of Edinburgh’s most dynamic and sought-after districts, renowned for its vibrant atmosphere, rich history, and thriving local community. Located just north of the city centre, it blends a unique mix of heritage architecture, contemporary developments, and a bustling waterfront scene.
At the heart of Leith is The Shore, a lively area lined with award-winning restaurants, trendy cafés, traditional pubs, and artisan shops. The district also offers excellent cultural attractions, including the Royal Yacht Britannia at nearby Ocean Terminal and various galleries and creative spaces that showcase Leith’s artistic spirit.
Leith is exceptionally well-connected, with regular bus services and the Edinburgh Tram extension now providing direct links to the city centre and airport. The area is also popular with professionals due to its proximity to tech hubs, creative industries, and financial districts.
Green spaces such as Leith Links and the Water of Leith Walkway provide peaceful outdoor escapes, while a growing number of independent retailers, delis, and local markets contribute to Leith’s strong sense of community and charm.
With its distinctive character, excellent amenities, and ongoing regeneration, Leith continues to be one of the most desirable places to live in Edinburgh.

Contact us

    Kate Purdie

    Sales Negotiator

    0131 322 2666

    kate.purdie@rettie.co.uk