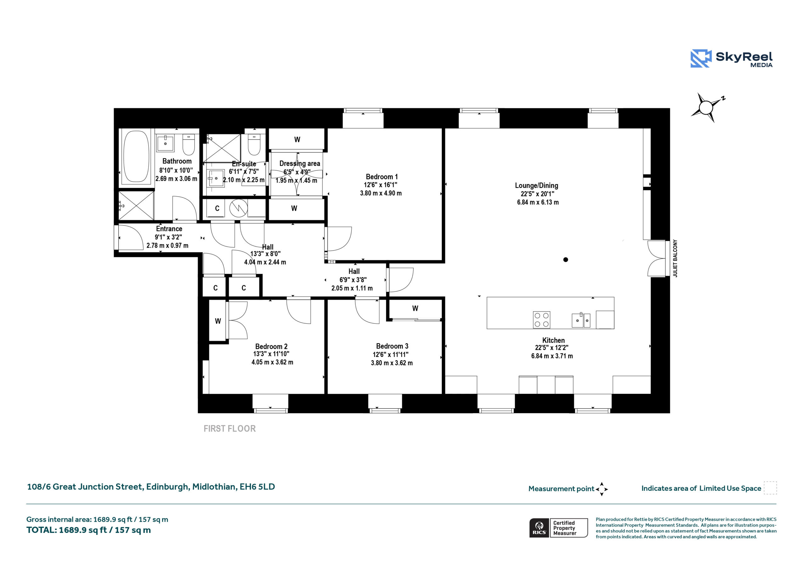
108/6 Great Junction Street

Leith, Edinburgh, EH6 5LD

Gavin Smith

Associate Director

0131 624 4081

gavin.smith@rettie.co.uk

Sarah Tanner

Senior Sales Negotiator

0131 322 2658

sarah.tanner@rettie.co.uk

Leith, Edinburgh, EH6 5LD

1 Receptions
3 Beds
2 Baths
1593 Sq ft

Situated within a beautifully converted B-Listed bond warehouse, this exceptional first-floor apartment offers stylish, spacious living in the heart of the highly sought-after Shore area, arranged around an attractive shared courtyard.

Accessed via a well-maintained communal entrance and stair, the property opens into a welcoming hallway. The standout feature of the home is the impressive open-plan sitting, dining and kitchen area. With windows on three aspects, this stunning space is flooded with natural light, creating a bright and inviting atmosphere ideal for both relaxing and entertaining.

The contemporary kitchen is thoughtfully designed with an extensive range of storage and a striking central island incorporating the hob and sink. High-quality integrated Siemens appliances include an oven, microwave, warming drawer, full-height fridge and freezer, and dishwasher. The sitting area is enhanced by fitted bookshelves and French doors opening onto a Juliette balcony. A separate utility cupboard houses a Siemens washing machine and tumble dryer.

The principal bedroom suite features a dedicated dressing area with two double fitted wardrobes, leading through to a luxurious fully tiled en-suite shower room. Two further generously proportioned double bedrooms, both with fitted wardrobes, are served by a stylish family bathroom complete with bath, separate shower enclosure and mirrored cabinetry.

Presented in true move-in condition, the property further benefits from double glazing and efficient electric heating, including Fischer heaters in the main living space.

A factoring arrangement is in place for the maintenance of communal areas, including the building, courtyard, stair cleaning and block buildings insurance.

Externally, residents enjoy access to a shared courtyard, with on-street permit and metered parking available.

Gavin Smith

Associate Director

0131 624 4081

gavin.smith@rettie.co.uk

Sarah Tanner

Senior Sales Negotiator

0131 322 2658

sarah.tanner@rettie.co.uk

Summary of Accommodation

Entrance hall; open-plan sitting/dining/kitchen; utility cupboard; principal bedroom with dressing area and en-suite; two further double bedrooms; family bathroom.

General Remarks & Information

Fixtures and Fittings:

Only appliances specifically mentioned in the sales particulars are included in the sale price. In all other aspects the treatment of fixtures and fittings within the relevant Conveyancing Standard Clauses apply.

Services:

Gas heating, mains water, electricity, broadband, telephone (subject to telephone providers’ regulations).

Viewing:

By appointment through Rettie Edinburgh. 11 Wemyss Place, Edinburgh, EH3 6DH. Email: edinburghsales@rettie.co.uk Tel: 0131 220 4160

Offers:

Offers should be submitted in Scottish Legal Form to the selling agents Rettie & Co. A closing date by which offers must be submitted may be fixed later. Please note that interested parties are advised to register their interest with the selling agents in order that they may be advised should a closing date be set. The seller reserves the right to accept any offer at any time.

Council Tax Band:

E

EPC Rating:

C

Postcode:

EH6 5LD

Tenure:

Freehold

Particulars Prepared:

March 2026

This property and other properties offered by Rettie & Co. & Rettie LLP's. can be viewed on our website at www.rettie.co.uk as well as Rightmove, OnTheMarket and The London Office.

The property is sold subject to and with the benefit of all servitude rights, burdens, reservations and wayleaves including rights of access and rights of way, whether public or private, light, support, drainage, water and wayleaves for masts, pylons, stays, cable, drains and water, gas and other pipes whether contained in the title deeds or informally constituted and whether or not referred to above.

Rettie, their clients and any joint agents give notice that:

  1. They are not authorised to make or give any representations or warranties in relation to the property either in writing or by word of mouth. Any information given is entirely without responsibility on the part of the agents or the sellers. These particulars do not form part of any offer or contract and must not be relied upon as statements or representations of fact.
  2. All Rettie floorplans are drawn to RICS standard. The text, photographs and plans are for guidance only and are not necessarily comprehensive and it should not be assumed that the property remains as photographed. Any error, omission or mis-statement shall not annul the sale or entitle any party to compensation or recourse to action at law. It should not be assumed that the property has all necessary planning, building regulation or other consents, including for its current use. Rettie & Co. & Rettie LLP’s have not tested any services, equipment or facilities. Purchasers must satisfy themselves by inspection or otherwise and ought to seek their own professional advice.
  3. All descriptions or references to condition are given in good faith only. Whilst every endeavour is made to ensure accuracy, please check with us on any points of especial importance to you, especially if intending to travel some distance. No responsibility can be accepted for expenses incurred in inspecting properties which have been sold or withdrawn.
Under the HMRC Anti Money Laundering legislation all offers to purchase a property on a cash basis or subject to mortgage require evidence of source of funds. This may include evidence of bank statements/funding source, mortgage or confirmation from a solicitor the purchaser has the funds to conclude the transaction.

All individuals involved in the transaction are required to produce proof of identity and proof of address. Rettie use electronic verification, if this is not possible original documents are acceptable.
  1. The property is sold with all faults and defects, whether of condition or otherwise and neither the seller nor Rettie & Co. or Rettie LLP’s, the selling agent, are responsible for such faults and defects, nor for any statement contained in the particulars of the property prepared by the said agent.
  2. The Purchaser(s) shall be deemed to acknowledge that they have not entered into contract in reliance on the said statements, that they are satisfied themselves as to the content of each of the said statements by inspection or otherwise and that no warranty or representation has been made by the seller or the said agents in relation to or in connection with the property.
  3. Any error, omission or misstatement in any of the said statements shall not entitle the purchaser(s) to rescind or to be discharged from this contract, nor entitle either party to compensation or damages nor in any circumstances to give either party any cause for action.

Location

Great Junction Street is perfectly positioned in the heart of Leith, offering an outstanding lifestyle opportunity in one of Edinburgh’s most vibrant districts. Just a short five-minute walk away lies the ever-popular Shore, renowned for its selection of award-winning restaurants, lively bars, artisan cafés and a weekly food market.

Everyday amenities are right on the doorstep, including supermarkets and independent retailers, while Ocean Terminal offers a wider range of shopping, a Marks & Spencer Foodhall, and leisure facilities including a multi-screen cinema.

Edinburgh city centre is easily accessible and provides an abundance of cultural attractions, including museums, galleries, theatres and historic landmarks, alongside excellent shopping and dining. The nearby St James Quarter further enhances the retail and leisure offering with an exciting mix of shops, restaurants, entertainment and more.

For outdoor and recreational pursuits, the area benefits from excellent facilities such as David Lloyd Leisure Centre and Harbour Tennis Club, as well as beautiful green spaces including the Royal Botanic Garden, Inverleith Park and the Water of Leith walkway.

The area is also well connected by public transport, with excellent bus and tram links, and offers convenient access to the City Bypass, Edinburgh Airport and Scotland’s motorway network.

Contact us

    Gavin Smith

    Associate Director

    0131 624 4081

    gavin.smith@rettie.co.uk

    Sarah Tanner

    Senior Sales Negotiator

    0131 322 2658

    sarah.tanner@rettie.co.uk