200/6 Great Junction Street

Leith, Edinburgh, EH6 5LW

Gavin Smith

Associate Director

0131 624 4081

gavin.smith@rettie.co.uk

Maria Ponte

Senior Sales Negotiator

0131 624 9085

maria.ponte@rettie.co.uk

Leith, Edinburgh, EH6 5LW

1 Receptions
1 Beds
1 Baths
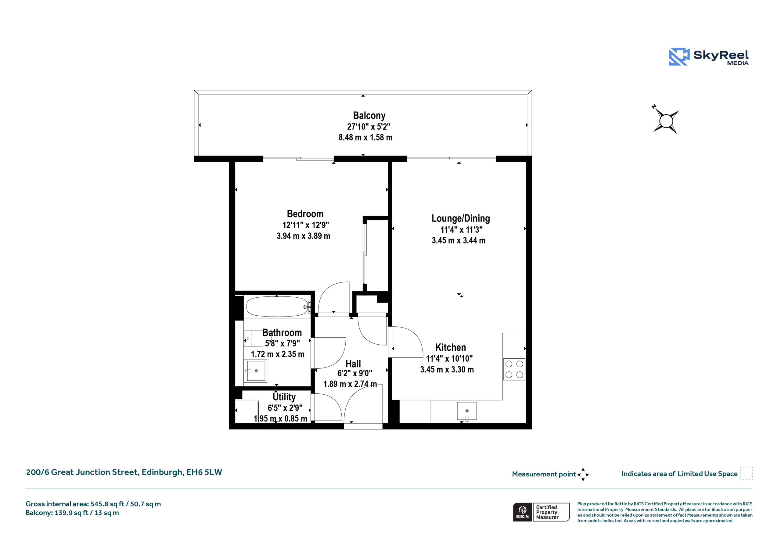
538 Sq ft

A luxurious, one-bedroom apartment forming part of an award-winning development located in a converted B-listed Art Deco Cinema by the Water of Leith, minutes from Leith's iconic Shore.

The development is entered under a stunning picture house canopy into a sensitively restored entrance foyer which leads through to the apartments and to the attractive south-facing Residents’ Courtyard. There is a shared resident’s roof terrace which offers stunning panoramic views over the city to Edinburgh Castle.  The apartments are serviced by a video entry phone system, lift service and solar panels power the communal areas.

This stunning apartment is presented in turn-key condition and benefits from large windows, flooding the property with natural light.  Located on the first floor, a particular feature is the generous open plan sitting room/dining/kitchen which has a door leading to the balcony which runs the full length of the apartment and has stunning views over the Water of Leith.  The designer German kitchen has a four-zone induction hob with extractor, a single electric fan oven, integrated fridge freezer and dishwasher. The spacious double bedroom features double fitted wardrobes and access to the balcony, a modern bathroom and utility/storeroom completes the accommodation.


Gavin Smith

Associate Director

0131 624 4081

gavin.smith@rettie.co.uk

Maria Ponte

Senior Sales Negotiator

0131 624 9085

maria.ponte@rettie.co.uk

Summary of Accommodation

Hall, Open Plan Living / Dining / Kitchen, Double Bedroom, Bathroom, Utility
Triple glazing and gas central heating
Video Entry Phone, Lift

Outside:
Balcony, Shared Residents’ Courtyard & Roof Terrace, Bicycle Storage

Residents’ Permit Parking and Pay & Display Parking provided nearby.

General Remarks & Information

Fixtures and Fittings:

Only appliances specifically mentioned in the sales particulars are included in the sale price. In all other aspects the treatment of fixtures and fittings within the relevant Conveyancing Standard Clauses apply.

Services:

Gas heating, mains water, electricity, broadband, telephone (subject to telephone providers’ regulations).

Viewing:

By appointment through Rettie Edinburgh. 11 Wemyss Place, Edinburgh, EH3 6DH. Email: edinburghsales@rettie.co.uk Tel: 0131 220 4160

Offers:

Offers should be submitted in Scottish Legal Form to the selling agents Rettie & Co. A closing date by which offers must be submitted may be fixed later. Please note that interested parties are advised to register their interest with the selling agents in order that they may be advised should a closing date be set. The seller reserves the right to accept any offer at any time.

Council Tax Band:

D

EPC Rating:

B

Postcode:

EH6 5LW

Tenure:

Freehold

Particulars Prepared:

April 2026

This property and other properties offered by Rettie & Co. & Rettie LLP's. can be viewed on our website at www.rettie.co.uk as well as Rightmove, OnTheMarket and The London Office.

The property is sold subject to and with the benefit of all servitude rights, burdens, reservations and wayleaves including rights of access and rights of way, whether public or private, light, support, drainage, water and wayleaves for masts, pylons, stays, cable, drains and water, gas and other pipes whether contained in the title deeds or informally constituted and whether or not referred to above.


Under the HMRC Anti Money Laundering legislation all offers to purchase a property on a cash basis or subject to mortgage require evidence of source of funds. This may include evidence of bank statements/funding source, mortgage or confirmation from a solicitor the purchaser has the funds to conclude the transaction.

All individuals involved in the transaction are required to produce proof of identity and proof of address. Rettie use electronic verification, if this is not possible original documents are acceptable.


Location

Leith is one of Edinburgh’s most dynamic and sought-after districts, renowned for its vibrant atmosphere, rich history, and thriving local community. Located just north of the city centre, it blends a unique mix of heritage architecture, contemporary developments, and a bustling waterfront scene.

At the heart of Leith is The Shore, a lively area lined with award-winning restaurants, trendy cafés, traditional pubs, and artisan shops. The district also offers excellent cultural attractions, including the Royal Yacht Britannia at nearby Ocean Terminal and various galleries and creative spaces that showcase Leith’s artistic spirit.

Leith is exceptionally well-connected, with regular bus services and the Edinburgh Tram extension now providing direct links to the city centre and airport. The area is also popular with professionals due to its proximity to tech hubs, creative industries, and financial districts.

Green spaces such as Leith Links and the Water of Leith Walkway provide peaceful outdoor escapes, while a growing number of independent retailers, delis, and local markets contribute to Leith’s strong sense of community and charm.

With its distinctive character, excellent amenities, and ongoing regeneration, Leith continues to be one of the most popular places to live in Edinburgh.

Contact us

    Gavin Smith

    Associate Director

    0131 624 4081

    gavin.smith@rettie.co.uk

    Maria Ponte

    Senior Sales Negotiator

    0131 624 9085

    maria.ponte@rettie.co.uk