33/29 Water Street

Leith, Edinburgh, EH6 6SZ

Gavin Smith

Associate Director

0131 624 4081

gavin.smith@rettie.co.uk

Maria Ponte

Senior Sales Negotiator

0131 624 9085

maria.ponte@rettie.co.uk

Leith, Edinburgh, EH6 6SZ

1 Receptions
3 Beds
2 Baths
1259 Sq ft

A spacious and well-presented, three-bedroom, two-bathroom, third floor apartment forming part of the Maritime Bond development situated in The Shore area in Leith. The former bonded warehouse has been sensitively restored, combining this unique building’s timeless features with modern design details to create the perfect blend of old and new.

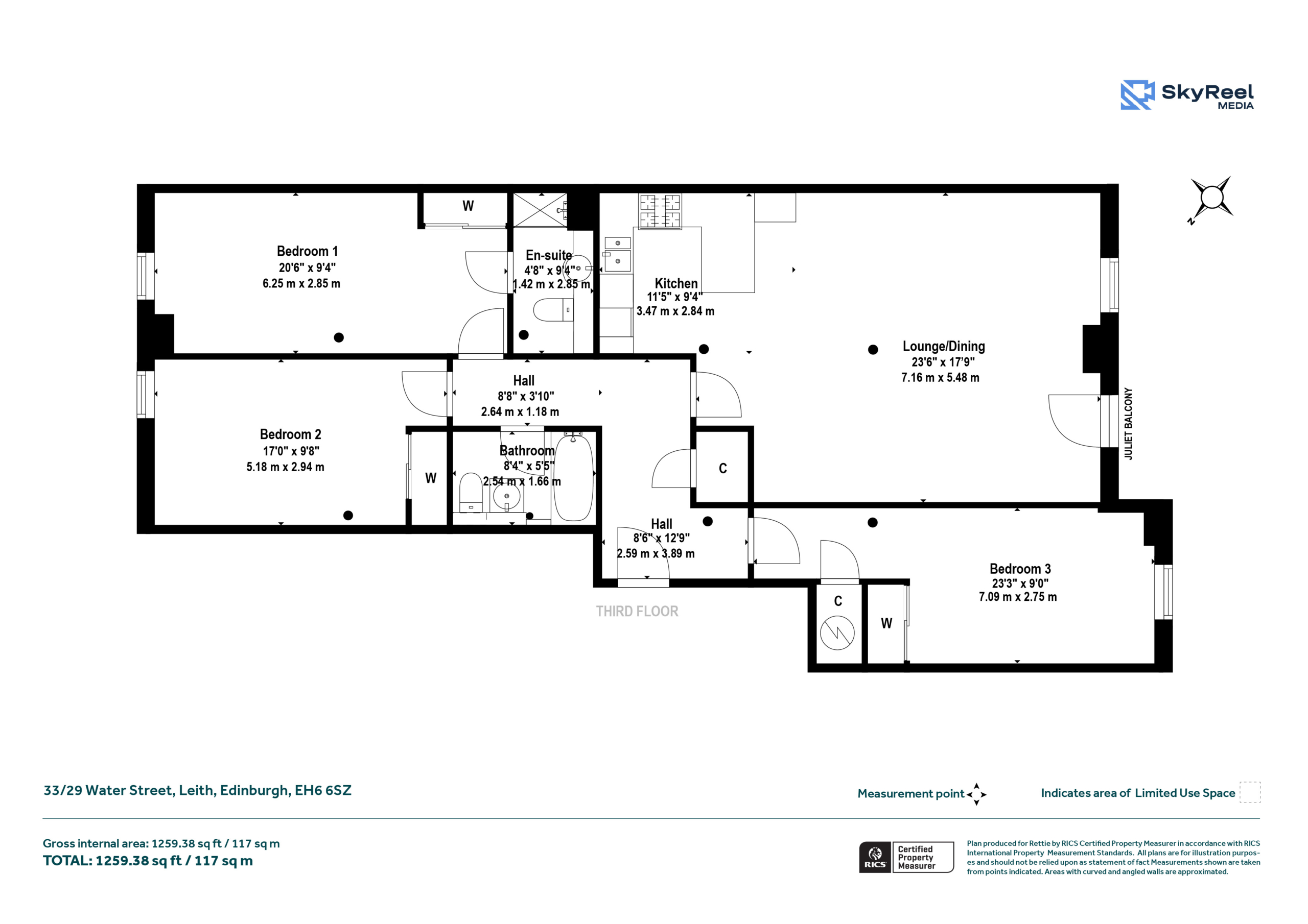
Positioned on the third floor and served by a lift, the property combines generous proportions with modern design, creating an impressive home ideal for professionals, families, or investors.  The accommodation extends to approximately 117 sq m (1,259 sq ft) with fabulous open plan living / dining / kitchen area, three double bedrooms, the principal bedroom with ensuite shower room, family bathroom and an allocated, secure underground car parking space.

This is a fantastic opportunity to enjoy stylish urban living in a well‑connected location.

Gavin Smith

Associate Director

0131 624 4081

gavin.smith@rettie.co.uk

Maria Ponte

Senior Sales Negotiator

0131 624 9085

maria.ponte@rettie.co.uk

Summary of Accommodation

Third Floor: Entrance Hall, Open Plan Living, Dining, Kitchen, Principal Bedroom with ensuite Shower Room, Two further Double Bedrooms, Family Bathroom, Deep Hall Cupboard.
Video Entry System, Lift

Externally: Communal Residents' Sun Deck - located on the first floor, to the rear of the development.
Allocated Secure Car Parking Space, Residents’ Bicycle Storage.

General Remarks & Information

Fixtures and Fittings:

Only appliances specifically mentioned in the sales particulars are included in the sale price. In all other aspects the treatment of fixtures and fittings within the relevant Conveyancing Standard Clauses apply.

Services:

Gas heating, mains water, electricity, broadband, telephone (subject to telephone providers’ regulations).

Viewing:

By appointment through Rettie Edinburgh. 11 Wemyss Place, Edinburgh, EH3 6DH. Email: edinburghsales@rettie.co.uk Tel: 0131 220 4160

Offers:

Offers should be submitted in Scottish Legal Form to the selling agents Rettie & Co. A closing date by which offers must be submitted may be fixed later. Please note that interested parties are advised to register their interest with the selling agents in order that they may be advised should a closing date be set. The seller reserves the right to accept any offer at any time.

Council Tax Band:

F

EPC Rating:

B

Postcode:

EH6 6SZ

Tenure:

Freehold

Particulars Prepared:

April 2026

This property and other properties offered by Rettie & Co. & Rettie LLP's. can be viewed on our website at www.rettie.co.uk as well as Rightmove, OnTheMarket and The London Office.

The property is sold subject to and with the benefit of all servitude rights, burdens, reservations and wayleaves including rights of access and rights of way, whether public or private, light, support, drainage, water and wayleaves for masts, pylons, stays, cable, drains and water, gas and other pipes whether contained in the title deeds or informally constituted and whether or not referred to above.


Under the HMRC Anti Money Laundering legislation all offers to purchase a property on a cash basis or subject to mortgage require evidence of source of funds. This may include evidence of bank statements/funding source, mortgage or confirmation from a solicitor the purchaser has the funds to conclude the transaction.

All individuals involved in the transaction are required to produce proof of identity and proof of address. Rettie use electronic verification, if this is not possible original documents are acceptable.


Location

Leith is one of Edinburgh’s most dynamic and sought-after districts, renowned for its vibrant atmosphere, rich history, and thriving local community. Located just north of the city centre, it blends a unique mix of heritage architecture, contemporary developments, and a bustling waterfront scene.

At the heart of Leith is The Shore, a lively area lined with award-winning restaurants, trendy cafés, traditional pubs, and artisan shops. The district also offers excellent cultural attractions, including the Royal Yacht Britannia at nearby Ocean Terminal and various galleries and creative spaces that showcase Leith’s artistic spirit.

Leith is exceptionally well-connected, with regular bus services and the Edinburgh Tram extension now providing direct links to the city centre and airport. The area is also popular with professionals due to its proximity to tech hubs, creative industries, and financial districts.

Green spaces such as Leith Links and the Water of Leith Walkway provide peaceful outdoor escapes, while a growing number of independent retailers, delis, and local markets contribute to Leith’s strong sense of community and charm.

With its distinctive character, excellent amenities, and ongoing regeneration, Leith continues to be one of the most desirable places to live in Edinburgh.

Contact us

    Gavin Smith

    Associate Director

    0131 624 4081

    gavin.smith@rettie.co.uk

    Maria Ponte

    Senior Sales Negotiator

    0131 624 9085

    maria.ponte@rettie.co.uk