147 Mearns Road

Glasgow, G76 7UU

Erica McFarlane

Senior Sales Negotiator

01414651493

erica.mcfarlane@rettie.co.uk

Glasgow, G76 7UU

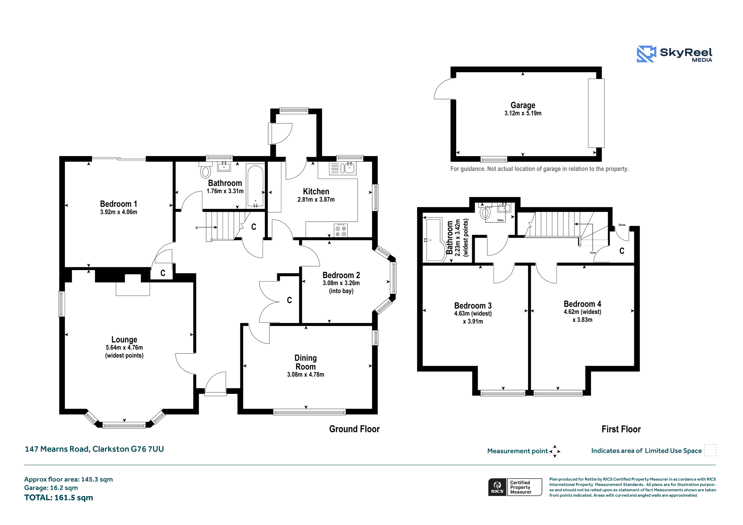
2 Receptions
4 Beds
2 Baths

This charming family home on Mearns Road enjoys superb open views across Cathcart Castle Golf Course to the front, offering an attractive outlook and an immediate sense of space on arrival. The property provides generous and versatile accommodation arranged over two levels, perfectly suited to modern family living.

The ground floor comprises a bright and spacious lounge, ideal for everyday relaxation, with a dining room that creates a welcoming setting for family meals and entertaining. The well-appointed kitchen is thoughtfully designed with storage and worktop space. Additionally, there are two generously proportioned bedrooms on the ground floor, including an attractive bay-windowed double bedroom and a further spacious bedroom featuring French doors that open directly onto the rear garden and patio area, while a family bathroom completes this level.

The first floor offers two further well-sized double bedrooms, along with a contemporary family bathroom. The layout is well balanced, providing comfortable and practical accommodation for growing families.

Further features include gas central heating and double glazing. Externally, the property benefits from off-street parking to the rear, in addition to a detached garage, offering excellent parking and storage solutions.

Erica McFarlane

Senior Sales Negotiator

01414651493

erica.mcfarlane@rettie.co.uk

General Remarks & Information

Fixtures and Fittings:

Only appliances specifically mentioned in the sales particulars are included in the sale price. In all other aspects the treatment of fixtures and fittings within the relevant Conveyancing Standard Clauses apply.

Services:

Gas heating, mains water, electricity, broadband, telephone (subject to telephone providers’ regulations).

Viewing:

By appointment through Rettie Newton Mearns. 116 Ayr Road, Newton Mearns, Glasgow, G77 6EG. Email: newtonmearns@rettie.co.uk Tel: 01416391999

Offers:

Offers should be submitted in Scottish Legal Form to the selling agents Rettie & Co. A closing date by which offers must be submitted may be fixed later. Please note that interested parties are advised to register their interest with the selling agents in order that they may be advised should a closing date be set. The seller reserves the right to accept any offer at any time.

Council Tax Band:

G

EPC Rating:

D

Postcode:

G76 7UU

Tenure:

Freehold

This property and other properties offered by Rettie & Co. & Rettie LLP's. can be viewed on our website at www.rettie.co.uk as well as Rightmove, OnTheMarket and The London Office.

The property is sold subject to and with the benefit of all servitude rights, burdens, reservations and wayleaves including rights of access and rights of way, whether public or private, light, support, drainage, water and wayleaves for masts, pylons, stays, cable, drains and water, gas and other pipes whether contained in the title deeds or informally constituted and whether or not referred to above.

Rettie, their clients and any joint agents give notice that:

  1. They are not authorised to make or give any representations or warranties in relation to the property either in writing or by word of mouth. Any information given is entirely without responsibility on the part of the agents or the sellers. These particulars do not form part of any offer or contract and must not be relied upon as statements or representations of fact.
  2. All Rettie floorplans are drawn to RICS standard. The text, photographs and plans are for guidance only and are not necessarily comprehensive and it should not be assumed that the property remains as photographed. Any error, omission or mis-statement shall not annul the sale or entitle any party to compensation or recourse to action at law. It should not be assumed that the property has all necessary planning, building regulation or other consents, including for its current use. Rettie & Co. & Rettie LLP’s have not tested any services, equipment or facilities. Purchasers must satisfy themselves by inspection or otherwise and ought to seek their own professional advice.
  3. All descriptions or references to condition are given in good faith only. Whilst every endeavour is made to ensure accuracy, please check with us on any points of especial importance to you, especially if intending to travel some distance. No responsibility can be accepted for expenses incurred in inspecting properties which have been sold or withdrawn.
Under the HMRC Anti Money Laundering legislation all offers to purchase a property on a cash basis or subject to mortgage require evidence of source of funds. This may include evidence of bank statements/funding source, mortgage or confirmation from a solicitor the purchaser has the funds to conclude the transaction.

All individuals involved in the transaction are required to produce proof of identity and proof of address. Rettie use electronic verification, if this is not possible original documents are acceptable.
  1. The property is sold with all faults and defects, whether of condition or otherwise and neither the seller nor Rettie & Co. or Rettie LLP’s, the selling agent, are responsible for such faults and defects, nor for any statement contained in the particulars of the property prepared by the said agent.
  2. The Purchaser(s) shall be deemed to acknowledge that they have not entered into contract in reliance on the said statements, that they are satisfied themselves as to the content of each of the said statements by inspection or otherwise and that no warranty or representation has been made by the seller or the said agents in relation to or in connection with the property.
  3. Any error, omission or misstatement in any of the said statements shall not entitle the purchaser(s) to rescind or to be discharged from this contract, nor entitle either party to compensation or damages nor in any circumstances to give either party any cause for action.

Location

The property is well positioned for local amenities, with Clarkston Toll close by for everyday shopping, cafes and services, while Newton Mearns and the popular Avenue shopping centre are also easily accessible. The home is located within an excellent school catchment area, making it a particularly attractive option for families seeking high-quality primary and secondary education.

Clarkston is one of East Renfrewshire’s most desirable residential areas, known for its strong sense of community, highly regarded schools and excellent transport links. With a wide selection of independent shops, cafés and restaurants, alongside nearby parks, golf clubs and leisure facilities, the area offers a superb quality of life. Regular rail and road links provide easy access to Glasgow city centre and beyond, making Clarkston an ideal location for families and commuters alike.

Contact us

    Erica McFarlane

    Senior Sales Negotiator

    01414651493

    erica.mcfarlane@rettie.co.uk