26 Laigh Road

Newton Mearns, Glasgow, G77 5EQ

Erica McFarlane

Senior Sales Negotiator

01414651493

erica.mcfarlane@rettie.co.uk

Newton Mearns, Glasgow, G77 5EQ

4 Beds

Situated within a highly sought‑after Newton Mearns address, this beautifully extended detached chalet villa offers exceptionally flexible family accommodation across two well‑proportioned levels. Set on a generous plot, the home combines spacious living areas, modern upgrades, and impressive outdoor space—perfect for growing families and those seeking versatility.

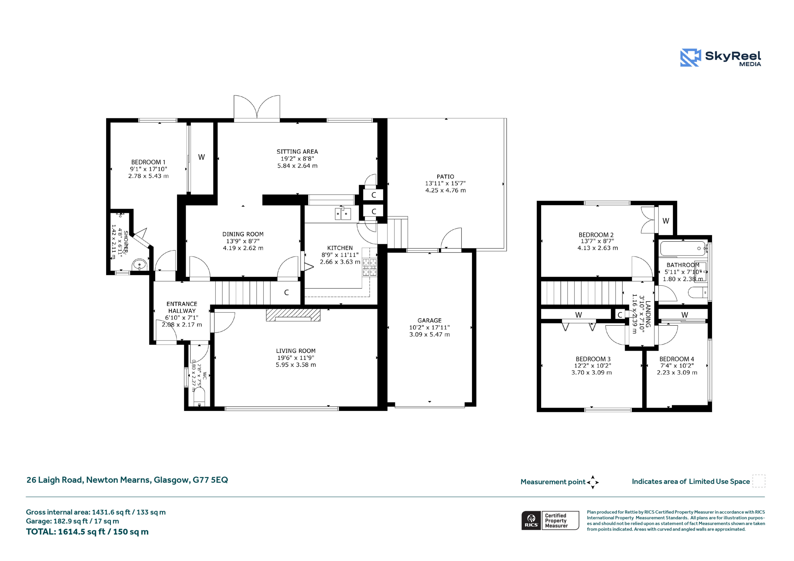
On entering, you are welcomed by a bright and inviting reception hallway with excellent storage. To the front, the formal lounge features generous proportions and a large picture window, creating a warm and comfortable living space. The heart of the home lies within the superb open‑plan sitting area to the rear, seamlessly connecting to the garden through patio doors—ideal for everyday family life and entertaining.

The ground floor further includes a well‑appointed dining room and a modern fitted kitchen with direct access to the rear garden and garage. A sizeable ground‑floor double bedroom with fitted storage and a contemporary shower room provides outstanding flexibility, making the space ideal for guests, multi‑generational living, or a home office.

Upstairs, the upper landing leads to three well‑proportioned bedrooms, each benefitting from fitted wardrobes. The family bathroom is beautifully finished, offering both style and practicality. Eaves storage further enhances the home’s already impressive storage capacity.

Externally, the property offers a generous mono-blocked driveway, garage, and large private gardens—perfect for children, pets, and outdoor entertaining.

This is a rare opportunity to acquire a spacious, extended family home in one of Newton Mearns’ most desirable residential pockets, close to excellent schools, amenities, transport links, and local parks.

Erica McFarlane

Senior Sales Negotiator

01414651493

erica.mcfarlane@rettie.co.uk

General Remarks & Information

Fixtures and Fittings:

Only appliances specifically mentioned in the sales particulars are included in the sale price. In all other aspects the treatment of fixtures and fittings within the relevant Conveyancing Standard Clauses apply.

Services:

Gas heating, mains water, electricity, broadband, telephone (subject to telephone providers’ regulations).

Viewing:

By appointment through Rettie Newton Mearns. 116 Ayr Road, Newton Mearns, Glasgow, G77 6EG. Email: newtonmearns@rettie.co.uk Tel: 01416391999

Offers:

Offers should be submitted in Scottish Legal Form to the selling agents Rettie & Co. A closing date by which offers must be submitted may be fixed later. Please note that interested parties are advised to register their interest with the selling agents in order that they may be advised should a closing date be set. The seller reserves the right to accept any offer at any time.

Postcode:

G77 5EQ

Tenure:

Not Specified

This property and other properties offered by Rettie & Co. & Rettie LLP's. can be viewed on our website at www.rettie.co.uk as well as Rightmove, OnTheMarket and The London Office.

The property is sold subject to and with the benefit of all servitude rights, burdens, reservations and wayleaves including rights of access and rights of way, whether public or private, light, support, drainage, water and wayleaves for masts, pylons, stays, cable, drains and water, gas and other pipes whether contained in the title deeds or informally constituted and whether or not referred to above.


Under the HMRC Anti Money Laundering legislation all offers to purchase a property on a cash basis or subject to mortgage require evidence of source of funds. This may include evidence of bank statements/funding source, mortgage or confirmation from a solicitor the purchaser has the funds to conclude the transaction.

All individuals involved in the transaction are required to produce proof of identity and proof of address. Rettie use electronic verification, if this is not possible original documents are acceptable.


Location

The surrounding area provides access to some of Scotland’s highest attaining primary and secondary schools. A wide selection of amenities is available nearby, including supermarkets, healthcare centres, libraries, and The Avenue Shopping Centre. Residents also benefit from excellent leisure facilities such as Parklands Country Club, several renowned golf clubs, various private sports clubs, and East Renfrewshire Council’s own sports and leisure centre at Eastwood Toll.

Contact us

    Erica McFarlane

    Senior Sales Negotiator

    01414651493

    erica.mcfarlane@rettie.co.uk