8 Frederick Boulevard

Thorntonhall, Glasgow, G74 5DE

Erica McFarlane

Senior Sales Negotiator

01414651493

erica.mcfarlane@rettie.co.uk

Thorntonhall, Glasgow, G74 5DE

6 Beds

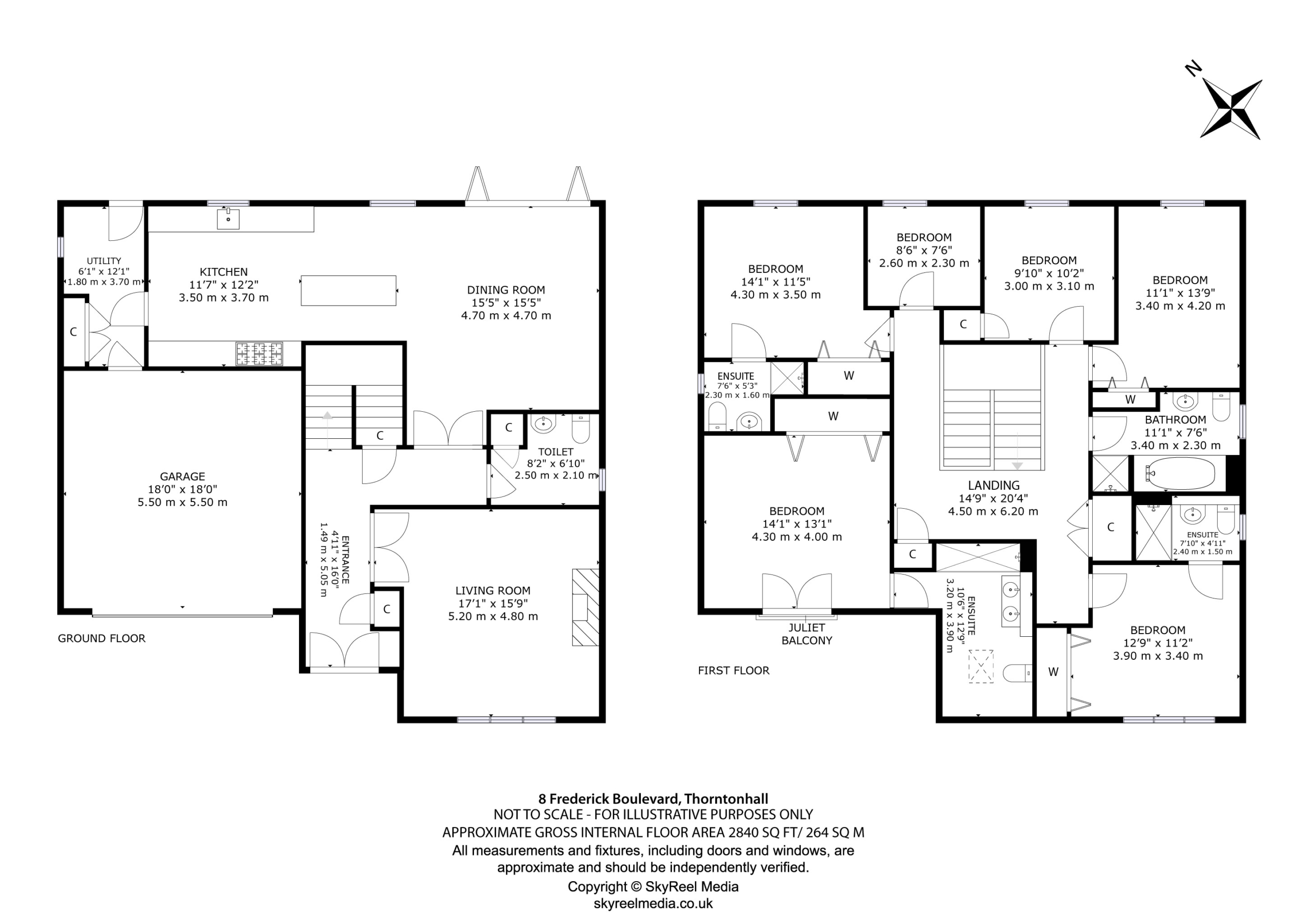
Set within an exclusive residential enclave of Thorntonhall, this substantial detached family home offers generous accommodation arranged over two well-designed levels, extending to approximately 2,840 sq ft. Thoughtfully configured for modern living, it combines spacious public rooms with versatile family areas and well-proportioned bedrooms, perfectly suited to those seeking comfort, flexibility, and a high standard of finish.

The ground floor is entered via a bright and welcoming reception hallway with excellent storage. To the front, an impressive living room features a gas stove and enjoys plentiful natural light. The heart of the home is the stylish, redesigned open-plan kitchen and dining area—an exceptional space for everyday family life and entertaining. The kitchen provides direct access to a practical utility room, while the dining area benefits from a generous footprint and French doors opening onto the landscaped rear garden. A ground-floor WC and internal access to the large double garage further enhance day-to-day convenience.

The first floor hosts six well-appointed bedrooms. The principal bedroom, positioned to the front, offers excellent proportions, fitted wardrobes, and a charming Juliette balcony with pleasant outlooks. It is complemented by a large en-suite bathroom featuring a double vanity and walk-in shower. Bedrooms two and three also include fitted wardrobes and private en-suite facilities. The remaining bedrooms offer ideal flexibility for a home office, nursery, or guest accommodation. A spacious family bathroom and a notably large landing complete the upper level.

Additional features include gas central heating, double glazing, a driveway providing ample off-street parking, and a double garage. The beautifully landscaped gardens incorporate a large patio terrace, well-stocked borders, and a level lawn. To the front, the property enjoys open outlooks over the communal garden grounds.

Erica McFarlane

Senior Sales Negotiator

01414651493

erica.mcfarlane@rettie.co.uk

General Remarks & Information

Fixtures and Fittings:

Only appliances specifically mentioned in the sales particulars are included in the sale price. In all other aspects the treatment of fixtures and fittings within the relevant Conveyancing Standard Clauses apply.

Services:

Gas heating, mains water, electricity, broadband, telephone (subject to telephone providers’ regulations).

Viewing:

By appointment through Rettie Newton Mearns. 116 Ayr Road, Newton Mearns, Glasgow, G77 6EG. Email: newtonmearns@rettie.co.uk Tel: 01416391999

Offers:

Offers should be submitted in Scottish Legal Form to the selling agents Rettie & Co. A closing date by which offers must be submitted may be fixed later. Please note that interested parties are advised to register their interest with the selling agents in order that they may be advised should a closing date be set. The seller reserves the right to accept any offer at any time.

Postcode:

G74 5DE

This property and other properties offered by Rettie & Co. & Rettie LLP's. can be viewed on our website at www.rettie.co.uk as well as Rightmove, OnTheMarket and The London Office.

The property is sold subject to and with the benefit of all servitude rights, burdens, reservations and wayleaves including rights of access and rights of way, whether public or private, light, support, drainage, water and wayleaves for masts, pylons, stays, cable, drains and water, gas and other pipes whether contained in the title deeds or informally constituted and whether or not referred to above.

Rettie, their clients and any joint agents give notice that:

  1. They are not authorised to make or give any representations or warranties in relation to the property either in writing or by word of mouth. Any information given is entirely without responsibility on the part of the agents or the sellers. These particulars do not form part of any offer or contract and must not be relied upon as statements or representations of fact.
  2. All Rettie floorplans are drawn to RICS standard. The text, photographs and plans are for guidance only and are not necessarily comprehensive and it should not be assumed that the property remains as photographed. Any error, omission or mis-statement shall not annul the sale or entitle any party to compensation or recourse to action at law. It should not be assumed that the property has all necessary planning, building regulation or other consents, including for its current use. Rettie & Co. & Rettie LLP’s have not tested any services, equipment or facilities. Purchasers must satisfy themselves by inspection or otherwise and ought to seek their own professional advice.
  3. All descriptions or references to condition are given in good faith only. Whilst every endeavour is made to ensure accuracy, please check with us on any points of especial importance to you, especially if intending to travel some distance. No responsibility can be accepted for expenses incurred in inspecting properties which have been sold or withdrawn.
Under the HMRC Anti Money Laundering legislation all offers to purchase a property on a cash basis or subject to mortgage require evidence of source of funds. This may include evidence of bank statements/funding source, mortgage or confirmation from a solicitor the purchaser has the funds to conclude the transaction.

All individuals involved in the transaction are required to produce proof of identity and proof of address. Rettie use electronic verification, if this is not possible original documents are acceptable.
  1. The property is sold with all faults and defects, whether of condition or otherwise and neither the seller nor Rettie & Co. or Rettie LLP’s, the selling agent, are responsible for such faults and defects, nor for any statement contained in the particulars of the property prepared by the said agent.
  2. The Purchaser(s) shall be deemed to acknowledge that they have not entered into contract in reliance on the said statements, that they are satisfied themselves as to the content of each of the said statements by inspection or otherwise and that no warranty or representation has been made by the seller or the said agents in relation to or in connection with the property.
  3. Any error, omission or misstatement in any of the said statements shall not entitle the purchaser(s) to rescind or to be discharged from this contract, nor entitle either party to compensation or damages nor in any circumstances to give either party any cause for action.

Location

Thorntonhall is a quiet and affluent leafy village, located approximately 7 miles south-west of Glasgow centre, characterised by substantial detached houses and luxury flatted developments in a series of tree-lined streets and cul-de-sacs.  East Kilbride, Clarkston, Giffnock, and Newton Mearns offer an array of supermarkets and retail amenities, whilst Silverburn Shopping Centre houses well-known high street stores. The village railway station provides regular direct services into Glasgow city centre under 30 minutes and the M77  ensures swift access to the city centre, Glasgow Airport, and along with the Southern Orbital an excellent connection to the Central Scotland motorway network as well as south towards Ayrshire and Prestwick Airport.

Residents enjoy access to a tennis club and there are also several renowned golf courses in the vicinity, such as Whitecraigs and Williamwood golf clubs. Picturesque walks include those at nearby Rouken Glen Park and Calderglen Country Park. The property sits within easy reach of highly regarded private schooling including Hutchesons’ Grammar School.

Contact us

    Erica McFarlane

    Senior Sales Negotiator

    01414651493

    erica.mcfarlane@rettie.co.uk