39 Fruin Avenue

Newton Mearns, Glasgow, G77 6HG

Erica McFarlane

Senior Sales Negotiator

01414651493

erica.mcfarlane@rettie.co.uk

Newton Mearns, Glasgow, G77 6HG

4 Beds

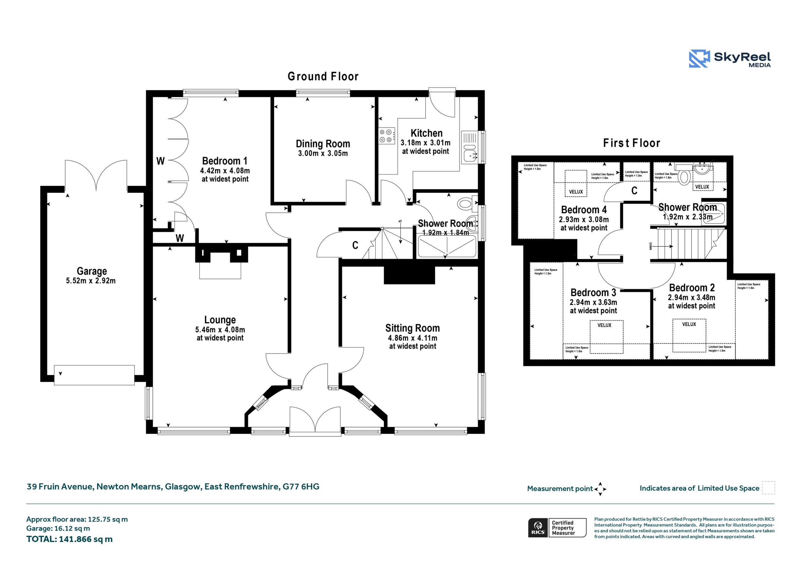
Located within a highly sought‑after residential pocket of Newton Mearns, this impressive detached bungalow offers flexible family accommodation across two well‑proportioned levels. Set on a generous plot and featuring multiple public rooms, four bedrooms, two shower rooms and an attached garage, the home presents an ideal opportunity for those looking for versatile living in one of the area’s most desirable neighbourhoods.

The ground floor is arranged around a welcoming central hallway which connects seamlessly to the main living spaces. To the front, the bright and spacious lounge features a double aspect window that floods the room with natural light. Adjacent is a further sitting room—equally suitable as a family room, home office, or additional bedroom—offering further flexibility.

The dining room sits at the heart of the home and is next to a well‑appointed kitchen with rear door access to the garden. Also on the ground floor is a generous double bedroom with built‑in storage, as well as a contemporary shower room.

The upper level provides three further bedrooms, all with Velux windows. A modern shower room completes the first‑floor accommodation.

Externally, the property benefits from an attached garage and driveway parking. The front garden offers well stocked shrubbery, the back garden provides al-fresco outdoor dining areas, lawn and mature planting.

This wonderful home combines spacious interiors with adaptable room layouts, making it particularly well suited to families, downsizers or anyone seeking single‑level living with the bonus of additional upstairs accommodation. Situated close to highly regarded schools, local amenities, parks and transport links, it represents an exceptional opportunity in a premier Newton Mearns location.

Erica McFarlane

Senior Sales Negotiator

01414651493

erica.mcfarlane@rettie.co.uk

General Remarks & Information

Fixtures and Fittings:

Only appliances specifically mentioned in the sales particulars are included in the sale price. In all other aspects the treatment of fixtures and fittings within the relevant Conveyancing Standard Clauses apply.

Services:

Gas heating, mains water, electricity, broadband, telephone (subject to telephone providers’ regulations).

Viewing:

By appointment through Rettie Newton Mearns. 116 Ayr Road, Newton Mearns, Glasgow, G77 6EG. Email: newtonmearns@rettie.co.uk Tel: 01416391999

Offers:

Offers should be submitted in Scottish Legal Form to the selling agents Rettie & Co. A closing date by which offers must be submitted may be fixed later. Please note that interested parties are advised to register their interest with the selling agents in order that they may be advised should a closing date be set. The seller reserves the right to accept any offer at any time.

Postcode:

G77 6HG

This property and other properties offered by Rettie & Co. & Rettie LLP's. can be viewed on our website at www.rettie.co.uk as well as Rightmove, OnTheMarket and The London Office.

The property is sold subject to and with the benefit of all servitude rights, burdens, reservations and wayleaves including rights of access and rights of way, whether public or private, light, support, drainage, water and wayleaves for masts, pylons, stays, cable, drains and water, gas and other pipes whether contained in the title deeds or informally constituted and whether or not referred to above.

Rettie, their clients and any joint agents give notice that:

  1. They are not authorised to make or give any representations or warranties in relation to the property either in writing or by word of mouth. Any information given is entirely without responsibility on the part of the agents or the sellers. These particulars do not form part of any offer or contract and must not be relied upon as statements or representations of fact.
  2. All Rettie floorplans are drawn to RICS standard. The text, photographs and plans are for guidance only and are not necessarily comprehensive and it should not be assumed that the property remains as photographed. Any error, omission or mis-statement shall not annul the sale or entitle any party to compensation or recourse to action at law. It should not be assumed that the property has all necessary planning, building regulation or other consents, including for its current use. Rettie & Co. & Rettie LLP’s have not tested any services, equipment or facilities. Purchasers must satisfy themselves by inspection or otherwise and ought to seek their own professional advice.
  3. All descriptions or references to condition are given in good faith only. Whilst every endeavour is made to ensure accuracy, please check with us on any points of especial importance to you, especially if intending to travel some distance. No responsibility can be accepted for expenses incurred in inspecting properties which have been sold or withdrawn.
Under the HMRC Anti Money Laundering legislation all offers to purchase a property on a cash basis or subject to mortgage require evidence of source of funds. This may include evidence of bank statements/funding source, mortgage or confirmation from a solicitor the purchaser has the funds to conclude the transaction.

All individuals involved in the transaction are required to produce proof of identity and proof of address. Rettie use electronic verification, if this is not possible original documents are acceptable.
  1. The property is sold with all faults and defects, whether of condition or otherwise and neither the seller nor Rettie & Co. or Rettie LLP’s, the selling agent, are responsible for such faults and defects, nor for any statement contained in the particulars of the property prepared by the said agent.
  2. The Purchaser(s) shall be deemed to acknowledge that they have not entered into contract in reliance on the said statements, that they are satisfied themselves as to the content of each of the said statements by inspection or otherwise and that no warranty or representation has been made by the seller or the said agents in relation to or in connection with the property.
  3. Any error, omission or misstatement in any of the said statements shall not entitle the purchaser(s) to rescind or to be discharged from this contract, nor entitle either party to compensation or damages nor in any circumstances to give either party any cause for action.

Location

The surrounding area provides access to some of Scotland’s highest attaining primary and secondary schools. A wide selection of amenities is available nearby, including supermarkets, healthcare centres, libraries, and The Avenue Shopping Centre. Residents also benefit from excellent leisure facilities such as Parklands Country Club, several renowned golf clubs, various private sports clubs, and East Renfrewshire Council’s own sports and leisure centre at Eastwood Toll.

Contact us

    Erica McFarlane

    Senior Sales Negotiator

    01414651493

    erica.mcfarlane@rettie.co.uk