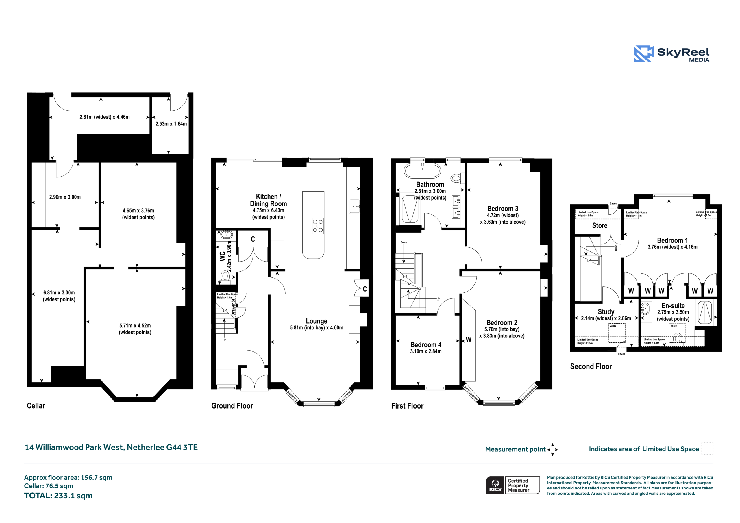
14 Williamwood Park West

Netherlee, Glasgow, G44 3TE

Erica McFarlane

Senior Sales Negotiator

01414651493

erica.mcfarlane@rettie.co.uk

Daniel Cohen

Associate Director

0141 530 9134

07867741491

daniel.cohen@rettie.co.uk

Netherlee, Glasgow, G44 3TE

2 Receptions
4 Beds
3 Baths

A truly stunning family home set over three levels with additional cellar storage, located in the heart of Netherlee, and ideally positioned close to a variety of local amenities on Clarkston Road, residents benefit from easy access to shops, cafes, and excellent transport links. This beautifully presented property combines period charm with modern living, offering generous proportions, stylish interiors, and landscaped gardens with the benefit of off-street parking and an EV charging point. The property also lies within the catchment area for highly regarded local schools, making it an ideal choice for families.

The accommodation begins with a welcoming vestibule and hallway, giving access to a guest WC and utility cupboard. At the heart of the home is the magnificent open-plan lounge, kitchen, and dining room. The lounge features a charming bay window and fireplace, while the contemporary kitchen is a bespoke Caddisfly design, complete with a Silestone worktop, vented downdraft induction hob, boiling tap, central island, integrated appliances and a breakfasting bar. The dining area is ideal for both family living and entertaining, with sliding doors opening directly onto a private decked terrace with glass balustrade overlooking the rear garden.

On the first floor, a spacious landing gives access to three well-proportioned bedrooms. Bedroom two enjoys a bay window and fitted wardrobes, while bedroom three overlooks the rear garden. Bedroom four provides flexibility as a home office or nursery. The luxurious family bathroom is finished to an exceptional standard with large porcelain tiles from Mandarin Stone, featuring a freestanding bath, double vanity, separate walk-in shower, and underfloor heating for added comfort.

The attic level hosts the impressive principal suite, comprising a large double bedroom with fitted wardrobes and a stylish en-suite shower room, also finished with Mandarin Stone porcelain tiles. A study with Velux window benefits from a Category 6 Ethernet cable, while an additional store room completes this floor, offering excellent flexibility for modern living.

The property also benefits from a substantial cellar, providing excellent storage space with access from the rear garden. Both the basement ceiling and attic have been insulated to improve energy efficiency. Externally, there are attractive gardens to the front and rear, with the convenience of a garden hose at both ends, as well as an outdoor power supply in the rear garden. The landscaped rear garden includes a decked terrace, lawn, and stocked borders. To the rear, a monobloc driveway provides private off-street parking along with the convenience of an installed electric car charger.

Additional modern features include a Smart Hive thermostat and a monitored ADT alarm system (subscription required, which the buyer may continue).

This exceptional property offers a rare opportunity to acquire a home of outstanding quality in one of Netherlee’s most sought-after addresses.

 

 

Erica McFarlane

Senior Sales Negotiator

01414651493

erica.mcfarlane@rettie.co.uk

Daniel Cohen

Associate Director

0141 530 9134

07867741491

daniel.cohen@rettie.co.uk

General Remarks & Information

Fixtures and Fittings:

Only appliances specifically mentioned in the sales particulars are included in the sale price. In all other aspects the treatment of fixtures and fittings within the relevant Conveyancing Standard Clauses apply.

Services:

Gas heating, mains water, electricity, broadband, telephone (subject to telephone providers’ regulations).

Viewing:

By appointment through Rettie Newton Mearns. 116 Ayr Road, Newton Mearns, Glasgow, G77 6EG. Email: newtonmearns@rettie.co.uk Tel: 01416391999

Offers:

Offers should be submitted in Scottish Legal Form to the selling agents Rettie & Co. A closing date by which offers must be submitted may be fixed later. Please note that interested parties are advised to register their interest with the selling agents in order that they may be advised should a closing date be set. The seller reserves the right to accept any offer at any time.

Postcode:

G44 3TE

Tenure:

Freehold

This property and other properties offered by Rettie & Co. & Rettie LLP's. can be viewed on our website at www.rettie.co.uk as well as Rightmove, OnTheMarket and The London Office.

The property is sold subject to and with the benefit of all servitude rights, burdens, reservations and wayleaves including rights of access and rights of way, whether public or private, light, support, drainage, water and wayleaves for masts, pylons, stays, cable, drains and water, gas and other pipes whether contained in the title deeds or informally constituted and whether or not referred to above.

Rettie, their clients and any joint agents give notice that:

  1. They are not authorised to make or give any representations or warranties in relation to the property either in writing or by word of mouth. Any information given is entirely without responsibility on the part of the agents or the sellers. These particulars do not form part of any offer or contract and must not be relied upon as statements or representations of fact.
  2. All Rettie floorplans are drawn to RICS standard. The text, photographs and plans are for guidance only and are not necessarily comprehensive and it should not be assumed that the property remains as photographed. Any error, omission or mis-statement shall not annul the sale or entitle any party to compensation or recourse to action at law. It should not be assumed that the property has all necessary planning, building regulation or other consents, including for its current use. Rettie & Co. & Rettie LLP’s have not tested any services, equipment or facilities. Purchasers must satisfy themselves by inspection or otherwise and ought to seek their own professional advice.
  3. All descriptions or references to condition are given in good faith only. Whilst every endeavour is made to ensure accuracy, please check with us on any points of especial importance to you, especially if intending to travel some distance. No responsibility can be accepted for expenses incurred in inspecting properties which have been sold or withdrawn.
Under the HMRC Anti Money Laundering legislation all offers to purchase a property on a cash basis or subject to mortgage require evidence of source of funds. This may include evidence of bank statements/funding source, mortgage or confirmation from a solicitor the purchaser has the funds to conclude the transaction.

All individuals involved in the transaction are required to produce proof of identity and proof of address. Rettie use electronic verification, if this is not possible original documents are acceptable.
  1. The property is sold with all faults and defects, whether of condition or otherwise and neither the seller nor Rettie & Co. or Rettie LLP’s, the selling agent, are responsible for such faults and defects, nor for any statement contained in the particulars of the property prepared by the said agent.
  2. The Purchaser(s) shall be deemed to acknowledge that they have not entered into contract in reliance on the said statements, that they are satisfied themselves as to the content of each of the said statements by inspection or otherwise and that no warranty or representation has been made by the seller or the said agents in relation to or in connection with the property.
  3. Any error, omission or misstatement in any of the said statements shall not entitle the purchaser(s) to rescind or to be discharged from this contract, nor entitle either party to compensation or damages nor in any circumstances to give either party any cause for action.

Location

Netherlee remains one of East Renfrewshire’s most desirable residential areas. Residents enjoy a wealth of independent shops, cafés, and restaurants, along with excellent transport connections to Glasgow City Centre and beyond. The area is well-served by sports and leisure facilities, including nearby parks, gyms, golf courses, and health clubs, all contributing to a vibrant and active community lifestyle.

Contact us

    Erica McFarlane

    Senior Sales Negotiator

    01414651493

    erica.mcfarlane@rettie.co.uk

    Daniel Cohen

    Associate Director

    0141 530 9134

    07867741491

    daniel.cohen@rettie.co.uk