40 Picketlaw Road

Eaglesham, Glasgow, G76 0BF

Daniel Cohen

Associate Director

0141 530 9134

07867741491

daniel.cohen@rettie.co.uk

Erica McFarlane

Senior Sales Negotiator

01414651493

erica.mcfarlane@rettie.co.uk

Eaglesham, Glasgow, G76 0BF

3 Beds

A beautifully presented and spacious three-bedroom detached home, situated within the highly sought-after Eaglesham development by McTaggart & Mickel.

Picketlaw Road enjoys a prime position in the charming semi-rural village of Eaglesham, renowned for its community feel and access to East Renfrewshire’s highly regarded schooling.

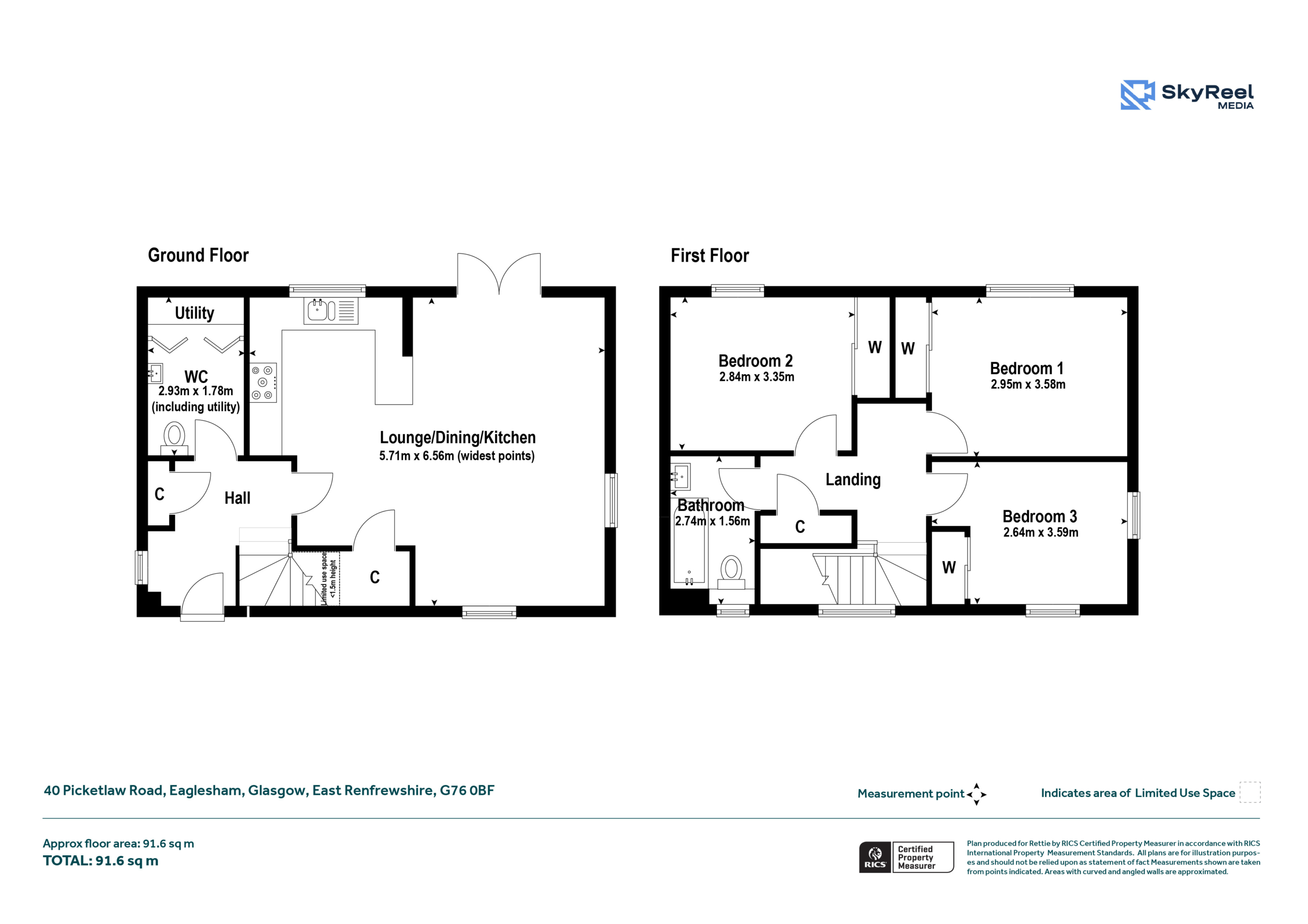
Arranged over two levels, the property offers well-proportioned living space throughout: Ground Floor: A welcoming reception hallway with storage, guest WC, and built-in utility cupboard. Bright and spacious sitting/dining room with dual-aspect windows, offering direct access to the rear garden and flowing seamlessly into the kitchen. The modern open-plan kitchen is fitted with a range of wall and base units, complemented by quality worktops.

First Floor: Upper landing giving access to all bedrooms. The principal bedroom benefits from fitted wardrobes, while bedrooms two and three are both doubles with built-in storage. A stylish family bathroom completes the accommodation.

The property is enhanced by gas central heating and double glazing. A driveway lies to the side, with additional parking available to the front. One of the home’s outstanding features is the landscaped gardens, designed for privacy and enjoyment. The rear garden offers a large lawn and an attractive terrace, perfect for outdoor entertaining.

 

 

Daniel Cohen

Associate Director

0141 530 9134

07867741491

daniel.cohen@rettie.co.uk

Erica McFarlane

Senior Sales Negotiator

01414651493

erica.mcfarlane@rettie.co.uk

General Remarks & Information

Fixtures and Fittings:

Only appliances specifically mentioned in the sales particulars are included in the sale price. In all other aspects the treatment of fixtures and fittings within the relevant Conveyancing Standard Clauses apply.

Services:

Gas heating, mains water, electricity, broadband, telephone (subject to telephone providers’ regulations).

Viewing:

By appointment through Rettie Newton Mearns. 116 Ayr Road, Newton Mearns, Glasgow, G77 6EG. Email: newtonmearns@rettie.co.uk Tel: 01416391999

Offers:

Offers should be submitted in Scottish Legal Form to the selling agents Rettie & Co. A closing date by which offers must be submitted may be fixed later. Please note that interested parties are advised to register their interest with the selling agents in order that they may be advised should a closing date be set. The seller reserves the right to accept any offer at any time.

Postcode:

G76 0BF

This property and other properties offered by Rettie & Co. & Rettie LLP's. can be viewed on our website at www.rettie.co.uk as well as Rightmove, OnTheMarket and The London Office.

The property is sold subject to and with the benefit of all servitude rights, burdens, reservations and wayleaves including rights of access and rights of way, whether public or private, light, support, drainage, water and wayleaves for masts, pylons, stays, cable, drains and water, gas and other pipes whether contained in the title deeds or informally constituted and whether or not referred to above.

Rettie, their clients and any joint agents give notice that:

  1. They are not authorised to make or give any representations or warranties in relation to the property either in writing or by word of mouth. Any information given is entirely without responsibility on the part of the agents or the sellers. These particulars do not form part of any offer or contract and must not be relied upon as statements or representations of fact.
  2. All Rettie floorplans are drawn to RICS standard. The text, photographs and plans are for guidance only and are not necessarily comprehensive and it should not be assumed that the property remains as photographed. Any error, omission or mis-statement shall not annul the sale or entitle any party to compensation or recourse to action at law. It should not be assumed that the property has all necessary planning, building regulation or other consents, including for its current use. Rettie & Co. & Rettie LLP’s have not tested any services, equipment or facilities. Purchasers must satisfy themselves by inspection or otherwise and ought to seek their own professional advice.
  3. All descriptions or references to condition are given in good faith only. Whilst every endeavour is made to ensure accuracy, please check with us on any points of especial importance to you, especially if intending to travel some distance. No responsibility can be accepted for expenses incurred in inspecting properties which have been sold or withdrawn.
Under the HMRC Anti Money Laundering legislation all offers to purchase a property on a cash basis or subject to mortgage require evidence of source of funds. This may include evidence of bank statements/funding source, mortgage or confirmation from a solicitor the purchaser has the funds to conclude the transaction.

All individuals involved in the transaction are required to produce proof of identity and proof of address. Rettie use electronic verification, if this is not possible original documents are acceptable.
  1. The property is sold with all faults and defects, whether of condition or otherwise and neither the seller nor Rettie & Co. or Rettie LLP’s, the selling agent, are responsible for such faults and defects, nor for any statement contained in the particulars of the property prepared by the said agent.
  2. The Purchaser(s) shall be deemed to acknowledge that they have not entered into contract in reliance on the said statements, that they are satisfied themselves as to the content of each of the said statements by inspection or otherwise and that no warranty or representation has been made by the seller or the said agents in relation to or in connection with the property.
  3. Any error, omission or misstatement in any of the said statements shall not entitle the purchaser(s) to rescind or to be discharged from this contract, nor entitle either party to compensation or damages nor in any circumstances to give either party any cause for action.

Location

The locally admired conservation village of Eaglesham is a fine example of late 18th-century planning and architecture, and the village was designated Scotland’s first outstanding conservation area in 1960. The village provides a range of local shops, up-market hotels, bars, restaurants, and the popular village primary school, as well as being within the catchment for nationally recognised first-class schooling. Some of Scotland’s highest attaining and most sought-after finest independent schools are all within this catchment area. The surrounding countryside offers quiet country lanes, fishing and a number of highly regarded golf courses including the adjacent Bonnyton Golf Club. There are regular bus services provided to the city centre and excellent motorway networks providing quick access to Glasgow and Ayrshire. Busby station and Clarkston station are the local train stations. Both Glasgow and Prestwick Airports are also within easy reach.

Contact us

    Daniel Cohen

    Associate Director

    0141 530 9134

    07867741491

    daniel.cohen@rettie.co.uk

    Erica McFarlane

    Senior Sales Negotiator

    01414651493

    erica.mcfarlane@rettie.co.uk