This beautiful three/four-bedroom detached home is set within the ever-popular area of Waterfoot, enjoying a tranquil position with outstanding open views. Located within highly sought-after East Renfrewshire, the property is only moments from the neighbouring areas of Eaglesham, Newton Mearns, Busby, and Clarkston, offering the perfect balance of peaceful surroundings and excellent accessibility.
Immaculately maintained throughout, this charming home offers predominantly all-on-one-level accommodation that combines style, comfort, and versatility.
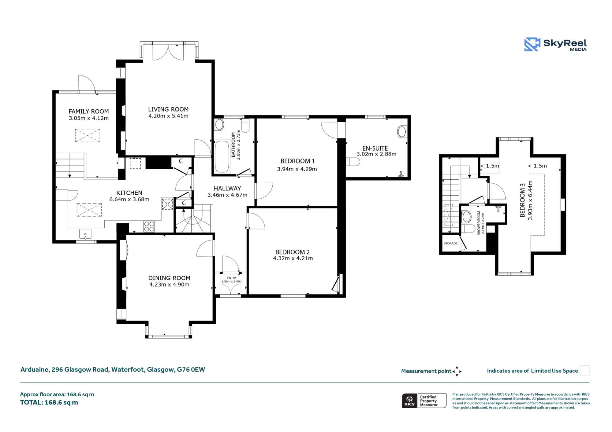
Entered via double storm doors into a welcoming vestibule, the property opens into a lovely reception hallway with a staircase to the upper floor and doors leading to all principal rooms. The beautiful rear lounge enjoys French doors opening onto a decked terrace with breathtaking open countryside views, while the bay-windowed dining room to the front overlooks the garden and can also be used as a further bedroom if desired. The stunning open-plan dining kitchen is fitted with a range of wall-mounted and floor-standing units, complementary work surfaces, and striking exposed brickwork. From here, stairs lead down to a comfortable family room that provides direct access to the rear garden - a perfect space for relaxing or entertaining. The principal bedroom benefits from fitted wardrobe space and a lovely ensuite shower room, while the second bedroom is also of double proportion and enjoys a bright, airy aspect. Completing the ground floor is a family bathroom fitted with a three-piece white suite.
Upstairs, there is a further bedroom with dormer windows to both the front and rear, a shower room, and ample eaves storage. The property further benefits from gas central heating, double glazing, a large driveway providing ample off-street parking, and a single garage.
A particular feature of this home is the gorgeous landscaped gardens to the front and rear, featuring terraces, lawn areas, mature planting, and a secluded shrubbery area that leads down to a peaceful burn. This exceptional outdoor space perfectly complements the home’s serene setting and makes it a truly special property in one of East Renfrewshire’s most desirable locations.
 
   
           
                     
               
               
               
               
               
               
               
               
               
               
               
               
               
               
               
               
               
               
               
               
               
               
               
               
               
               
               
               
               
               
               
               
               
               
               
               
               
               
               
               
               
               
               
               
               
              