1A Polnoon Street

Eaglesham, Glasgow, G76 0BH

Alison Anderson

Associate Director

0141 639 1999

alison.anderson@rettie.co.uk

Eaglesham, Glasgow, G76 0BH

4 Beds

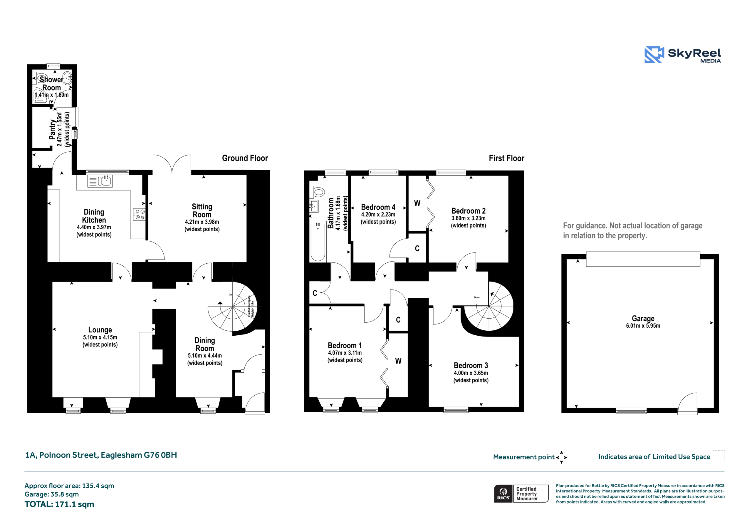
Located in the quaint and highly sought-after village of Eaglesham, this spacious four-bedroom terraced home offers generous family accommodation and the added benefit of a double garage to the rear. The property lies within an excellent schooling catchment area, making it an ideal choice for families seeking both space and a desirable village setting.

The accommodation on the ground floor begins with a welcoming entrance vestibule which leads through to a dining hall featuring a striking spiral staircase providing access to the first floor. There is a bright sitting room with French doors opening directly onto the rear garden, while the spacious lounge enjoys pleasant views over The Orry. The dining kitchen is well equipped with a range of wall-mounted and floor-standing units, offering ample space for family dining. To the rear, a pantry leads to a shower room and provides a door with direct access to the rear garden.

On the first floor, a spacious upper landing gives access to four well-proportioned bedrooms. Bedroom one benefits from a double window formation and generous wardrobe space, while bedroom two also offers wardrobe space and overlooks the rear garden. Bedrooms three and four are versatile rooms, with bedroom four also lending itself well to use as a home office or study. Completing the accommodation is a family bathroom fitted with a three-piece suite.

Further features of the property include gas central heating and double glazing. Externally, the rear garden offers a terraced area ideal for entertaining and outdoor dining. A double garage is located to the rear and is accessed via a lane behind the property, with additional on-street parking available to the front.

 

Alison Anderson

Associate Director

0141 639 1999

alison.anderson@rettie.co.uk

General Remarks & Information

Fixtures and Fittings:

Only appliances specifically mentioned in the sales particulars are included in the sale price. In all other aspects the treatment of fixtures and fittings within the relevant Conveyancing Standard Clauses apply.

Services:

Gas heating, mains water, electricity, broadband, telephone (subject to telephone providers’ regulations).

Viewing:

By appointment through Rettie Newton Mearns. 116 Ayr Road, Newton Mearns, Glasgow, G77 6EG. Email: newtonmearns@rettie.co.uk Tel: 01416391999

Offers:

Offers should be submitted in Scottish Legal Form to the selling agents Rettie & Co. A closing date by which offers must be submitted may be fixed later. Please note that interested parties are advised to register their interest with the selling agents in order that they may be advised should a closing date be set. The seller reserves the right to accept any offer at any time.

Postcode:

G76 0BH

This property and other properties offered by Rettie & Co. & Rettie LLP's. can be viewed on our website at www.rettie.co.uk as well as Rightmove, OnTheMarket and The London Office.

The property is sold subject to and with the benefit of all servitude rights, burdens, reservations and wayleaves including rights of access and rights of way, whether public or private, light, support, drainage, water and wayleaves for masts, pylons, stays, cable, drains and water, gas and other pipes whether contained in the title deeds or informally constituted and whether or not referred to above.

Rettie, their clients and any joint agents give notice that:

  1. They are not authorised to make or give any representations or warranties in relation to the property either in writing or by word of mouth. Any information given is entirely without responsibility on the part of the agents or the sellers. These particulars do not form part of any offer or contract and must not be relied upon as statements or representations of fact.
  2. All Rettie floorplans are drawn to RICS standard. The text, photographs and plans are for guidance only and are not necessarily comprehensive and it should not be assumed that the property remains as photographed. Any error, omission or mis-statement shall not annul the sale or entitle any party to compensation or recourse to action at law. It should not be assumed that the property has all necessary planning, building regulation or other consents, including for its current use. Rettie & Co. & Rettie LLP’s have not tested any services, equipment or facilities. Purchasers must satisfy themselves by inspection or otherwise and ought to seek their own professional advice.
  3. All descriptions or references to condition are given in good faith only. Whilst every endeavour is made to ensure accuracy, please check with us on any points of especial importance to you, especially if intending to travel some distance. No responsibility can be accepted for expenses incurred in inspecting properties which have been sold or withdrawn.
Under the HMRC Anti Money Laundering legislation all offers to purchase a property on a cash basis or subject to mortgage require evidence of source of funds. This may include evidence of bank statements/funding source, mortgage or confirmation from a solicitor the purchaser has the funds to conclude the transaction.

All individuals involved in the transaction are required to produce proof of identity and proof of address. Rettie use electronic verification, if this is not possible original documents are acceptable.
  1. The property is sold with all faults and defects, whether of condition or otherwise and neither the seller nor Rettie & Co. or Rettie LLP’s, the selling agent, are responsible for such faults and defects, nor for any statement contained in the particulars of the property prepared by the said agent.
  2. The Purchaser(s) shall be deemed to acknowledge that they have not entered into contract in reliance on the said statements, that they are satisfied themselves as to the content of each of the said statements by inspection or otherwise and that no warranty or representation has been made by the seller or the said agents in relation to or in connection with the property.
  3. Any error, omission or misstatement in any of the said statements shall not entitle the purchaser(s) to rescind or to be discharged from this contract, nor entitle either party to compensation or damages nor in any circumstances to give either party any cause for action.

Location

Eaglesham itself is a charming and historic conservation village, celebrated for its attractive 18th-century architecture, strong community spirit, and picturesque surroundings. The village provides a range of local amenities including independent shops, cafés, popular restaurants, and highly regarded schooling. Surrounded by beautiful countryside yet conveniently placed for commuting to Glasgow and beyond, Eaglesham offers an exceptional quality of life combining rural charm with everyday convenience.

Contact us

    Alison Anderson

    Associate Director

    0141 639 1999

    alison.anderson@rettie.co.uk