31 Windlaw Park Gardens

Netherlee, Glasgow, G44 3QN

Sophie Boyd

Sales Negotiator

0141 4651491

sophie.boyd@rettie.co.uk

Netherlee, Glasgow, G44 3QN

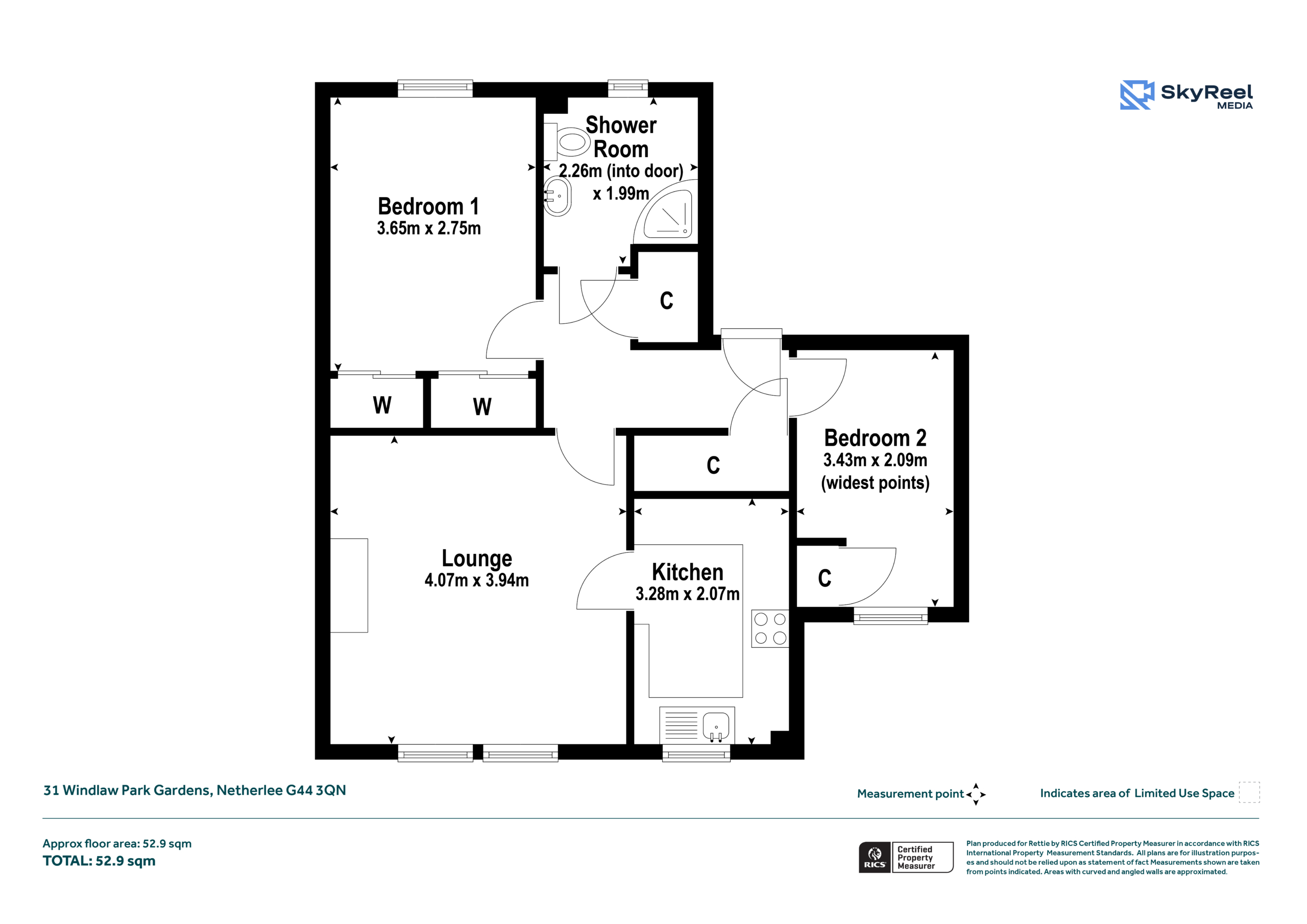
1 Receptions
2 Beds
1 Baths

A lovely and seldom available two-bedroom ground floor retirement flat, quietly positioned within this popular and well-located retirement development in the highly sought-after Netherlee district.

The accommodation is bright, well proportioned and designed for comfortable, level living. A welcoming reception hallway offers excellent storage and leads to a spacious lounge with ample space for both relaxing and dining. The fitted kitchen is practical and well laid out, with space for appliances. There are two bedrooms, both benefiting from built-in storage, along with a modern shower room designed for ease of use.

Further features include electric heating, double glazing, and residents’ parking, together with well-maintained communal areas that reflect the quality and care of the development. The property offers a peaceful and secure environment, ideal for retirement living.

Externally, the development is surrounded by neatly landscaped communal gardens, providing pleasant outdoor space to enjoy throughout the year.

 

Sophie Boyd

Sales Negotiator

0141 4651491

sophie.boyd@rettie.co.uk

General Remarks & Information

Fixtures and Fittings:

Only appliances specifically mentioned in the sales particulars are included in the sale price. In all other aspects the treatment of fixtures and fittings within the relevant Conveyancing Standard Clauses apply.

Services:

Electric heating, mains water, electricity, broadband, telephone (subject to telephone providers’ regulations).

Viewing:

By appointment through Rettie Newton Mearns. 116 Ayr Road, Newton Mearns, Glasgow, G77 6EG. Email: newtonmearns@rettie.co.uk Tel: 01416391999

Offers:

Offers should be submitted in Scottish Legal Form to the selling agents Rettie & Co. A closing date by which offers must be submitted may be fixed later. Please note that interested parties are advised to register their interest with the selling agents in order that they may be advised should a closing date be set. The seller reserves the right to accept any offer at any time.

Council Tax Band:

D

EPC Rating:

E

Postcode:

G44 3QN

Tenure:

Freehold

This property and other properties offered by Rettie & Co. & Rettie LLP's. can be viewed on our website at www.rettie.co.uk as well as Rightmove, OnTheMarket and The London Office.

The property is sold subject to and with the benefit of all servitude rights, burdens, reservations and wayleaves including rights of access and rights of way, whether public or private, light, support, drainage, water and wayleaves for masts, pylons, stays, cable, drains and water, gas and other pipes whether contained in the title deeds or informally constituted and whether or not referred to above.

Rettie, their clients and any joint agents give notice that:

  1. They are not authorised to make or give any representations or warranties in relation to the property either in writing or by word of mouth. Any information given is entirely without responsibility on the part of the agents or the sellers. These particulars do not form part of any offer or contract and must not be relied upon as statements or representations of fact.
  2. All Rettie floorplans are drawn to RICS standard. The text, photographs and plans are for guidance only and are not necessarily comprehensive and it should not be assumed that the property remains as photographed. Any error, omission or mis-statement shall not annul the sale or entitle any party to compensation or recourse to action at law. It should not be assumed that the property has all necessary planning, building regulation or other consents, including for its current use. Rettie & Co. & Rettie LLP’s have not tested any services, equipment or facilities. Purchasers must satisfy themselves by inspection or otherwise and ought to seek their own professional advice.
  3. All descriptions or references to condition are given in good faith only. Whilst every endeavour is made to ensure accuracy, please check with us on any points of especial importance to you, especially if intending to travel some distance. No responsibility can be accepted for expenses incurred in inspecting properties which have been sold or withdrawn.
Under the HMRC Anti Money Laundering legislation all offers to purchase a property on a cash basis or subject to mortgage require evidence of source of funds. This may include evidence of bank statements/funding source, mortgage or confirmation from a solicitor the purchaser has the funds to conclude the transaction.

All individuals involved in the transaction are required to produce proof of identity and proof of address. Rettie use electronic verification, if this is not possible original documents are acceptable.
  1. The property is sold with all faults and defects, whether of condition or otherwise and neither the seller nor Rettie & Co. or Rettie LLP’s, the selling agent, are responsible for such faults and defects, nor for any statement contained in the particulars of the property prepared by the said agent.
  2. The Purchaser(s) shall be deemed to acknowledge that they have not entered into contract in reliance on the said statements, that they are satisfied themselves as to the content of each of the said statements by inspection or otherwise and that no warranty or representation has been made by the seller or the said agents in relation to or in connection with the property.
  3. Any error, omission or misstatement in any of the said statements shall not entitle the purchaser(s) to rescind or to be discharged from this contract, nor entitle either party to compensation or damages nor in any circumstances to give either party any cause for action.

Location

Netherlee is a highly regarded residential area, seamlessly joining onto neighbouring Muirend and offering an excellent range of local amenities. Nearby are a variety of shops, cafés and services, with larger supermarkets and medical facilities close at hand. The area is well served by regular public transport links, providing easy access to Glasgow city centre and surrounding districts. Beautiful open spaces, including Linn Park and nearby green areas, further enhance the appeal, making Netherlee a particularly popular choice for retirement living.

Contact us

    Sophie Boyd

    Sales Negotiator

    0141 4651491

    sophie.boyd@rettie.co.uk