5 Petty Court

Jackton, Glasgow, G74 5PX

Erica McFarlane

Senior Sales Negotiator

01414651493

erica.mcfarlane@rettie.co.uk

Jackton, Glasgow, G74 5PX

5 Beds

5 Bedroom Detached Villa in Jackton

Situated within the highly sought-after and family-friendly area of Jackton, this impressive five-bedroom detached villa offers generous, flexible living space ideal for modern family life.

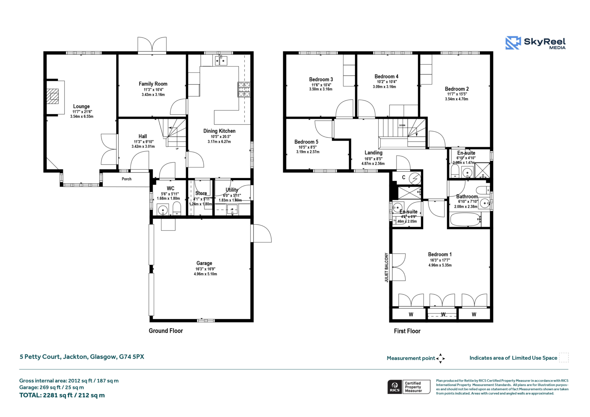
Ground Floor

The welcoming entrance porch leads into a spacious reception hall with staircase to the upper level. To the left of the hallway, a bright and comfortable lounge which has dual aspect windows provides the perfect setting for relaxing or entertaining.

To the right, the heart of the home is the expansive dining kitchen, thoughtfully designed with ample space for family dining. A separate family room with direct access to the rear garden offers additional living space — ideal as a playroom, snug or home office.

Practicality is well catered for with a utility room, WC, store room, and integral garage providing excellent storage and everyday convenience.

First Floor

Upstairs, a generous landing leads to five well-proportioned bedrooms. The impressive principal bedroom benefits from fitted wardrobes and a private en-suite shower room. Bedroom two also enjoys its own en-suite, making it ideal for guests or older children.

Three further bedrooms provide flexible accommodation for growing families, home working, or hobby space. A modern family bathroom completes the upper level.

Key Features:

  • Spacious five-bedroom detached home
  • Two en-suite shower rooms plus family bathroom
  • Large dining kitchen with separate utility room
  • Multiple reception rooms (lounge & family room)
  • Large landscaped gardens
  • Integral garage
  • Excellent storage throughout
  • Sought-after residential location

Additional features include gas central heating, double glazing, a large monoblocked driveway providing ample off-street parking, and a double garage. The beautifully landscaped gardens incorporate a large patio terrace wrapping round the back and side of the property, well-stocked borders, a pergola, and a large lawn.

With its generous layout, versatile living spaces and prime location close to local amenities, schools and transport links, this outstanding home presents an ideal opportunity for families seeking space and comfort in a prestigious setting.

Early viewing is highly recommended.

Erica McFarlane

Senior Sales Negotiator

01414651493

erica.mcfarlane@rettie.co.uk

General Remarks & Information

Fixtures and Fittings:

Only appliances specifically mentioned in the sales particulars are included in the sale price. In all other aspects the treatment of fixtures and fittings within the relevant Conveyancing Standard Clauses apply.

Services:

Gas heating, mains water, electricity, broadband, telephone (subject to telephone providers’ regulations).

Viewing:

By appointment through Rettie Newton Mearns. 116 Ayr Road, Newton Mearns, Glasgow, G77 6EG. Email: newtonmearns@rettie.co.uk Tel: 01416391999

Offers:

Offers should be submitted in Scottish Legal Form to the selling agents Rettie & Co. A closing date by which offers must be submitted may be fixed later. Please note that interested parties are advised to register their interest with the selling agents in order that they may be advised should a closing date be set. The seller reserves the right to accept any offer at any time.

Postcode:

G74 5PX

This property and other properties offered by Rettie & Co. & Rettie LLP's. can be viewed on our website at www.rettie.co.uk as well as Rightmove, OnTheMarket and The London Office.

The property is sold subject to and with the benefit of all servitude rights, burdens, reservations and wayleaves including rights of access and rights of way, whether public or private, light, support, drainage, water and wayleaves for masts, pylons, stays, cable, drains and water, gas and other pipes whether contained in the title deeds or informally constituted and whether or not referred to above.

Rettie, their clients and any joint agents give notice that:

  1. They are not authorised to make or give any representations or warranties in relation to the property either in writing or by word of mouth. Any information given is entirely without responsibility on the part of the agents or the sellers. These particulars do not form part of any offer or contract and must not be relied upon as statements or representations of fact.
  2. All Rettie floorplans are drawn to RICS standard. The text, photographs and plans are for guidance only and are not necessarily comprehensive and it should not be assumed that the property remains as photographed. Any error, omission or mis-statement shall not annul the sale or entitle any party to compensation or recourse to action at law. It should not be assumed that the property has all necessary planning, building regulation or other consents, including for its current use. Rettie & Co. & Rettie LLP’s have not tested any services, equipment or facilities. Purchasers must satisfy themselves by inspection or otherwise and ought to seek their own professional advice.
  3. All descriptions or references to condition are given in good faith only. Whilst every endeavour is made to ensure accuracy, please check with us on any points of especial importance to you, especially if intending to travel some distance. No responsibility can be accepted for expenses incurred in inspecting properties which have been sold or withdrawn.
Under the HMRC Anti Money Laundering legislation all offers to purchase a property on a cash basis or subject to mortgage require evidence of source of funds. This may include evidence of bank statements/funding source, mortgage or confirmation from a solicitor the purchaser has the funds to conclude the transaction.

All individuals involved in the transaction are required to produce proof of identity and proof of address. Rettie use electronic verification, if this is not possible original documents are acceptable.
  1. The property is sold with all faults and defects, whether of condition or otherwise and neither the seller nor Rettie & Co. or Rettie LLP’s, the selling agent, are responsible for such faults and defects, nor for any statement contained in the particulars of the property prepared by the said agent.
  2. The Purchaser(s) shall be deemed to acknowledge that they have not entered into contract in reliance on the said statements, that they are satisfied themselves as to the content of each of the said statements by inspection or otherwise and that no warranty or representation has been made by the seller or the said agents in relation to or in connection with the property.
  3. Any error, omission or misstatement in any of the said statements shall not entitle the purchaser(s) to rescind or to be discharged from this contract, nor entitle either party to compensation or damages nor in any circumstances to give either party any cause for action.

Location

Jackton also benefits from its proximity to the motorway network, with the new south orbital road on the extended M77 providing easy access to the M8 network which can take you to many locations throughout the central belt. Rail travel, with regular service to Glasgow, is available from both Hairmyres in East Kilbride and Thorntonhall, each just a few minutes' drive from the property.

Contact us

    Erica McFarlane

    Senior Sales Negotiator

    01414651493

    erica.mcfarlane@rettie.co.uk