21 Lynn Drive

Eaglesham, Glasgow, G76 0JJ

Erica McFarlane

Senior Sales Negotiator

01414651493

erica.mcfarlane@rettie.co.uk

Eaglesham, Glasgow, G76 0JJ

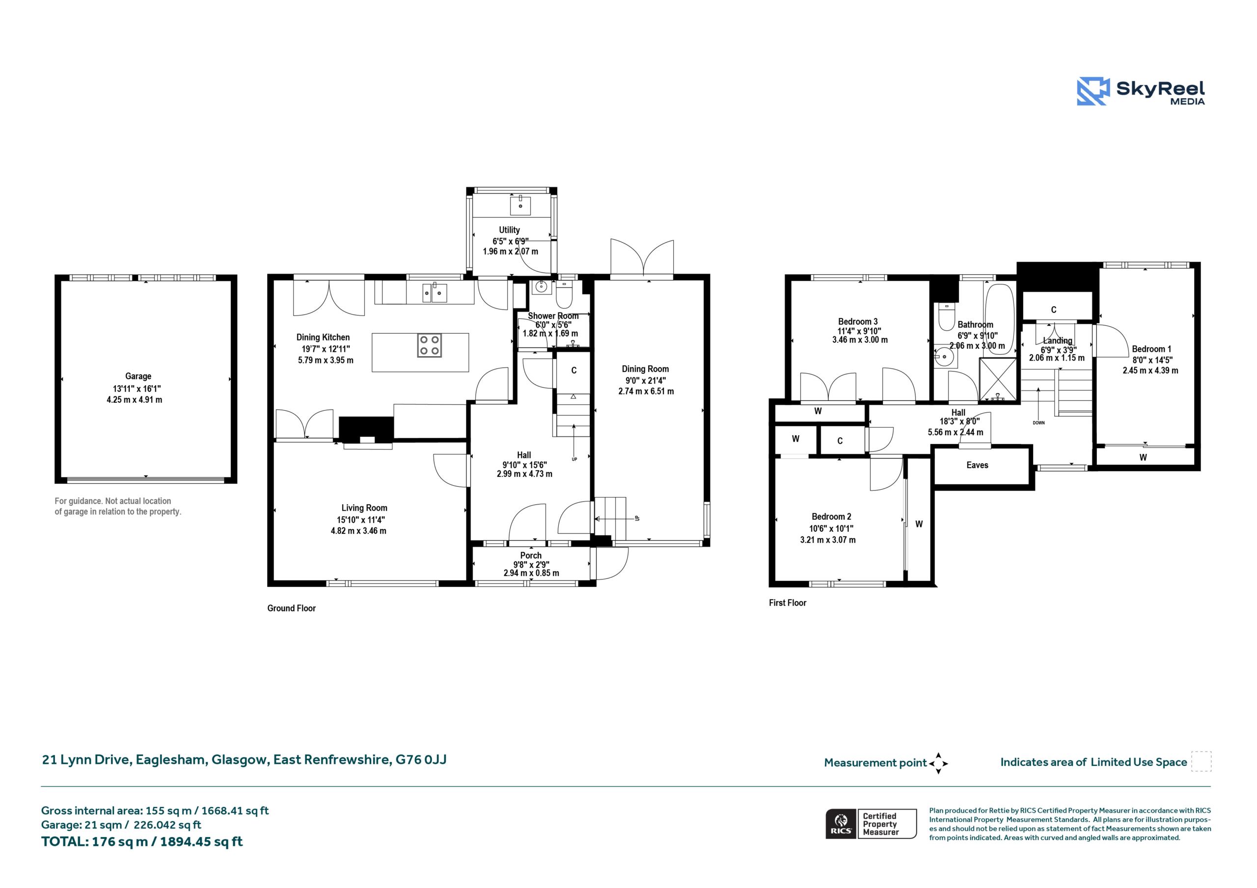
2 Receptions
3 Beds
2 Baths

Set within the highly sought-after village of Eaglesham, this beautifully presented detached home offers an exceptional blend of spacious living, scenic surroundings, and an outstanding garden that truly sets it apart.

From the moment you arrive, the property impresses with its generous proportions and well-balanced layout. The ground floor features a bright and welcoming living room, perfect for relaxing or entertaining, alongside a spacious dining kitchen that forms the heart of the home, with ample room for family dining and direct access to the garden, it’s a space designed for everyday living. A separate dining room/sitting room also with garden access provides additional flexibility. The ground floor is completed with practical elements such as a utility room, shower room, and convenient storage.

Upstairs, the home continues to deliver with three well-proportioned bedrooms. The principal bedroom is a great size with fitted wardrobes and stunning views. A family bathroom serves the upper level, and the layout ensures both privacy and functionality throughout.

What truly elevates this property is the spectacular garden. Expansive, beautifully maintained, and thoughtfully arranged, it offers a peaceful retreat with breathtaking, far-reaching views across the surrounding countryside. Whether enjoying a morning coffee, hosting summer gatherings, or simply soaking in the scenery, this outdoor space is nothing short of remarkable.

The property also benefits from a detached garage and a generous driveway, adding to its practicality and appeal.

Combining village charm with stunning natural outlooks, this is a rare opportunity to acquire a home that offers space, flexibility, and one of the finest garden settings in the area.

Erica McFarlane

Senior Sales Negotiator

01414651493

erica.mcfarlane@rettie.co.uk

General Remarks & Information

Fixtures and Fittings:

Only appliances specifically mentioned in the sales particulars are included in the sale price. In all other aspects the treatment of fixtures and fittings within the relevant Conveyancing Standard Clauses apply.

Services:

Gas heating, mains water, electricity, broadband, telephone (subject to telephone providers’ regulations).

Viewing:

By appointment through Rettie Newton Mearns. 116 Ayr Road, Newton Mearns, Glasgow, G77 6EG. Email: newtonmearns@rettie.co.uk Tel: 01416391999

Offers:

Offers should be submitted in Scottish Legal Form to the selling agents Rettie & Co. A closing date by which offers must be submitted may be fixed later. Please note that interested parties are advised to register their interest with the selling agents in order that they may be advised should a closing date be set. The seller reserves the right to accept any offer at any time.

Council Tax Band:

G

EPC Rating:

D

Postcode:

G76 0JJ

Tenure:

Freehold

This property and other properties offered by Rettie & Co. & Rettie LLP's. can be viewed on our website at www.rettie.co.uk as well as Rightmove, OnTheMarket and The London Office.

The property is sold subject to and with the benefit of all servitude rights, burdens, reservations and wayleaves including rights of access and rights of way, whether public or private, light, support, drainage, water and wayleaves for masts, pylons, stays, cable, drains and water, gas and other pipes whether contained in the title deeds or informally constituted and whether or not referred to above.


Under the HMRC Anti Money Laundering legislation all offers to purchase a property on a cash basis or subject to mortgage require evidence of source of funds. This may include evidence of bank statements/funding source, mortgage or confirmation from a solicitor the purchaser has the funds to conclude the transaction.

All individuals involved in the transaction are required to produce proof of identity and proof of address. Rettie use electronic verification, if this is not possible original documents are acceptable.


Location

Eaglesham remains one of East Renfrewshire’s most sought after villages, prized for its blend of character, community atmosphere and convenient access to commuter links, local shops and scenic walking routes. The property sits within the catchment for highly regarded local schooling and is ideally positioned for access to nearby amenities within the village and surrounding towns.

Contact us

    Erica McFarlane

    Senior Sales Negotiator

    01414651493

    erica.mcfarlane@rettie.co.uk