48 Picketlaw Farm Road

Carmunnock, G76 9EJ

Alison Anderson

Associate Director

0141 639 1999

alison.anderson@rettie.co.uk

Carmunnock, G76 9EJ

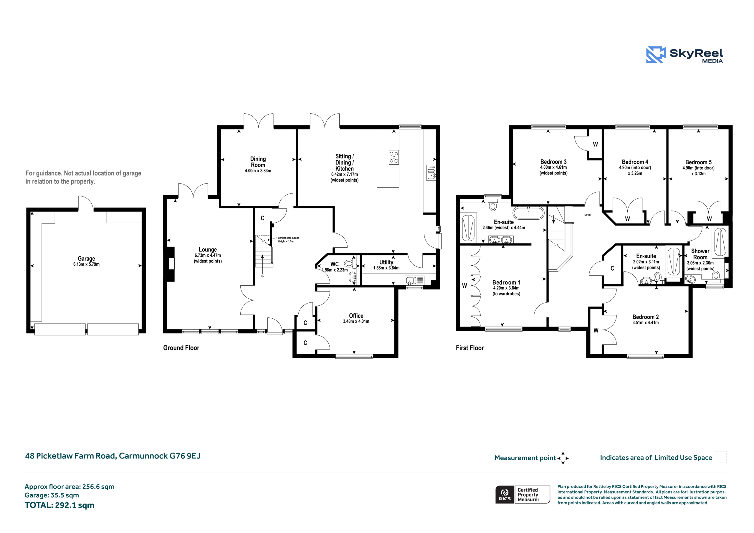
3 Receptions
5 Beds
4 Baths

Set within beautifully landscaped gardens and enjoying a peaceful setting, this exceptional five-bedroom detached villa offers luxurious family living with an abundance of space, style, and modern convenience. From the moment you arrive, the property impresses with its large monobloc driveway and striking kerb appeal, leading to a detached double garage and framed by stunning gardens.

The interior begins with a welcoming tiled entrance hallway that sets the tone for the elegance and quality found throughout the home. To the front, a spacious lounge features a feature fireplace, creating a warm and inviting focal point for the family to gather. Adjoining the lounge is a formal dining room, enhanced by French doors that open directly onto the garden, making it perfect for entertaining both indoors and out. At the very heart of the home lies the magnificent open-plan kitchen, dining and family area. Designed for modern living, this breathtaking space features a large breakfasting island and enjoys an abundance of natural light, creating a seamless connection between the house and the gardens. Completing the ground floor is a practical utility room, a stylish WC, and a dedicated home office, while underfloor heating in certain areas of the home provides a further touch of luxury.

A sweeping staircase leads to the first floor where a large upper landing, beautifully enhanced by a distinctive boathole window, provides a sense of space and grandeur. The principal bedroom is a true retreat, complete with extensive fitted wardrobes and an en-suite that is absolutely stunning. This luxurious bathroom boasts a double vanity, a walk-in shower, and a separate bath, creating a spa-like haven. A second double bedroom also benefits from its own en-suite, while three further good sized bedrooms are served by a sleek and modern family shower room.

The gardens surrounding the home are as impressive as the interior. To the rear, the private garden is designed for both relaxation and entertaining, with two patio areas perfectly positioned to soak up the sun throughout the day. A large lawn and beautifully landscaped planting add to the sense of tranquillity and privacy, creating an idyllic outdoor retreat. To the front, the expansive monobloc driveway offers excellent off-street parking and is complemented by carefully landscaped borders, giving a perfect first impression of this remarkable home.

 

 

Alison Anderson

Associate Director

0141 639 1999

alison.anderson@rettie.co.uk

General Remarks & Information

Fixtures and Fittings:

Only appliances specifically mentioned in the sales particulars are included in the sale price. In all other aspects the treatment of fixtures and fittings within the relevant Conveyancing Standard Clauses apply.

Services:

Gas heating, mains water, electricity, broadband, telephone (subject to telephone providers’ regulations).

Viewing:

By appointment through Rettie Newton Mearns. 116 Ayr Road, Newton Mearns, Glasgow, G77 6EG. Email: newtonmearns@rettie.co.uk Tel: 01416391999

Offers:

Offers should be submitted in Scottish Legal Form to the selling agents Rettie & Co. A closing date by which offers must be submitted may be fixed later. Please note that interested parties are advised to register their interest with the selling agents in order that they may be advised should a closing date be set. The seller reserves the right to accept any offer at any time.

Council Tax Band:

G

EPC Rating:

B

Postcode:

G76 9EJ

Tenure:

Freehold

This property and other properties offered by Rettie & Co. & Rettie LLP's. can be viewed on our website at www.rettie.co.uk as well as Rightmove, OnTheMarket and The London Office.

The property is sold subject to and with the benefit of all servitude rights, burdens, reservations and wayleaves including rights of access and rights of way, whether public or private, light, support, drainage, water and wayleaves for masts, pylons, stays, cable, drains and water, gas and other pipes whether contained in the title deeds or informally constituted and whether or not referred to above.

Rettie, their clients and any joint agents give notice that:

  1. They are not authorised to make or give any representations or warranties in relation to the property either in writing or by word of mouth. Any information given is entirely without responsibility on the part of the agents or the sellers. These particulars do not form part of any offer or contract and must not be relied upon as statements or representations of fact.
  2. All Rettie floorplans are drawn to RICS standard. The text, photographs and plans are for guidance only and are not necessarily comprehensive and it should not be assumed that the property remains as photographed. Any error, omission or mis-statement shall not annul the sale or entitle any party to compensation or recourse to action at law. It should not be assumed that the property has all necessary planning, building regulation or other consents, including for its current use. Rettie & Co. & Rettie LLP’s have not tested any services, equipment or facilities. Purchasers must satisfy themselves by inspection or otherwise and ought to seek their own professional advice.
  3. All descriptions or references to condition are given in good faith only. Whilst every endeavour is made to ensure accuracy, please check with us on any points of especial importance to you, especially if intending to travel some distance. No responsibility can be accepted for expenses incurred in inspecting properties which have been sold or withdrawn.
Under the HMRC Anti Money Laundering legislation all offers to purchase a property on a cash basis or subject to mortgage require evidence of source of funds. This may include evidence of bank statements/funding source, mortgage or confirmation from a solicitor the purchaser has the funds to conclude the transaction.

All individuals involved in the transaction are required to produce proof of identity and proof of address. Rettie use electronic verification, if this is not possible original documents are acceptable.
  1. The property is sold with all faults and defects, whether of condition or otherwise and neither the seller nor Rettie & Co. or Rettie LLP’s, the selling agent, are responsible for such faults and defects, nor for any statement contained in the particulars of the property prepared by the said agent.
  2. The Purchaser(s) shall be deemed to acknowledge that they have not entered into contract in reliance on the said statements, that they are satisfied themselves as to the content of each of the said statements by inspection or otherwise and that no warranty or representation has been made by the seller or the said agents in relation to or in connection with the property.
  3. Any error, omission or misstatement in any of the said statements shall not entitle the purchaser(s) to rescind or to be discharged from this contract, nor entitle either party to compensation or damages nor in any circumstances to give either party any cause for action.

Location

Nestled on the southern edge of Glasgow, Carmunnock is a charming conservation village that blends countryside tranquility with city convenience. Known for its historic character, tree-lined streets, and traditional stone cottages, Carmunnock offers a unique village atmosphere just a short drive from Glasgow’s city centre.

The village boasts a strong sense of community, a highly regarded primary school, and local amenities including a popular café, traditional pub, and independent shops. Surrounded by rolling farmland and greenbelt, it’s ideal for those who enjoy walking, cycling, or simply escaping the urban hustle.

Carmunnock also benefits from excellent transport connections, with easy access to the M77, M74, and M8 motorways — making it ideal for commuters travelling across Glasgow and the central belt.

With its rich heritage, welcoming feel, and picturesque setting, Carmunnock is a highly sought-after location for families, professionals, and those looking to enjoy the best of both country and city living.

Contact us

    Alison Anderson

    Associate Director

    0141 639 1999

    alison.anderson@rettie.co.uk