15 Fernleigh Road

Newlands, Glasgow, G43 2UD

Alice Beedham

Negotiator

0141 406 4999

alice.beedham@rettie.co.uk

Newlands, Glasgow, G43 2UD

1 Receptions
3 Beds
2 Baths

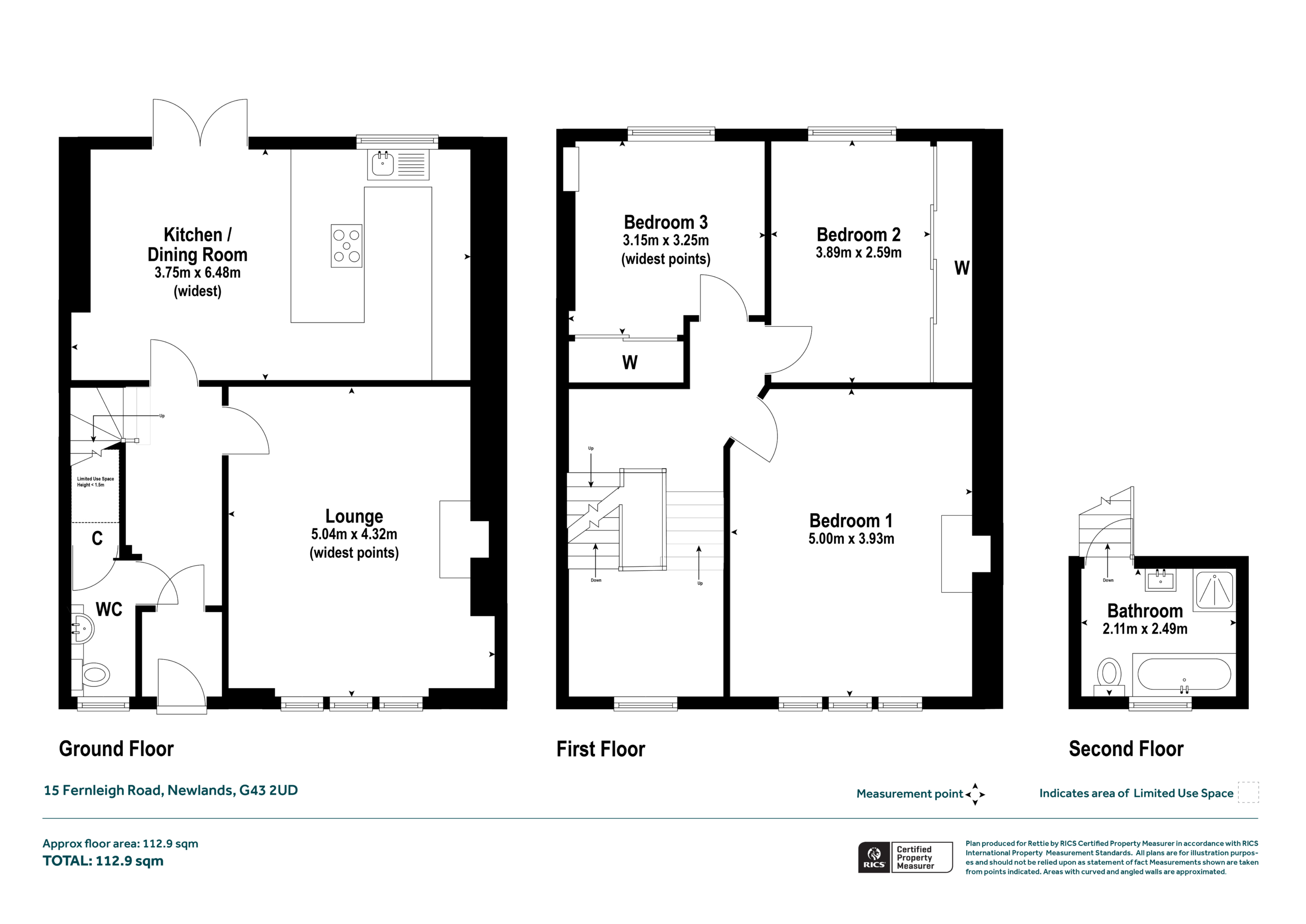
Fernleigh Road is set within an admired and popular location; this mid terraced, 3 bedroom Villa, is of a style rarely available on the market. It offers spacious accommodation with the home being upgraded to an exacting standard throughout.  The home is tastefully decorated with modern neutral décor, with the highlight being a fantastic, bespoke kitchen complete with breakfast bar and patio doors on to garden.

Internally, the property extends to; entrance vestibule, broad hallway with WC off, a staircase sweeping to upper level.

 

Off Hallway, the formal sitting room is a bright, generous room with beautiful feature fireplace, complete with a three window formation ensuring a good degree of natural light. The dining room and kitchen are to the rear and benefits from an open plan formation, complete with breakfast bar and patio doors to the rear level garden.  The bespoke kitchen has a wonderful range of floor and wall mounted units, integrated appliances, bespoke shelving, feature lighting and Corian worksurfaces. 

On to first floor, there is a bright half landing which could be utilised as a study area.  The first floor hosts three generous bedrooms (two of which are particularly large doubles complete with built in storage). A further short staircase leads to the well appointed family and a modern 4 piece bathroom, complete with separate bath, shower and vanity unit.

The property has a system of gas fired central heating,  double glazed windows/doors and is finished with fresh modern tones throughout. The garden grounds have been thoughtfully landscaped, being fully enclosed to the rear, with a patio area,  which is ideal with al fresco dining.  The home also benefits from generous driveway for parking.

 

Local Area
The property is positioned within walking distance of shops and amenities upon both Clarkston Road and Fenwick Road where thriving coffee shops, restaurants and delicatessens can be found. More extensive amenities are available the Sainsburys Local at Muirend, the Morrisons store at Giffnock or Newlands and The Avenue shopping mall in Newton Mearns. The shopping mall at Silverburn is a short drive to the West.

Recreational pursuits are varied namely at Newlands Park (Dandelion Café), Queens Park and Pollok Country Park where Pollok House and the world famous Burrell collection can be found, also Bellahouston Ski and Sports centre.


Schooling is available locally at primary and secondary levels. There are also a number of pick up points within G43 for Glasgow's other leading independent schools.

Frequent public transport services provide rapid commuter access to the city centre. The M77 Connects the South side of Glasgow to Scotland's motorway network, Glasgow International airport and beyond.

 

 

Alice Beedham

Negotiator

0141 406 4999

alice.beedham@rettie.co.uk

General Remarks & Information

Fixtures and Fittings:

Only appliances specifically mentioned in the sales particulars are included in the sale price. In all other aspects the treatment of fixtures and fittings within the relevant Conveyancing Standard Clauses apply.

Services:

Gas heating, mains water, electricity, broadband, telephone (subject to telephone providers’ regulations).

Viewing:

By appointment through Rettie Shawlands. 196 Kilmarnock Road, Shawlands, Glasgow, G41 3PG. Email: shawlands@rettie.co.uk Tel: 0141 406 4999

Offers:

Offers should be submitted in Scottish Legal Form to the selling agents Rettie & Co. A closing date by which offers must be submitted may be fixed later. Please note that interested parties are advised to register their interest with the selling agents in order that they may be advised should a closing date be set. The seller reserves the right to accept any offer at any time.

Postcode:

G43 2UD

Tenure:

Not Specified

This property and other properties offered by Rettie & Co. & Rettie LLP's. can be viewed on our website at www.rettie.co.uk as well as Rightmove, OnTheMarket and The London Office.

The property is sold subject to and with the benefit of all servitude rights, burdens, reservations and wayleaves including rights of access and rights of way, whether public or private, light, support, drainage, water and wayleaves for masts, pylons, stays, cable, drains and water, gas and other pipes whether contained in the title deeds or informally constituted and whether or not referred to above.

Rettie, their clients and any joint agents give notice that:

  1. They are not authorised to make or give any representations or warranties in relation to the property either in writing or by word of mouth. Any information given is entirely without responsibility on the part of the agents or the sellers. These particulars do not form part of any offer or contract and must not be relied upon as statements or representations of fact.
  2. All Rettie floorplans are drawn to RICS standard. The text, photographs and plans are for guidance only and are not necessarily comprehensive and it should not be assumed that the property remains as photographed. Any error, omission or mis-statement shall not annul the sale or entitle any party to compensation or recourse to action at law. It should not be assumed that the property has all necessary planning, building regulation or other consents, including for its current use. Rettie & Co. & Rettie LLP’s have not tested any services, equipment or facilities. Purchasers must satisfy themselves by inspection or otherwise and ought to seek their own professional advice.
  3. All descriptions or references to condition are given in good faith only. Whilst every endeavour is made to ensure accuracy, please check with us on any points of especial importance to you, especially if intending to travel some distance. No responsibility can be accepted for expenses incurred in inspecting properties which have been sold or withdrawn.
Under the HMRC Anti Money Laundering legislation all offers to purchase a property on a cash basis or subject to mortgage require evidence of source of funds. This may include evidence of bank statements/funding source, mortgage or confirmation from a solicitor the purchaser has the funds to conclude the transaction.

All individuals involved in the transaction are required to produce proof of identity and proof of address. Rettie use electronic verification, if this is not possible original documents are acceptable.
  1. The property is sold with all faults and defects, whether of condition or otherwise and neither the seller nor Rettie & Co. or Rettie LLP’s, the selling agent, are responsible for such faults and defects, nor for any statement contained in the particulars of the property prepared by the said agent.
  2. The Purchaser(s) shall be deemed to acknowledge that they have not entered into contract in reliance on the said statements, that they are satisfied themselves as to the content of each of the said statements by inspection or otherwise and that no warranty or representation has been made by the seller or the said agents in relation to or in connection with the property.
  3. Any error, omission or misstatement in any of the said statements shall not entitle the purchaser(s) to rescind or to be discharged from this contract, nor entitle either party to compensation or damages nor in any circumstances to give either party any cause for action.

Location

Contact us

    Alice Beedham

    Negotiator

    0141 406 4999

    alice.beedham@rettie.co.uk