139 Monreith Road East

Glasgow, G44 3DF

Grace Sloan

Branch Manager

0141 406 4999

shawlands@rettie.co.uk

Glasgow, G44 3DF

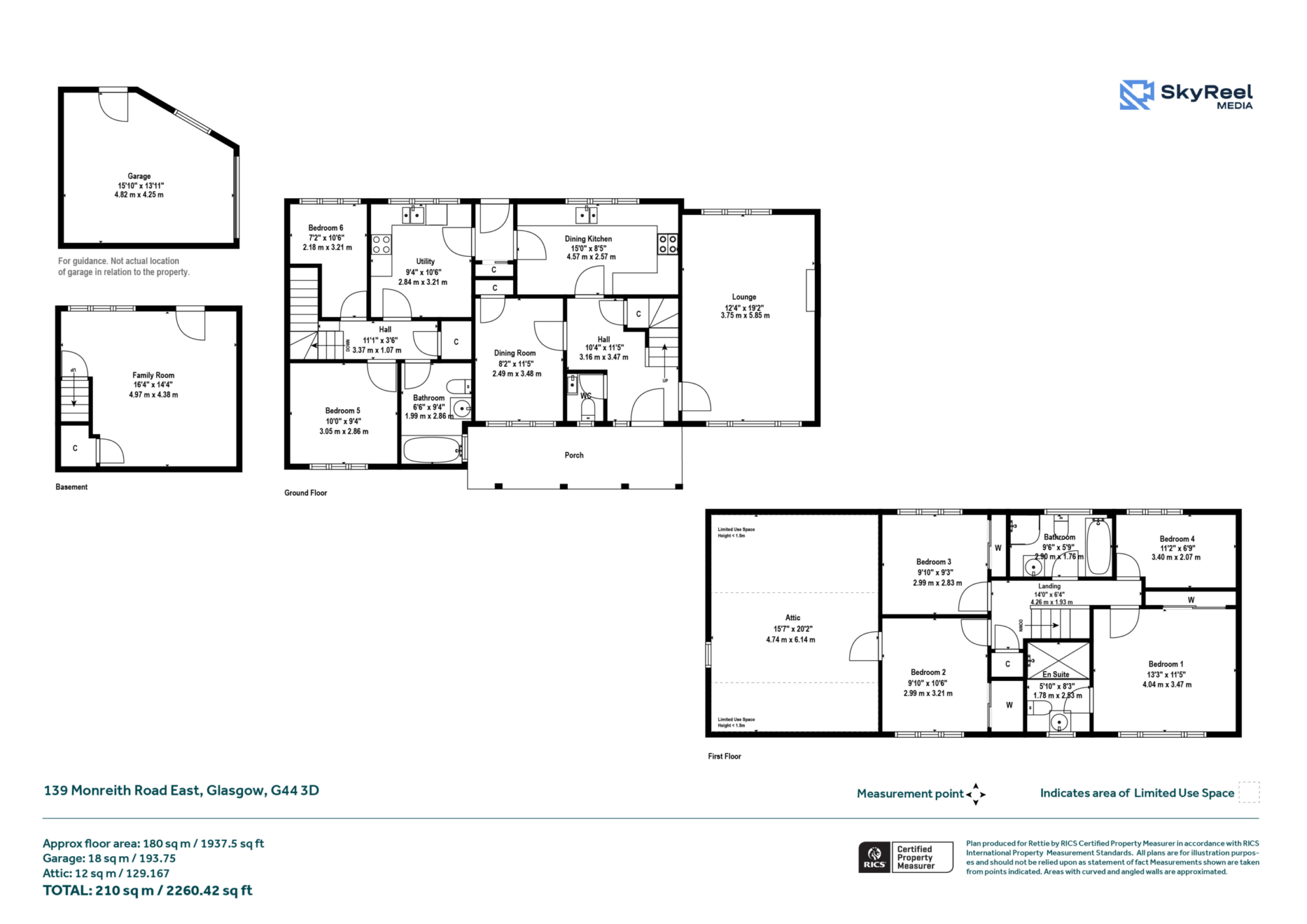
6 Beds

A fabulous one-of-a-kind detached home situated in this quiet yet convenient pocket.

On the open market for the first time, this entirely unique detached family home sits on a substantial plot and is a must for viewing in order to be appreciated.

The house is approached via sweeping driveway, surrounded by mature gardens, leading to the front steps and door.

The accommodation of the house itself comprises welcoming reception hallway with an understairs cupboard and W.C. with two piece suite, stunning lounge with feature fireplace and dual aspect to both the front and rear, dining room, kitchen with a range of base and wall mounted units and ample space for dining table and chairs and access out to the rear garden.

From the kitchen there is access through to the utility room, two more bedrooms, both of which can be utilised very flexibly and tiled bathroom with three piece suite. There is access here down to the lower level where there is a useful family room with access out to the rear garden.

The first floor accommodation comprises bedroom one with en-suite shower room off with two piece suite and separate walk-in shower, two more double sized bedrooms, both with integrated wardrobes, family bathroom with three piece suite and separate walk-in shower and fourth bedroom that could easily be utilised as a home office or study.

The property also benefits from triple glazing, gas central heating, sizeable attic space offering great additional storage, high quality floor coverings and a modern, stylish decor throughout.

Externally there is the aforementioned sweeping driveway, along with extensive mature garden grounds to the front, side and rear with separate lawns and patio. There is also a detached garage.

Cathcart remains one of Glasgow’s most desirable Southside districts, popular with families due to the quality of local schooling and excellent transport connections. Cathcart train station is within easy reach, providing swift access to Glasgow City Centre. The vibrant amenities of Shawlands, Battlefield and Strathbungo are all close at hand.

Grace Sloan

Branch Manager

0141 406 4999

shawlands@rettie.co.uk

General Remarks & Information

Fixtures and Fittings:

Only appliances specifically mentioned in the sales particulars are included in the sale price. In all other aspects the treatment of fixtures and fittings within the relevant Conveyancing Standard Clauses apply.

Services:

Gas heating, mains water, electricity, broadband, telephone (subject to telephone providers’ regulations).

Viewing:

By appointment through Rettie Shawlands. 196 Kilmarnock Road, Shawlands, Glasgow, G41 3PG. Email: shawlands@rettie.co.uk Tel: 0141 406 4999

Offers:

Offers should be submitted in Scottish Legal Form to the selling agents Rettie & Co. A closing date by which offers must be submitted may be fixed later. Please note that interested parties are advised to register their interest with the selling agents in order that they may be advised should a closing date be set. The seller reserves the right to accept any offer at any time.

Postcode:

G44 3DF

This property and other properties offered by Rettie & Co. & Rettie LLP's. can be viewed on our website at www.rettie.co.uk as well as Rightmove, OnTheMarket and The London Office.

The property is sold subject to and with the benefit of all servitude rights, burdens, reservations and wayleaves including rights of access and rights of way, whether public or private, light, support, drainage, water and wayleaves for masts, pylons, stays, cable, drains and water, gas and other pipes whether contained in the title deeds or informally constituted and whether or not referred to above.

Rettie, their clients and any joint agents give notice that:

  1. They are not authorised to make or give any representations or warranties in relation to the property either in writing or by word of mouth. Any information given is entirely without responsibility on the part of the agents or the sellers. These particulars do not form part of any offer or contract and must not be relied upon as statements or representations of fact.
  2. All Rettie floorplans are drawn to RICS standard. The text, photographs and plans are for guidance only and are not necessarily comprehensive and it should not be assumed that the property remains as photographed. Any error, omission or mis-statement shall not annul the sale or entitle any party to compensation or recourse to action at law. It should not be assumed that the property has all necessary planning, building regulation or other consents, including for its current use. Rettie & Co. & Rettie LLP’s have not tested any services, equipment or facilities. Purchasers must satisfy themselves by inspection or otherwise and ought to seek their own professional advice.
  3. All descriptions or references to condition are given in good faith only. Whilst every endeavour is made to ensure accuracy, please check with us on any points of especial importance to you, especially if intending to travel some distance. No responsibility can be accepted for expenses incurred in inspecting properties which have been sold or withdrawn.
Under the HMRC Anti Money Laundering legislation all offers to purchase a property on a cash basis or subject to mortgage require evidence of source of funds. This may include evidence of bank statements/funding source, mortgage or confirmation from a solicitor the purchaser has the funds to conclude the transaction.

All individuals involved in the transaction are required to produce proof of identity and proof of address. Rettie use electronic verification, if this is not possible original documents are acceptable.
  1. The property is sold with all faults and defects, whether of condition or otherwise and neither the seller nor Rettie & Co. or Rettie LLP’s, the selling agent, are responsible for such faults and defects, nor for any statement contained in the particulars of the property prepared by the said agent.
  2. The Purchaser(s) shall be deemed to acknowledge that they have not entered into contract in reliance on the said statements, that they are satisfied themselves as to the content of each of the said statements by inspection or otherwise and that no warranty or representation has been made by the seller or the said agents in relation to or in connection with the property.
  3. Any error, omission or misstatement in any of the said statements shall not entitle the purchaser(s) to rescind or to be discharged from this contract, nor entitle either party to compensation or damages nor in any circumstances to give either party any cause for action.

Location

Contact us

    Grace Sloan

    Branch Manager

    0141 406 4999

    shawlands@rettie.co.uk