Plot 2, Milton Muir

Anstruther, KY10 3JD

Anstruther, KY10 3JD

4 Beds

Nestled in the beautiful, highly-sought after East Neuk of Fife, between the picturesque fishing villages of Anstruther and Pittenweem, Milton Muir is an exclusive development offering spectacular countryside views. On entering through the front entrance, set within a stone wall built from the original steading of Milton Muir, Phase Three presents a desirable opportunity to secure a thoughtfully crafted property by the renowned Manse Homes. As is expected from Manse Homes, they have tastefully replicated those original Scottish details of narrow windows, hayloft dormers, curved headed openings to the stables, natural stone facades with clay, coloured pantiles and natural slate covering roofs.

All properties at Milton Muir have been meticulously crafted and benefit from an impressive bespoke kitchen, complete with polished stone worktops, golf-effect hardware and high specification NEFF appliances which include an induction hob, oven and grill. The properties further benefit from high specification bath and shower rooms, fitted wardrobes, double glazing, air source heating and an efficient combination of underfloor and radiator heating. Each benefits from two designated parking spaces and a garage, and has also been wired to allow for a car charging point.

With scenic coastal paths, historic harbours and quaint villages nearby, Milton Muir is a perfect spot for those seeking a relaxing yet vibrant setting.

*CGIs are used for illustration purposes only

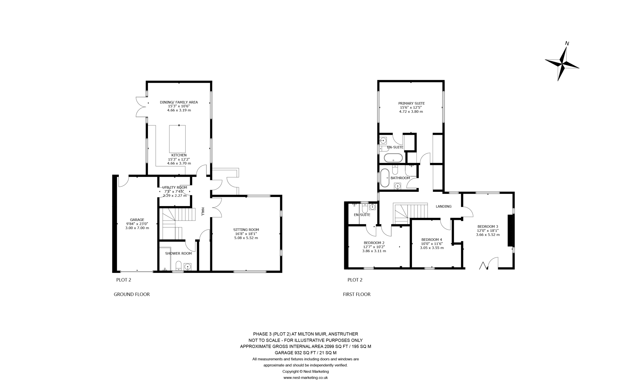
Summary of Accommodation

GROUND FLOOR / FIRST FLOOR
This beautifully designed home combines modern luxury and countryside charm with curve headed windows and garage door formed from original stone work from the original steading buildings at Milton Muir. Upon entering the property, residents are greeted by an inviting sitting room, served by a number of large windows ensuring an abundance of natural light. The kitchen sits within an open-plan space which combines a dining and family area, seamlessly leading to the garden through French doors. The ground floor is completed with a practical utility room, adding functionality to the space, alongside a useful shower room.

Upstairs enjoys stunning, panoramic south-facing views across the Firth of Forth, stretching towards Bass Rock, North Berwick, and beyond. The layout has been thoughtfully designed with family living in mind, offering four spacious bedrooms.

The principal bedroom is a private oasis, boasting an ensuite bathroom for ultimate comfort. Bedroom two also features its own ensuite, with elegant finishes, the perfect space for older children or guests. The additional bedrooms are versatile and may conveniently double as a home office or guest space.

EXTERIOR
Residents can enjoy a private garden with stunning views, perfect for entertaining and everyday family living. All four bedroom homes boast two designated parking spaces, along with an integral garage.

General Remarks & Information

Fixtures and Fittings:

Only appliances specifically mentioned in the sales particulars are included in the sale price. In all other aspects the treatment of fixtures and fittings within the relevant Conveyancing Standard Clauses apply.

Services:

Gas heating, mains water, electricity, broadband, telephone (subject to telephone providers’ regulations).

Viewing:

By appointment through Rettie St Andrews. 28 Bell Street, St Andrews, KY16 9UX. Email: standrews@rettie.co.uk Tel: 01334 237 700

Offers:

Offers should be submitted in Scottish Legal Form to the selling agents Rettie & Co. A closing date by which offers must be submitted may be fixed later. Please note that interested parties are advised to register their interest with the selling agents in order that they may be advised should a closing date be set. The seller reserves the right to accept any offer at any time.

Postcode:

KY10 3JD

This property and other properties offered by Rettie & Co. & Rettie LLP's. can be viewed on our website at www.rettie.co.uk as well as Rightmove, OnTheMarket and The London Office.

The property is sold subject to and with the benefit of all servitude rights, burdens, reservations and wayleaves including rights of access and rights of way, whether public or private, light, support, drainage, water and wayleaves for masts, pylons, stays, cable, drains and water, gas and other pipes whether contained in the title deeds or informally constituted and whether or not referred to above.

Rettie, their clients and any joint agents give notice that:

  1. They are not authorised to make or give any representations or warranties in relation to the property either in writing or by word of mouth. Any information given is entirely without responsibility on the part of the agents or the sellers. These particulars do not form part of any offer or contract and must not be relied upon as statements or representations of fact.
  2. All Rettie floorplans are drawn to RICS standard. The text, photographs and plans are for guidance only and are not necessarily comprehensive and it should not be assumed that the property remains as photographed. Any error, omission or mis-statement shall not annul the sale or entitle any party to compensation or recourse to action at law. It should not be assumed that the property has all necessary planning, building regulation or other consents, including for its current use. Rettie & Co. & Rettie LLP’s have not tested any services, equipment or facilities. Purchasers must satisfy themselves by inspection or otherwise and ought to seek their own professional advice.
  3. All descriptions or references to condition are given in good faith only. Whilst every endeavour is made to ensure accuracy, please check with us on any points of especial importance to you, especially if intending to travel some distance. No responsibility can be accepted for expenses incurred in inspecting properties which have been sold or withdrawn.
Under the HMRC Anti Money Laundering legislation all offers to purchase a property on a cash basis or subject to mortgage require evidence of source of funds. This may include evidence of bank statements/funding source, mortgage or confirmation from a solicitor the purchaser has the funds to conclude the transaction.

All individuals involved in the transaction are required to produce proof of identity and proof of address. Rettie use electronic verification, if this is not possible original documents are acceptable.
  1. The property is sold with all faults and defects, whether of condition or otherwise and neither the seller nor Rettie & Co. or Rettie LLP’s, the selling agent, are responsible for such faults and defects, nor for any statement contained in the particulars of the property prepared by the said agent.
  2. The Purchaser(s) shall be deemed to acknowledge that they have not entered into contract in reliance on the said statements, that they are satisfied themselves as to the content of each of the said statements by inspection or otherwise and that no warranty or representation has been made by the seller or the said agents in relation to or in connection with the property.
  3. Any error, omission or misstatement in any of the said statements shall not entitle the purchaser(s) to rescind or to be discharged from this contract, nor entitle either party to compensation or damages nor in any circumstances to give either party any cause for action.

Location

Known for their idyllic harbours and friendly, small-town atmosphere, the conservation villages of Anstruther and Pittenweem sit alongside a chain of historic coastal gems that line the northern shore and Firth of Forth - Crail, Cellardyke, St Monans and Elie. This spectacular coastline offers views across to North Berwick, Bass Rock, and the Isle of May, all connected by the scenic Fife Coastal Path. Rich in culture, the Pittenweem Arts Festival is popular with visitors and locals alike, and the surrounding towns offer an abundance of opportunities for walking and cycling routes for outdoor enthusiasts.

Just a short drive from St Andrews, the Home of Golf, residents of Milton Muir benefit from easy access to world-famous golf courses in St Andrews and array of dune based golf courses around the Fife Coast, local artisanal shops and renowned restaurants. This proximity means that residents can experience the best of both worlds; the tranquillity of coastal living and the conveniences of a larger town nearby.

Cupar, Fife’s historic market town can be found approximately 18 miles to the north-west, Dundee is within a 45 minute drive to the north and Edinburgh is about an hour and 20 minutes to the south. With scenic coastal paths, historic harbours and quaint villages nearby, Milton Muir is a perfect spot for those seeking a relaxing yet vibrant setting, whilst being well connected to larger towns and cities.

Contact us