The Coach House, 53 Argyle Street

St. Andrews, Fife, KY16 9BX

St. Andrews, Fife, KY16 9BX

2 Receptions
5 Beds
3 Baths

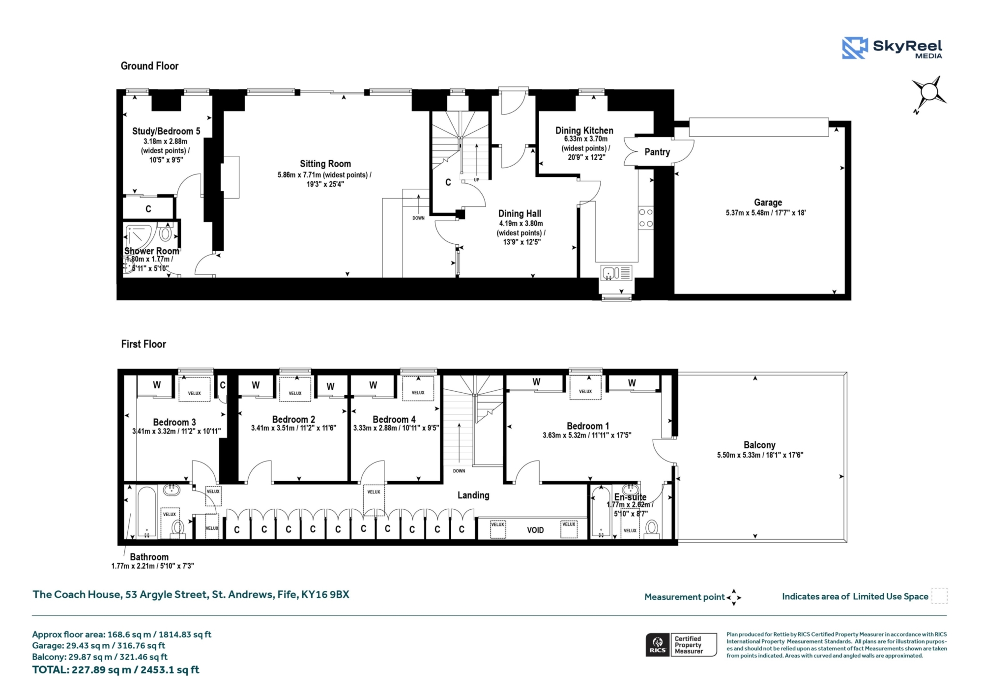
The Coach House, 53 Argyle Street, is a unique four/five-bedroom detached south facing converted coach house, offering generous and versatile accommodation in the very heart of historic St Andrews. Tucked away from street view and approached via a private drive, the property enjoys a rare sense of privacy while being just moments from the town centre.

On the ground floor, a welcoming entrance porch leads into a striking reception hall with a dining area, bathed in natural light and featuring a beautiful wooden staircase. The spacious sitting room, with its exposed stone wall, gas or coal fireplace and sliding doors opens onto a well established south facing front garden, offering a warm and inviting space, ideal for both family living and entertaining.   Adjacent to the sitting room is a bright study providing a quiet retreat ideal for home working or a potential fifth bedroom, alongside a convenient shower room. 

The generously sized dining kitchen is fitted with a ceramic hob, integrated oven, and ample storage, providing a practical and sociable space for everyday living. A useful walk through from the kitchen gives direct access to the double garage, which adds further convenience. Upstairs, a light-filled landing with generous built-in storage leads to the impressive principal bedroom, which features fitted wardrobes, an en-suite bathroom, and access to a large private balcony. Three further spacious double bedrooms, all with built-in storage, are served by a well-appointed family bathroom with tiled walls and a heated towel rail.

In addition, The Coach House enjoys a gravelled rear garden offering ample space for outdoor dining and relaxation, as well as a garden shed providing useful additional storage.

Summary of Accommodation

• Entrance porch
• Spacious reception hall with dining area and wooden staircase
• Sitting room with exposed stone wall, fireplace and sliding doors to a well established south facing front garden with fruit trees
• Study / optional fifth bedroom
• Shower room
• Dining kitchen with ceramic hob and integrated oven
• Access to double garage from kitchen
• Bedroom one with en-suite bathroom, built-in storage and balcony
• Three further double bedrooms with built-in storage
• Family bathroom with tiled walls and heated towel rail
• Ample storage throughout
• Gravelled rear garden with shed

General Remarks & Information

Fixtures and Fittings:

Only appliances specifically mentioned in the sales particulars are included in the sale price. In all other aspects the treatment of fixtures and fittings within the relevant Conveyancing Standard Clauses apply.
All white goods to be included.

Services:

Mains gas, electric, water, broadband, telephone (subject to telephone providers’ regulations).

Viewing:

By appointment through Rettie St Andrews. 28 Bell Street, St Andrews, KY16 9UX. Email: standrews@rettie.co.uk Tel: 01334 237 700

Offers:

Offers should be submitted in Scottish Legal Form to the selling agents Rettie & Co. A closing date by which offers must be submitted may be fixed later. Please note that interested parties are advised to register their interest with the selling agents in order that they may be advised should a closing date be set. The seller reserves the right to accept any offer at any time.

Council Tax Band:

G

EPC Rating:

E

Postcode:

KY16 9BX

Tenure:

Freehold

Particulars Prepared:

27th August

This property and other properties offered by Rettie & Co. & Rettie LLP's. can be viewed on our website at www.rettie.co.uk as well as Rightmove, OnTheMarket and The London Office.

The property is sold subject to and with the benefit of all servitude rights, burdens, reservations and wayleaves including rights of access and rights of way, whether public or private, light, support, drainage, water and wayleaves for masts, pylons, stays, cable, drains and water, gas and other pipes whether contained in the title deeds or informally constituted and whether or not referred to above.

Rettie, their clients and any joint agents give notice that:

  1. They are not authorised to make or give any representations or warranties in relation to the property either in writing or by word of mouth. Any information given is entirely without responsibility on the part of the agents or the sellers. These particulars do not form part of any offer or contract and must not be relied upon as statements or representations of fact.
  2. All Rettie floorplans are drawn to RICS standard. The text, photographs and plans are for guidance only and are not necessarily comprehensive and it should not be assumed that the property remains as photographed. Any error, omission or mis-statement shall not annul the sale or entitle any party to compensation or recourse to action at law. It should not be assumed that the property has all necessary planning, building regulation or other consents, including for its current use. Rettie & Co. & Rettie LLP’s have not tested any services, equipment or facilities. Purchasers must satisfy themselves by inspection or otherwise and ought to seek their own professional advice.
  3. All descriptions or references to condition are given in good faith only. Whilst every endeavour is made to ensure accuracy, please check with us on any points of especial importance to you, especially if intending to travel some distance. No responsibility can be accepted for expenses incurred in inspecting properties which have been sold or withdrawn.
Under the HMRC Anti Money Laundering legislation all offers to purchase a property on a cash basis or subject to mortgage require evidence of source of funds. This may include evidence of bank statements/funding source, mortgage or confirmation from a solicitor the purchaser has the funds to conclude the transaction.

All individuals involved in the transaction are required to produce proof of identity and proof of address. Rettie use electronic verification, if this is not possible original documents are acceptable.
  1. The property is sold with all faults and defects, whether of condition or otherwise and neither the seller nor Rettie & Co. or Rettie LLP’s, the selling agent, are responsible for such faults and defects, nor for any statement contained in the particulars of the property prepared by the said agent.
  2. The Purchaser(s) shall be deemed to acknowledge that they have not entered into contract in reliance on the said statements, that they are satisfied themselves as to the content of each of the said statements by inspection or otherwise and that no warranty or representation has been made by the seller or the said agents in relation to or in connection with the property.
  3. Any error, omission or misstatement in any of the said statements shall not entitle the purchaser(s) to rescind or to be discharged from this contract, nor entitle either party to compensation or damages nor in any circumstances to give either party any cause for action.

Location

The Coach House occupies a discreet position on Argyle Street, one of St Andrews most sought-after addresses. Hidden from direct street view yet ideally placed for easy access to all the towns amenities, the property combines privacy with convenience.

St Andrews is celebrated worldwide as the “Home of Golf,” offering seven exceptional courses including the iconic Old Course. The town is also internationally renowned for its prestigious university, Scotland’s oldest, and for its rich history, beautiful medieval architecture, and vibrant cultural scene. A wide range of boutique shops, independent cafés, restaurants, and galleries are found within a short walk, together with excellent leisure and recreational facilities.

For families, St Andrews provides access to highly regarded primary and secondary schooling, both state and private. The surrounding area offers wonderful opportunities for outdoor pursuits including coastal walks along the Fife Coastal Path, sailing, and beach activities on the award-winning West Sands.

Transport connections are excellent: the nearby railway station at Leuchars offers direct links to Edinburgh, Dundee, Aberdeen, and London, while Edinburgh International Airport is within easy reach, making St Andrews accessible for both national and international travel.

Contact us