2B Chapmans Place

Elie, Leven, KY9 1BT

Elie, Leven, KY9 1BT

1 Receptions
3 Beds
1 Baths

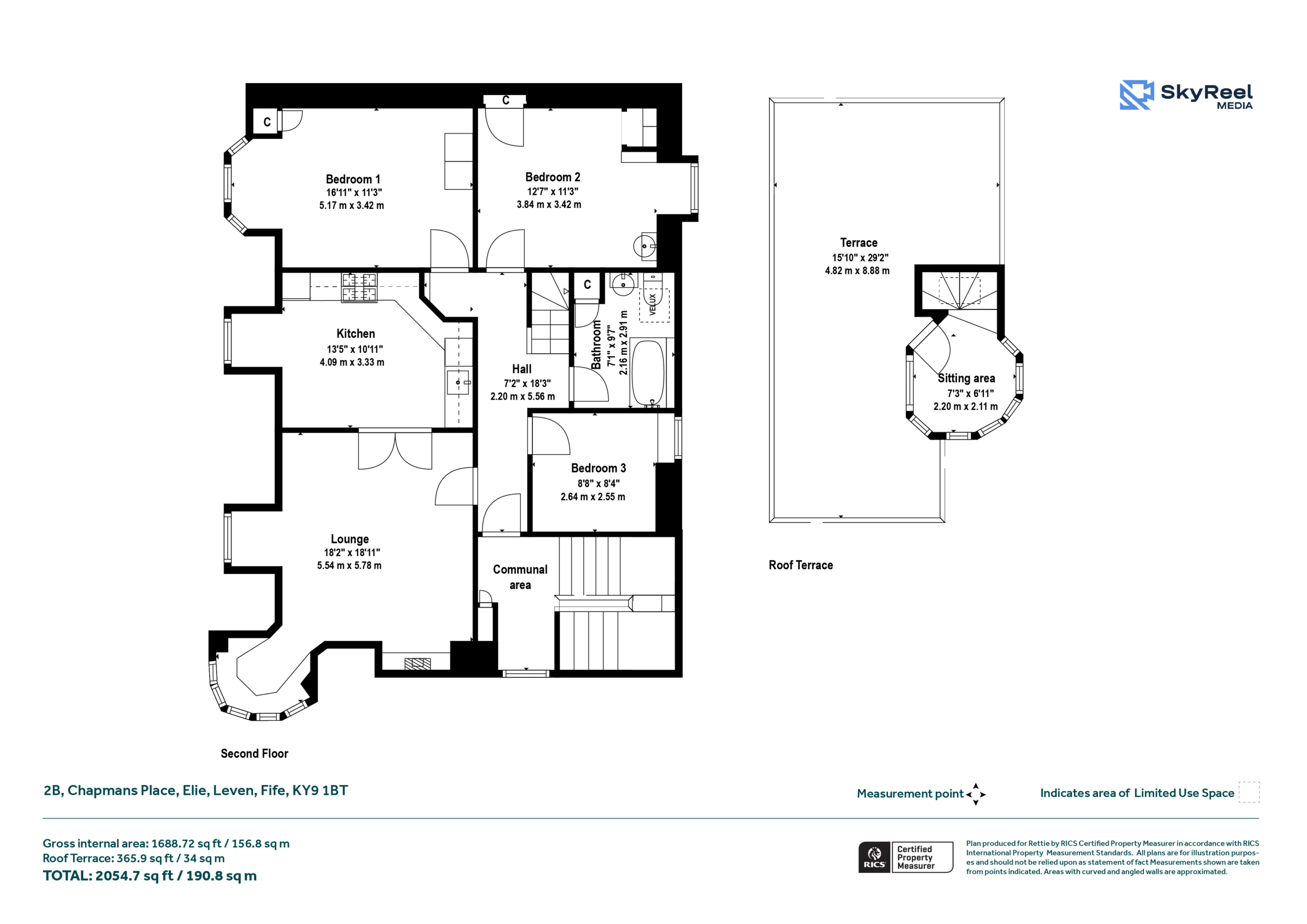
2B Chapmans Place is a wonderfully individual and generously proportioned top-floor apartment, set within an attractive period building in the heart of Elie. The property combines charming original features with contemporary touches and enjoys an exceptional sense of space, culminating in a spectacular private roof terrace with far‑reaching views across the village and coastline.

Accessed via an impressive communal staircase, the apartment opens into a broad and welcoming hallway with excellent circulation space. To the front sits a beautiful lounge, notable for its large windows, feature stove and a delightful turret seating area, an elevated vantage point with captivating views over the surrounding rooftops toward the sea.

French doors connect the lounge to a bright and modern dining kitchen, fitted with sleek cabinetry, integrated appliances and a four‑burner gas hob. This semi‑open layout creates a sociable flow between the two spaces, ideal for relaxed entertaining and family living.

The property offers three well‑proportioned double bedrooms, including a front-facing main bedroom with a charming bay window capturing coastal glimpses. A good-sized bathroom with white suite and natural light completes the main accommodation.

A real highlight of this home is the internal staircase rising from the hall to a further turret seating area on the upper level. From here, a door leads to the superb private roof terrace, a rare and truly impressive feature offering panoramic views over Elie, the beach, Earlsferry and the Firth of Forth. It provides a remarkable outdoor space for dining, relaxing and enjoying sunsets over the East Neuk.

Well-presented throughout and offering a layout rich in character, volume and natural light, this is an exceptional coastal property with a standout outdoor feature seldom available in the area.

Summary of Accommodation

• Top-floor apartment in attractive period building
• Spacious reception hall with upper-level access
• Large lounge with feature stove and turret seating area
• Modern fitted dining kitchen with French doors from lounge
• Three double bedrooms
• Bright bathroom with white suite
• Upper turret seating area with superb outlook
• Exceptional private roof terrace with panoramic coastal views
• Gas central heating
• Attractive communal staircase

General Remarks & Information

Fixtures and Fittings:

Only appliances specifically mentioned in the sales particulars are included in the sale price. In all other aspects the treatment of fixtures and fittings within the relevant Conveyancing Standard Clauses apply.

Services:

Gas heating, mains water, electricity, broadband, telephone (subject to telephone providers’ regulations).

Viewing:

By appointment through Rettie St Andrews. 28 Bell Street, St Andrews, KY16 9UX. Email: standrews@rettie.co.uk Tel: 01334 237 700

Offers:

Offers should be submitted in Scottish Legal Form to the selling agents Rettie & Co. A closing date by which offers must be submitted may be fixed later. Please note that interested parties are advised to register their interest with the selling agents in order that they may be advised should a closing date be set. The seller reserves the right to accept any offer at any time.237 700

Council Tax Band:

E

EPC Rating:

C

Postcode:

KY9 1BT

Tenure:

Freehold

Particulars Prepared:

6th March 2026

This property and other properties offered by Rettie & Co. & Rettie LLP's. can be viewed on our website at www.rettie.co.uk as well as Rightmove, OnTheMarket and The London Office.

The property is sold subject to and with the benefit of all servitude rights, burdens, reservations and wayleaves including rights of access and rights of way, whether public or private, light, support, drainage, water and wayleaves for masts, pylons, stays, cable, drains and water, gas and other pipes whether contained in the title deeds or informally constituted and whether or not referred to above.

Rettie, their clients and any joint agents give notice that:

  1. They are not authorised to make or give any representations or warranties in relation to the property either in writing or by word of mouth. Any information given is entirely without responsibility on the part of the agents or the sellers. These particulars do not form part of any offer or contract and must not be relied upon as statements or representations of fact.
  2. All Rettie floorplans are drawn to RICS standard. The text, photographs and plans are for guidance only and are not necessarily comprehensive and it should not be assumed that the property remains as photographed. Any error, omission or mis-statement shall not annul the sale or entitle any party to compensation or recourse to action at law. It should not be assumed that the property has all necessary planning, building regulation or other consents, including for its current use. Rettie & Co. & Rettie LLP’s have not tested any services, equipment or facilities. Purchasers must satisfy themselves by inspection or otherwise and ought to seek their own professional advice.
  3. All descriptions or references to condition are given in good faith only. Whilst every endeavour is made to ensure accuracy, please check with us on any points of especial importance to you, especially if intending to travel some distance. No responsibility can be accepted for expenses incurred in inspecting properties which have been sold or withdrawn.


Under the HMRC Anti Money Laundering legislation all offers to purchase a property on a cash basis or subject to mortgage require evidence of source of funds. This may include evidence of bank statements/funding source, mortgage or confirmation from a solicitor the purchaser has the funds to conclude the transaction.

All individuals involved in the transaction are required to produce proof of identity and proof of address. Rettie use electronic verification, if this is not possible original documents are acceptable.
  1. The property is sold with all faults and defects, whether of condition or otherwise and neither the seller nor Rettie & Co. or Rettie LLP’s, the selling agent, are responsible for such faults and defects, nor for any statement contained in the particulars of the property prepared by the said agent.
  2. The Purchaser(s) shall be deemed to acknowledge that they have not entered into contract in reliance on the said statements, that they are satisfied themselves as to the content of each of the said statements by inspection or otherwise and that no warranty or representation has been made by the seller or the said agents in relation to or in connection with the property.
  3. Any error, omission or misstatement in any of the said statements shall not entitle the purchaser(s) to rescind or to be discharged from this contract, nor entitle either party to compensation or damages nor in any circumstances to give either party any cause for action.


Location

Located at the heart of the highly desirable East Neuk village of Elie, 2B Chapmans Place enjoys immediate access to the area’s renowned coastal lifestyle. The property sits just moments from Elie’s beautiful sandy beaches, harbour and coastal path, while the village’s popular cafés, restaurants, local shops and water sports facilities are all within comfortable walking distance.

Elie is celebrated for its relaxed seaside charm and excellent outdoor pursuits, including sailing, paddleboarding, golf and scenic walking routes. Nearby Earlsferry offers further amenities, and the historic town of St Andrews, home to Scotland’s oldest university and world famous golf courses, lies approximately 13 miles to the north.

Regular bus services connect the village with St Andrews, Leven, Anstruther and beyond, with road links providing easy access to Edinburgh, Dundee and the wider Fife area. The opening of the Leven rail link further enhances connectivity for commuters and visitors alike.

Elie remains one of the East Neuk’s most sought after coastal communities, offering an exceptional quality of life and an enviable environment for both permanent and holiday living.

Contact us