Jasmine Cottage, Meadow Road

Barnyards, Kilconquhar, KY9 1PD

Barnyards, Kilconquhar, KY9 1PD

3 Beds

Jasmine Cottage is an exceptionally charming and beautifully presented period home set in the heart of the conservation village of Kilconquhar. Currently operating as a successful self‑catering holiday let, the property benefits from a Short‑Term Let Licence valid until 01/09/2027, offering a rare turnkey opportunity in an area of consistently high demand. Externally, the cottage enjoys private parking to the front, a delightful enclosed garden to the rear, and a timber summerhouse ideal for guests to enjoy the peaceful village setting.

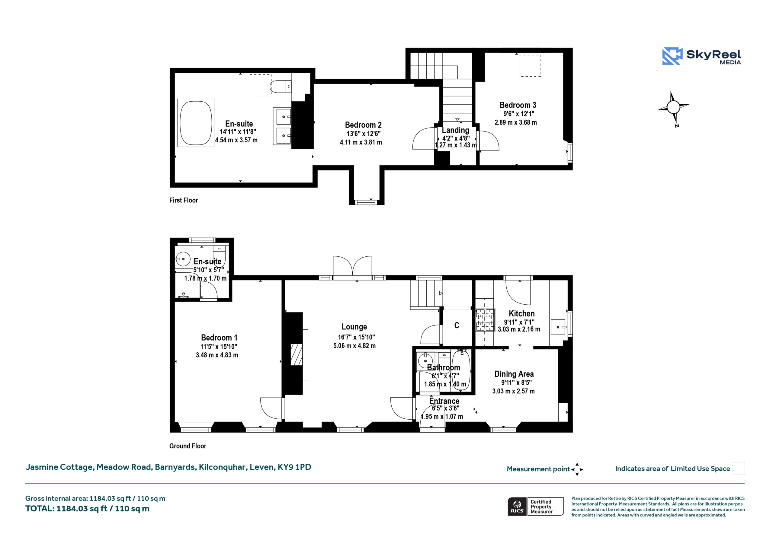
Inside, the cottage has been tastefully refurbished to a contemporary standard while remaining sympathetic to its traditional character. The welcoming dining area forms the heart of the home, flowing through an archway into a modern fitted kitchen with four‑burner gas stove, solid worktops, and rear door to the garden. The bright and comfortable lounge sits to the rear of the property and features a log‑burning stove, timber flooring, and French doors opening directly to the garden, creating a wonderful sense of light and space.

The ground floor further includes a generously sized double bedroom with stylish modern en‑suite shower room, alongside a separate family bathroom. A staircase rises from the lounge to the first floor, where the standout principal bedroom occupies a spacious footprint and features an impressive open‑plan en‑suite with standalone bath, double sink, and contemporary tiling. A further well‑proportioned double bedroom completes the upper level.

Outside, the enclosed garden is mainly laid to lawn with a sheltered patio perfect for outdoor dining, alongside a charming summerhouse offering flexible recreational use. The property also benefits from Listed Building Consent (Ref: 25/03166/LBC) for internal alterations.

Jasmine Cottage offers superbly appointed accommodation in a highly sought‑after East Neuk location, just a short drive from St Andrews and the Fife coast.

Summary of Accommodation

Ground Floor
• Entrance hallway
• Dining area
• Fitted kitchen
• Lounge with log burner and French doors to garden
• Bedroom 1 (double) with en suite shower room
• Family bathroom
First Floor
• Bedroom 2 (spacious double) with open plan luxury en suite
• Bedroom 3 (double)
Exterior
• Enclosed rear garden
• Patio area
• Summerhouse
• Private parking
Additional Information
• Listed Building Consent (Ref: 25/03166/LBC) for internal alterations
• Short‑Term Let Licence valid until 01/09/2027

General Remarks & Information

Fixtures and Fittings:

Only appliances specifically mentioned in the sales particulars are included in the sale price. In all other aspects the treatment of fixtures and fittings within the relevant Conveyancing Standard Clauses apply.

Services:

Gas heating, mains water, electricity, broadband, telephone (subject to telephone providers’ regulations).

Viewing:

By appointment through Rettie St Andrews. 28 Bell Street, St Andrews, KY16 9UX. Email: standrews@rettie.co.uk Tel: 01334 237 700

Offers:

Offers should be submitted in Scottish Legal Form to the selling agents Rettie & Co. A closing date by which offers must be submitted may be fixed later. Please note that interested parties are advised to register their interest with the selling agents in order that they may be advised should a closing date be set. The seller reserves the right to accept any offer at any time.

Postcode:

KY9 1PD

This property and other properties offered by Rettie & Co. & Rettie LLP's. can be viewed on our website at www.rettie.co.uk as well as Rightmove, OnTheMarket and The London Office.

The property is sold subject to and with the benefit of all servitude rights, burdens, reservations and wayleaves including rights of access and rights of way, whether public or private, light, support, drainage, water and wayleaves for masts, pylons, stays, cable, drains and water, gas and other pipes whether contained in the title deeds or informally constituted and whether or not referred to above.

Rettie, their clients and any joint agents give notice that:

  1. They are not authorised to make or give any representations or warranties in relation to the property either in writing or by word of mouth. Any information given is entirely without responsibility on the part of the agents or the sellers. These particulars do not form part of any offer or contract and must not be relied upon as statements or representations of fact.
  2. All Rettie floorplans are drawn to RICS standard. The text, photographs and plans are for guidance only and are not necessarily comprehensive and it should not be assumed that the property remains as photographed. Any error, omission or mis-statement shall not annul the sale or entitle any party to compensation or recourse to action at law. It should not be assumed that the property has all necessary planning, building regulation or other consents, including for its current use. Rettie & Co. & Rettie LLP’s have not tested any services, equipment or facilities. Purchasers must satisfy themselves by inspection or otherwise and ought to seek their own professional advice.
  3. All descriptions or references to condition are given in good faith only. Whilst every endeavour is made to ensure accuracy, please check with us on any points of especial importance to you, especially if intending to travel some distance. No responsibility can be accepted for expenses incurred in inspecting properties which have been sold or withdrawn.
Under the HMRC Anti Money Laundering legislation all offers to purchase a property on a cash basis or subject to mortgage require evidence of source of funds. This may include evidence of bank statements/funding source, mortgage or confirmation from a solicitor the purchaser has the funds to conclude the transaction.

All individuals involved in the transaction are required to produce proof of identity and proof of address. Rettie use electronic verification, if this is not possible original documents are acceptable.
  1. The property is sold with all faults and defects, whether of condition or otherwise and neither the seller nor Rettie & Co. or Rettie LLP’s, the selling agent, are responsible for such faults and defects, nor for any statement contained in the particulars of the property prepared by the said agent.
  2. The Purchaser(s) shall be deemed to acknowledge that they have not entered into contract in reliance on the said statements, that they are satisfied themselves as to the content of each of the said statements by inspection or otherwise and that no warranty or representation has been made by the seller or the said agents in relation to or in connection with the property.
  3. Any error, omission or misstatement in any of the said statements shall not entitle the purchaser(s) to rescind or to be discharged from this contract, nor entitle either party to compensation or damages nor in any circumstances to give either party any cause for action.

Location

Jasmine Cottage enjoys a wonderful position within the sought after conservation village of Kilconquhar, a pretty rural community centred around its historic church, charming traditional houses, and the scenic Kilconquhar Loch. The village offers immediate access to picturesque walking routes and a peaceful countryside setting, while remaining exceptionally well placed for exploring the East Neuk of Fife.

The nearby seaside towns of Elie, Pittenweem and Anstruther offer sandy beaches, coastal paths, cafés and restaurants, while the world renowned university town of St Andrews, with its celebrated golf courses, cultural attractions and boutique shopping; is within easy reach. Excellent road links provide convenient travel throughout Fife and to Edinburgh, Dundee and the wider central belt.

Kilconquhar is an ideal base for holidaymakers seeking tranquillity, outdoor pursuits, and proximity to Fife’s iconic coastline, making Jasmine Cottage a highly attractive and consistent holiday let destination.

Contact us