27 Spottiswoode Gardens

St. Andrews, Fife, KY16 8SA

St. Andrews, Fife, KY16 8SA

3 Receptions
4 Beds
1 Baths

Enjoying a superb, peaceful position within one of St Andrews’ most sought-after residential areas, 27 Spottiswoode Gardens is a rarely available four-bedroom detached villa set within a generous, mature plot. Owned by the same family for over half a century, the property now offers an exceptional opportunity for modernisation and reconfiguration, presenting huge potential for buyers seeking to create a bespoke family home in a prime setting.

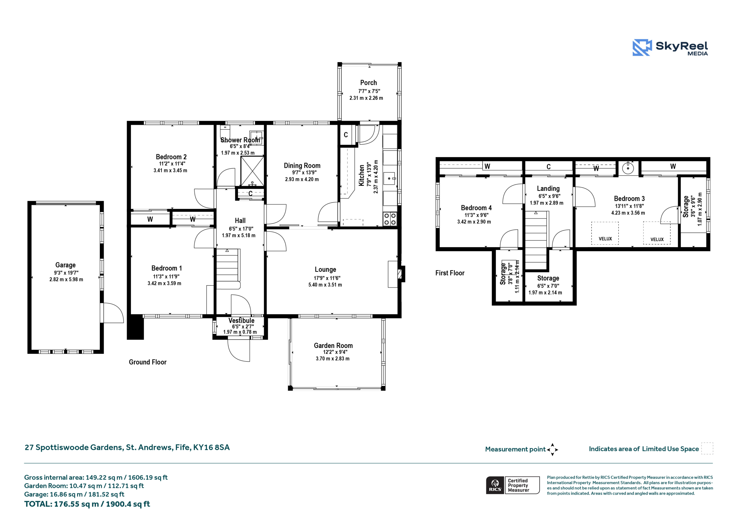
The house is approached via a long private driveway which leads to a detached single garage. Inside, the accommodation opens into a welcoming entrance vestibule and a particularly spacious reception hall, featuring an open-tread staircase and large windows that draw light into the heart of the home.

The main living accommodation sits to the rear, oriented to enjoy the outlook over the picturesque garden. The lounge is a generous, bright room with a central feature fireplace and sliding doors connecting through to the dining room, creating a wonderful open flow for family life and entertaining. The dining room benefits from a wide picture window framing the garden and direct access to the fitted kitchen, which in turn leads to a practical rear porch.

The ground floor also hosts two well‑proportioned double bedrooms, each with built‑in wardrobes, offering excellent versatility for those seeking accessible living or working-from-home space. A modern shower room completes the downstairs accommodation.

On the first floor, the layout provides two further bedrooms along with excellent storage. Bedroom three is filled with natural light from Velux windows and includes built‑in storage and a wash area, while bedroom four is a spacious double with additional fitted wardrobes. Both rooms enjoy pleasant open aspects and offer scope for further enhancement. The upper landing includes two deep cupboards, ideal for household storage.

Externally, the property truly excels. The expansive garden is beautifully private, bounded by mature hedging and landscaped with lawn, established shrubs and planting. A bright garden room sits to the rear of the house, providing a peaceful space to enjoy the outlook year‑round.

This is a much‑loved home with immense potential, rarely available, superbly located and offering the scale and flexibility to create something exceptional in a highly sought-after St Andrews address.

Summary of Accommodation

Ground Floor
• Entrance vestibule
• Reception hall with open-tread feature staircase
• Spacious lounge with fireplace and sliding doors to dining room
• Dining room with large picture window overlooking the garden
• Fitted kitchen with access to rear porch
• Two double bedrooms, each with built in wardrobes
• Contemporary shower room
• Garden room with views across the rear garden
First Floor
• Landing with two deep storage cupboards
• Bedroom three with built-in storage, Velux windows and wash area
• Bedroom four, a spacious double with built-in wardrobes
• Additional storage
Exterior
• Long private driveway
• Detached single garage
• Expansive enclosed gardens with mature shrubs, hedging and lawn
• Garden room offering additional flexible space

General Remarks & Information

Fixtures and Fittings:

Only appliances specifically mentioned in the sales particulars are included in the sale price. In all other aspects the treatment of fixtures and fittings within the relevant Conveyancing Standard Clauses apply.

Services:

Gas heating, mains water, electricity, broadband, telephone (subject to telephone providers’ regulations).

Viewing:

By appointment through Rettie St Andrews. 28 Bell Street, St Andrews, KY16 9UX. Email: standrews@rettie.co.uk Tel: 01334 237 700

Offers:

Offers should be submitted in Scottish Legal Form to the selling agents Rettie & Co. A closing date by which offers must be submitted may be fixed later. Please note that interested parties are advised to register their interest with the selling agents in order that they may be advised should a closing date be set. The seller reserves the right to accept any offer at any time.

Council Tax Band:

F

EPC Rating:

D

Postcode:

KY16 8SA

Tenure:

Freehold

Particulars Prepared:

4th March 2026

This property and other properties offered by Rettie & Co. & Rettie LLP's. can be viewed on our website at www.rettie.co.uk as well as Rightmove, OnTheMarket and The London Office.

The property is sold subject to and with the benefit of all servitude rights, burdens, reservations and wayleaves including rights of access and rights of way, whether public or private, light, support, drainage, water and wayleaves for masts, pylons, stays, cable, drains and water, gas and other pipes whether contained in the title deeds or informally constituted and whether or not referred to above.

Rettie, their clients and any joint agents give notice that:

  1. They are not authorised to make or give any representations or warranties in relation to the property either in writing or by word of mouth. Any information given is entirely without responsibility on the part of the agents or the sellers. These particulars do not form part of any offer or contract and must not be relied upon as statements or representations of fact.
  2. All Rettie floorplans are drawn to RICS standard. The text, photographs and plans are for guidance only and are not necessarily comprehensive and it should not be assumed that the property remains as photographed. Any error, omission or mis-statement shall not annul the sale or entitle any party to compensation or recourse to action at law. It should not be assumed that the property has all necessary planning, building regulation or other consents, including for its current use. Rettie & Co. & Rettie LLP’s have not tested any services, equipment or facilities. Purchasers must satisfy themselves by inspection or otherwise and ought to seek their own professional advice.
  3. All descriptions or references to condition are given in good faith only. Whilst every endeavour is made to ensure accuracy, please check with us on any points of especial importance to you, especially if intending to travel some distance. No responsibility can be accepted for expenses incurred in inspecting properties which have been sold or withdrawn.
Under the HMRC Anti Money Laundering legislation all offers to purchase a property on a cash basis or subject to mortgage require evidence of source of funds. This may include evidence of bank statements/funding source, mortgage or confirmation from a solicitor the purchaser has the funds to conclude the transaction.

All individuals involved in the transaction are required to produce proof of identity and proof of address. Rettie use electronic verification, if this is not possible original documents are acceptable.
  1. The property is sold with all faults and defects, whether of condition or otherwise and neither the seller nor Rettie & Co. or Rettie LLP’s, the selling agent, are responsible for such faults and defects, nor for any statement contained in the particulars of the property prepared by the said agent.
  2. The Purchaser(s) shall be deemed to acknowledge that they have not entered into contract in reliance on the said statements, that they are satisfied themselves as to the content of each of the said statements by inspection or otherwise and that no warranty or representation has been made by the seller or the said agents in relation to or in connection with the property.
  3. Any error, omission or misstatement in any of the said statements shall not entitle the purchaser(s) to rescind or to be discharged from this contract, nor entitle either party to compensation or damages nor in any circumstances to give either party any cause for action.

Location

Spottiswoode Gardens is a highly desirable and peaceful residential cul de sac on the western edge of St Andrews, perfectly placed for convenient access to the town’s excellent amenities while enjoying a sense of space and tranquillity. The property lies within easy reach of local primary and secondary schooling, the university campus buildings, and a wide selection of leisure and sports facilities, including the St Andrews Botanic Garden, the Kilrymont Sports Centre, and several renowned golf courses.

The historic town centre, with its array of shops, cafés, restaurants, beaches and cultural attractions, is just a short distance away, as are the world famous West Sands and East Sands beaches. Excellent transport links connect St Andrews to Dundee, Cupar, Edinburgh and beyond, with Leuchars railway station offering regular services to major Scottish cities.

This combination of a quiet, established residential location with close proximity to the town’s best amenities makes 27 Spottiswoode Gardens an excellent choice for families and those seeking a high quality St Andrews address.

Contact us