8 Balone Steading

St. Andrews, Fife, KY16 8NS

St. Andrews, Fife, KY16 8NS

2 Receptions
4 Beds
2 Baths

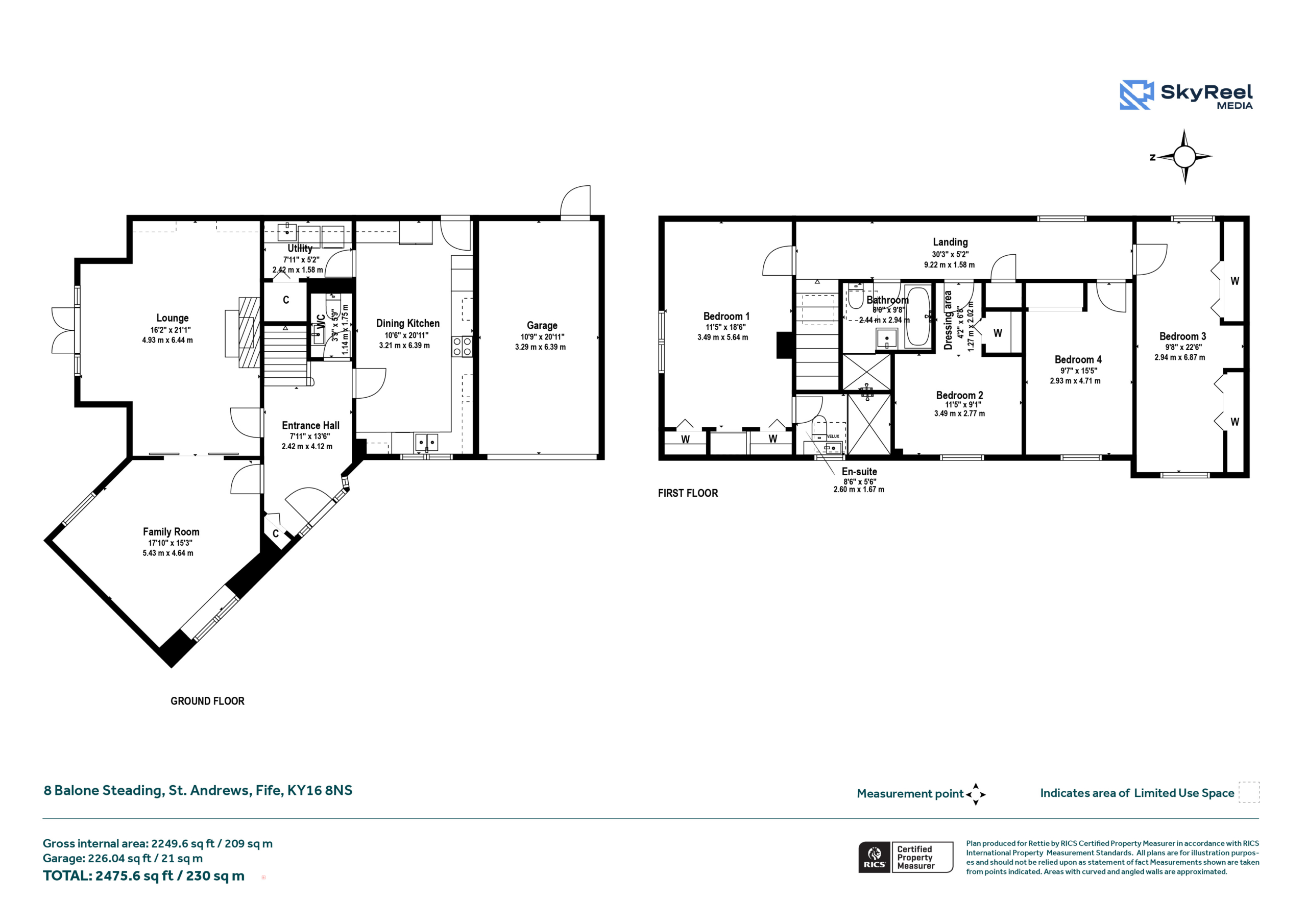
8 Balone Steading is an impressive four‑bedroom villa forming part of an exclusive steading development on the edge of St Andrews. The property offers generous, beautifully balanced accommodation with a warm and welcoming feel, combining character features with modern comforts.

The entrance hall provides an inviting introduction to the home, with access to the main living areas, a useful WC and a hall storage cupboard. The lounge is an elegant and spacious room, centred around a feature fireplace and filled with natural light from a bay with French doors opening directly to the garden. Sliding doors connect the lounge to a bright family room, allowing either open‑plan flow or separation as required. The family room enjoys lovely outlooks over the surrounding greenery, making it an ideal everyday living space.

The dining kitchen has a charming country aesthetic, fitted with timber units, ample worktop space and room for a dining table. From here, a door leads into the utility room, which offers excellent additional storage including a walk‑in cupboard and plumbing for laundry appliances. The utility provides direct access to a enclosed patio, which in turn leads to the integral garage, a convenient layout for day‑to‑day living.

Upstairs, the bedroom one is generously proportioned, featuring built‑in wardrobes and a modern en‑suite shower room. This room also benefits from views towards St Andrews. Three further double bedrooms all offer built‑in storage, and the family bathroom provides a four‑piece suite with bath and separate shower.

Externally, the property enjoys a peaceful setting with a monoblock driveway leading to the integral garage. The front garden features well‑established shrubs, lawn and a patio seating area, with an attractive backdrop of woodland and open green space. Gas central heating and double glazing complete the specification.

Summary of Accommodation

Ground Floor
• Entrance hall with storage and WC
• Lounge with feature fireplace and French doors
• Family room with garden outlook
• Dining kitchen
• Utility room with walk in cupboard and access to patio and garage
First Floor
• Bedroom 1 with built in wardrobes and en suite
• Three further double bedrooms with built in storage
• Family bathroom with bath and separate shower
External
• Integral garage and monoblock driveway
• Front garden with lawn, shrubs and patio area
• Woodland and green outlook
Additional Information
• Falls within the designated St Andrews area qualifying for a Resident’s Links Ticket and membership opportunities at The Duke’s Golf Course

General Remarks & Information

Fixtures and Fittings:

Only appliances specifically mentioned in the sales particulars are included in the sale price. In all other aspects the treatment of fixtures and fittings within the relevant Conveyancing Standard Clauses apply.

Services:

Gas heating, mains water, electricity, broadband, telephone (subject to telephone providers’ regulations).

Viewing:

By appointment through Rettie St Andrews. 28 Bell Street, St Andrews, KY16 9UX. Email: standrews@rettie.co.uk Tel: 01334 237 700

Offers:

Offers should be submitted in Scottish Legal Form to the selling agents Rettie & Co. A closing date by which offers must be submitted may be fixed later. Please note that interested parties are advised to register their interest with the selling agents in order that they may be advised should a closing date be set. The seller reserves the right to accept any offer at any time.

Council Tax Band:

G

EPC Rating:

C

Postcode:

KY16 8NS

Tenure:

Freehold

Particulars Prepared:

5th March 2026

This property and other properties offered by Rettie & Co. & Rettie LLP's. can be viewed on our website at www.rettie.co.uk as well as Rightmove, OnTheMarket and The London Office.

The property is sold subject to and with the benefit of all servitude rights, burdens, reservations and wayleaves including rights of access and rights of way, whether public or private, light, support, drainage, water and wayleaves for masts, pylons, stays, cable, drains and water, gas and other pipes whether contained in the title deeds or informally constituted and whether or not referred to above.

Rettie, their clients and any joint agents give notice that:

  1. They are not authorised to make or give any representations or warranties in relation to the property either in writing or by word of mouth. Any information given is entirely without responsibility on the part of the agents or the sellers. These particulars do not form part of any offer or contract and must not be relied upon as statements or representations of fact.
  2. All Rettie floorplans are drawn to RICS standard. The text, photographs and plans are for guidance only and are not necessarily comprehensive and it should not be assumed that the property remains as photographed. Any error, omission or mis-statement shall not annul the sale or entitle any party to compensation or recourse to action at law. It should not be assumed that the property has all necessary planning, building regulation or other consents, including for its current use. Rettie & Co. & Rettie LLP’s have not tested any services, equipment or facilities. Purchasers must satisfy themselves by inspection or otherwise and ought to seek their own professional advice.
  3. All descriptions or references to condition are given in good faith only. Whilst every endeavour is made to ensure accuracy, please check with us on any points of especial importance to you, especially if intending to travel some distance. No responsibility can be accepted for expenses incurred in inspecting properties which have been sold or withdrawn.
Under the HMRC Anti Money Laundering legislation all offers to purchase a property on a cash basis or subject to mortgage require evidence of source of funds. This may include evidence of bank statements/funding source, mortgage or confirmation from a solicitor the purchaser has the funds to conclude the transaction.

All individuals involved in the transaction are required to produce proof of identity and proof of address. Rettie use electronic verification, if this is not possible original documents are acceptable.
  1. The property is sold with all faults and defects, whether of condition or otherwise and neither the seller nor Rettie & Co. or Rettie LLP’s, the selling agent, are responsible for such faults and defects, nor for any statement contained in the particulars of the property prepared by the said agent.
  2. The Purchaser(s) shall be deemed to acknowledge that they have not entered into contract in reliance on the said statements, that they are satisfied themselves as to the content of each of the said statements by inspection or otherwise and that no warranty or representation has been made by the seller or the said agents in relation to or in connection with the property.
  3. Any error, omission or misstatement in any of the said statements shall not entitle the purchaser(s) to rescind or to be discharged from this contract, nor entitle either party to compensation or damages nor in any circumstances to give either party any cause for action.

Location

Balone Steading is ideally positioned on the western edge of St Andrews, offering a peaceful semi rural setting while being only a short distance from the town’s exceptional facilities. The property sits close to Lawhead Primary School and is within easy reach of the picturesque Lade Braes Walk, providing a scenic traffic free route into the historic town centre with its shops, cafés, restaurants and cultural attractions.

St Andrews is internationally acclaimed as the Home of Golf, home to the iconic Old Course, the Castle Course, and several additional championship venues operated by the St Andrews Links Trust. Of particular appeal to golf enthusiasts, this property lies within the designated catchment area that qualifies for a Resident’s Links Ticket. The town is also celebrated for its prestigious university, founded in 1410, one of the oldest in Britain. Schooling in the area is excellent, with Madras College offering respected state education and St Leonards providing a leading independent option.

Residents benefit from a wide range of amenities, including boutique shopping, high quality dining, leisure facilities, a cinema and three beautiful beaches. Excellent road links connect St Andrews to the wider Fife area, Dundee, and beyond, making Balone Steading a highly desirable location for those seeking both tranquillity and convenience.

Contact us