28 Andrew Lang Crescent

St. Andrews, Fife, KY16 8YL

St. Andrews, Fife, KY16 8YL

1 Receptions
3 Beds
2 Baths

28 Andrew Lang Crescent is an attractive, modern three-bedroom detached villa with garage, driveway and a low‑maintenance rear garden, quietly positioned within a desirable residential development on the western side of St Andrews. The property has been thoughtfully maintained and upgraded, offering bright, comfortable living spaces ideally suited to families, couples or those seeking a well-located home close to the town’s extensive amenities.

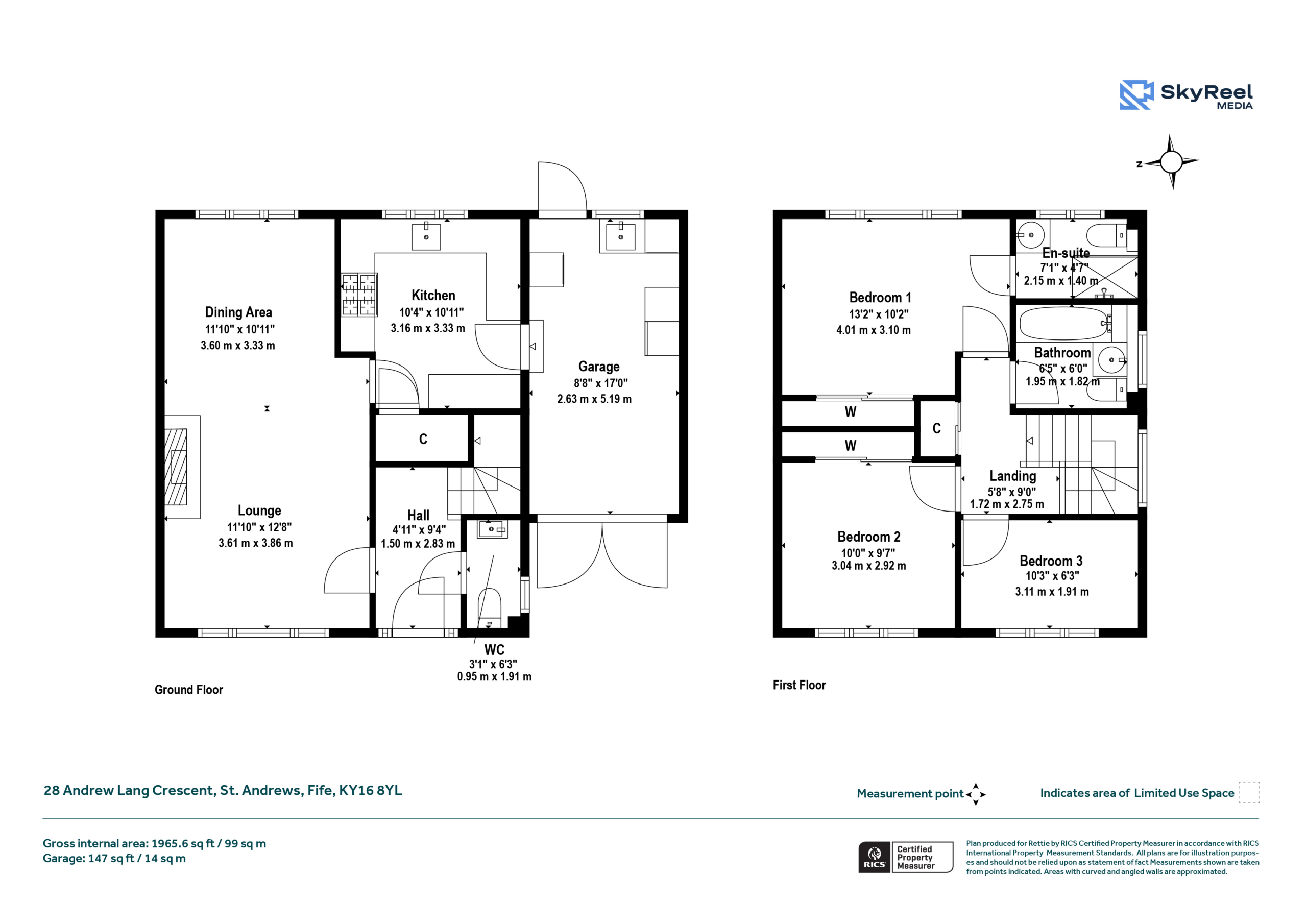
The ground floor features a welcoming entrance hall, a generous lounge with a contemporary feature electric fireplace, and a naturally bright dining area overlooking the rear garden. The sleek, modern fitted kitchen provides excellent storage, integrated appliances, a four‑burner gas hob, and a deep walk‑in cupboard, with direct access to the attached garage which incorporates a useful utility area with sink and fitted units. A convenient downstairs WC completes the ground floor.

Upstairs, the property offers three well-proportioned bedrooms, including a bedroom one with fitted wardrobes and a stylish en-suite shower room, a second double bedroom with fitted storage, a third single bedroom, and a modern family bathroom. Externally, the rear garden is fully enclosed and designed for easy maintenance, laid mainly to decorative gravel with a patio seating area and an attractive summer house. Additional benefits include gas central heating, double glazing, and off‑street parking.

Summary of Accommodation

Ground Floor
• Entrance Hall
• Lounge with feature electric fireplace
• Dining Area
• Modern fitted Kitchen with integrated appliances and large store cupboard
• Door to attached Garage with utility area
• WC
First Floor
• Bedroom one with fitted wardrobe and modern En-suite
• Second double Bedroom with fitted wardrobe
• Third single Bedroom
• Family Bathroom
Exterior
• Driveway and attached Garage
• Enclosed rear garden with patio and summer house
• Gas central heating and double glazing

General Remarks & Information

Fixtures and Fittings:

Only appliances specifically mentioned in the sales particulars are included in the sale price. In all other aspects the treatment of fixtures and fittings within the relevant Conveyancing Standard Clauses apply.

Services:

Gas heating, mains water, electricity, broadband, telephone (subject to telephone providers’ regulations).

Viewing:

By appointment through Rettie St Andrews. 28 Bell Street, St Andrews, KY16 9UX. Email: standrews@rettie.co.uk Tel: 01334 237 700

Offers:

Offers should be submitted in Scottish Legal Form to the selling agents Rettie & Co. A closing date by which offers must be submitted may be fixed later. Please note that interested parties are advised to register their interest with the selling agents in order that they may be advised should a closing date be set. The seller reserves the right to accept any offer at any time.

Council Tax Band:

E

EPC Rating:

C

Postcode:

KY16 8YL

Tenure:

Freehold

Particulars Prepared:

20th March 2026

This property and other properties offered by Rettie & Co. & Rettie LLP's. can be viewed on our website at www.rettie.co.uk as well as Rightmove, OnTheMarket and The London Office.

The property is sold subject to and with the benefit of all servitude rights, burdens, reservations and wayleaves including rights of access and rights of way, whether public or private, light, support, drainage, water and wayleaves for masts, pylons, stays, cable, drains and water, gas and other pipes whether contained in the title deeds or informally constituted and whether or not referred to above.

Rettie, their clients and any joint agents give notice that:

  1. They are not authorised to make or give any representations or warranties in relation to the property either in writing or by word of mouth. Any information given is entirely without responsibility on the part of the agents or the sellers. These particulars do not form part of any offer or contract and must not be relied upon as statements or representations of fact.
  2. All Rettie floorplans are drawn to RICS standard. The text, photographs and plans are for guidance only and are not necessarily comprehensive and it should not be assumed that the property remains as photographed. Any error, omission or mis-statement shall not annul the sale or entitle any party to compensation or recourse to action at law. It should not be assumed that the property has all necessary planning, building regulation or other consents, including for its current use. Rettie & Co. & Rettie LLP’s have not tested any services, equipment or facilities. Purchasers must satisfy themselves by inspection or otherwise and ought to seek their own professional advice.
  3. All descriptions or references to condition are given in good faith only. Whilst every endeavour is made to ensure accuracy, please check with us on any points of especial importance to you, especially if intending to travel some distance. No responsibility can be accepted for expenses incurred in inspecting properties which have been sold or withdrawn.
Under the HMRC Anti Money Laundering legislation all offers to purchase a property on a cash basis or subject to mortgage require evidence of source of funds. This may include evidence of bank statements/funding source, mortgage or confirmation from a solicitor the purchaser has the funds to conclude the transaction.

All individuals involved in the transaction are required to produce proof of identity and proof of address. Rettie use electronic verification, if this is not possible original documents are acceptable.
  1. The property is sold with all faults and defects, whether of condition or otherwise and neither the seller nor Rettie & Co. or Rettie LLP’s, the selling agent, are responsible for such faults and defects, nor for any statement contained in the particulars of the property prepared by the said agent.
  2. The Purchaser(s) shall be deemed to acknowledge that they have not entered into contract in reliance on the said statements, that they are satisfied themselves as to the content of each of the said statements by inspection or otherwise and that no warranty or representation has been made by the seller or the said agents in relation to or in connection with the property.
  3. Any error, omission or misstatement in any of the said statements shall not entitle the purchaser(s) to rescind or to be discharged from this contract, nor entitle either party to compensation or damages nor in any circumstances to give either party any cause for action.

Location

Andrew Lang Crescent forms part of a peaceful and well-established residential area on the western edge of St Andrews, offering an appealing balance of quiet living with excellent access to the town’s renowned amenities. St Andrews is internationally celebrated for its historic university, beautiful beaches and status as the “Home of Golf,” with seven world-famous courses including the Old Course.

The property is conveniently positioned for a wide range of local services including supermarkets, leisure facilities, schools and bus routes providing effortless travel into the town centre and surrounding areas. Nearby you will find scenic walking and cycling routes, with the Fife Coastal Path and West Sands Beach both easily reached.

St Andrews offers a vibrant mix of independent shops, restaurants, cafés, cultural attractions and sporting facilities, making it a highly desirable place to live. Excellent road connections allow for straightforward travel to Dundee, Cupar, the East Neuk villages, and wider commuter links across Fife and beyond.

Contact us