Colpy Den, Rameldry, Mill Road

Kingskettle, Cupar, KY15 7UA

Kingskettle, Cupar, KY15 7UA

1 Receptions
6 Beds
3 Baths

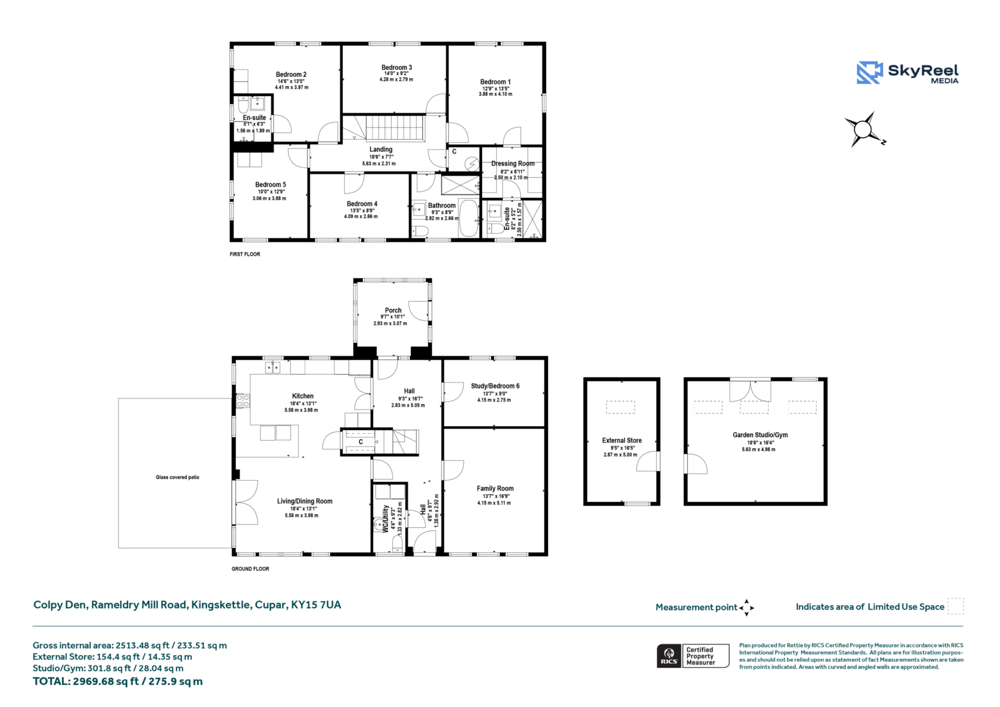
Colpy Den is a substantial and beautifully presented five bedroom, detached family home set within approximately 2.3 acres of gardens and woodland, offering an exceptional level of space and privacy in a tranquil rural setting. Thoughtfully designed with modern living in mind, the property combines generous room proportions, excellent natural light and versatile accommodation suited to family life, entertaining and home working.

The house is entered through a bright, spacious porch which leads into a welcoming hallway, where stairs rise to the first floor. The entire ground level benefits from under‑floor heating, creating a warm and comfortable environment throughout. Double doors open into the superb open‑plan kitchen, living and dining room. An expansive, sociable space at the heart of the home. The kitchen combines modern fittings with a charming country aesthetic and features a double Belfast sink, a solar electric hob with extractor hood, two ovens and integrated appliances. Windows on three sides frame attractive garden views, while patio doors lead directly out to a striking glass‑covered patio, seamlessly connecting indoor and outdoor living.

A separate family room provides a further cosy reception area, ideal for relaxation. The ground floor also includes a versatile study, which could easily serve as a sixth bedroom if required, and a WC/utility room.

Upstairs, the spacious landing gives access to five well-proportioned bedrooms. Two enjoy modern en‑suite shower rooms, while the family bathroom offers both a bath and separate shower cubicle. A deep fitted cupboard provides excellent additional storage.

Externally, Colpy Den offers outstanding outdoor space. A large gated driveway provides ample parking, and two modern, heated outbuildings sit to the side of the house, currently used as a home gym but versatile enough for a range of uses. The rear garden is wonderfully private, bordered by mature shrubs and planting, and enjoys sunshine throughout the day. The glass‑covered patio offers a sheltered space for year‑round entertaining, protected from south‑westerly winds. Beyond the garden lies an attractive area of woodland, enhancing the overall sense of seclusion.

Summary of Accommodation

Ground Floor
• Entrance porch and hallway
• Open plan kitchen / living / dining room
• Family room
• Study / sixth bedroom
• WC / utility room
• Under floor heating throughout
First Floor
• Five bedrooms
• Two en suite shower rooms
• Family bathroom
• Deep fitted cupboard
Exterior
• Approx. 2.3 acres of gardens and woodland
• Gated driveway with ample parking
• Two modern heated outbuildings
• Private rear garden with lawns and planting
• Glass covered patio

General Remarks & Information

Fixtures and Fittings:

Only appliances specifically mentioned in the sales particulars are included in the sale price. In all other aspects the treatment of fixtures and fittings within the relevant Conveyancing Standard Clauses apply.

Services:

Air source heat pump, mains water, electricity, under floor heating throughout the ground floor, broadband, telephone (subject to telephone providers’ regulations).
Drainage is connected to a Bio-Disc system in the garden.

Viewing:

By appointment through Rettie St Andrews. 28 Bell Street, St Andrews, KY16 9UX. Email: standrews@rettie.co.uk Tel: 01334 237 700

Offers:

Offers should be submitted in Scottish Legal Form to the selling agents Rettie & Co. A closing date by which offers must be submitted may be fixed later. Please note that interested parties are advised to register their interest with the selling agents in order that they may be advised should a closing date be set. The seller reserves the right to accept any offer at any time.

Council Tax Band:

G

Postcode:

KY15 7UA

Tenure:

Freehold

Particulars Prepared:

11th March 2026

This property and other properties offered by Rettie & Co. & Rettie LLP's. can be viewed on our website at www.rettie.co.uk as well as Rightmove, OnTheMarket and The London Office.

The property is sold subject to and with the benefit of all servitude rights, burdens, reservations and wayleaves including rights of access and rights of way, whether public or private, light, support, drainage, water and wayleaves for masts, pylons, stays, cable, drains and water, gas and other pipes whether contained in the title deeds or informally constituted and whether or not referred to above.

Rettie, their clients and any joint agents give notice that:

  1. They are not authorised to make or give any representations or warranties in relation to the property either in writing or by word of mouth. Any information given is entirely without responsibility on the part of the agents or the sellers. These particulars do not form part of any offer or contract and must not be relied upon as statements or representations of fact.
  2. All Rettie floorplans are drawn to RICS standard. The text, photographs and plans are for guidance only and are not necessarily comprehensive and it should not be assumed that the property remains as photographed. Any error, omission or mis-statement shall not annul the sale or entitle any party to compensation or recourse to action at law. It should not be assumed that the property has all necessary planning, building regulation or other consents, including for its current use. Rettie & Co. & Rettie LLP’s have not tested any services, equipment or facilities. Purchasers must satisfy themselves by inspection or otherwise and ought to seek their own professional advice.
  3. All descriptions or references to condition are given in good faith only. Whilst every endeavour is made to ensure accuracy, please check with us on any points of especial importance to you, especially if intending to travel some distance. No responsibility can be accepted for expenses incurred in inspecting properties which have been sold or withdrawn.
Under the HMRC Anti Money Laundering legislation all offers to purchase a property on a cash basis or subject to mortgage require evidence of source of funds. This may include evidence of bank statements/funding source, mortgage or confirmation from a solicitor the purchaser has the funds to conclude the transaction.

All individuals involved in the transaction are required to produce proof of identity and proof of address. Rettie use electronic verification, if this is not possible original documents are acceptable.
  1. The property is sold with all faults and defects, whether of condition or otherwise and neither the seller nor Rettie & Co. or Rettie LLP’s, the selling agent, are responsible for such faults and defects, nor for any statement contained in the particulars of the property prepared by the said agent.
  2. The Purchaser(s) shall be deemed to acknowledge that they have not entered into contract in reliance on the said statements, that they are satisfied themselves as to the content of each of the said statements by inspection or otherwise and that no warranty or representation has been made by the seller or the said agents in relation to or in connection with the property.
  3. Any error, omission or misstatement in any of the said statements shall not entitle the purchaser(s) to rescind or to be discharged from this contract, nor entitle either party to compensation or damages nor in any circumstances to give either party any cause for action.

Location

Colpy Den enjoys a peaceful rural position on Rameldry Mill Road, close to the village of Kingskettle and conveniently placed for the amenities of Cupar, Glenrothes and the wider North East Fife area. Kingskettle provides everyday facilities, including a primary school, while Cupar offers a comprehensive range of shops, cafés, restaurants, supermarkets and essential services. The area is well served for both primary and secondary schooling, with several highly regarded options within easy reach.

Transport links are excellent for a rural setting. Ladybank Railway Station provides regular services to Edinburgh, Dundee, Perth and beyond, making the property well suited to commuters. Road connections offer easy access to Cupar, Glenrothes, St Andrews and Dunfermline, while Edinburgh Airport is also within comfortable travelling distance.

The surrounding countryside is renowned for its beauty, with rolling farmland, woodland walks and cycling routes on the doorstep. Outdoor enthusiasts will appreciate proximity to the Lomond Hills Regional Park, while golf lovers are well catered for with a wide choice of courses across Fife, including world famous St Andrews. The beaches of the East Neuk are also within an easy drive, providing excellent options for days out.

Contact us