Rhubarb Cottage, 7 Main Street

Kilrenny, Anstruther, KY10 3JL

Kilrenny, Anstruther, KY10 3JL

1 Receptions
3 Beds
1 Baths

Rhubarb Cottage is a charming and deceptively spacious three‑bedroom cottage set in the heart of the highly regarded East Neuk village of Kilrenny. The property offers a warm and welcoming interior full of character, with exposed brickwork, original stove and a relaxed country atmosphere throughout.

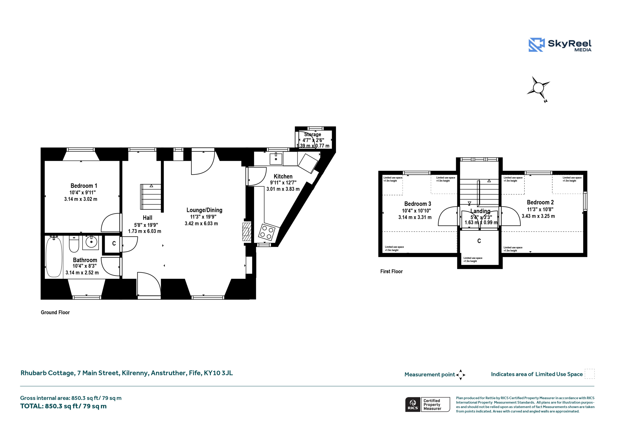
The front door opens into an entrance hall leading through to an open‑plan lounge and dining room. This beautifully proportioned living space forms the heart of the home and enjoys dual aspects to both the Main Street and the rear garden, allowing excellent natural light throughout the day. The original stove set within the fireplace creates a charming focal point, adding character to the room and enhancing its warm, inviting atmosphere.

A kitchen area sits adjacent to the living space and is enhanced by an attractive exposed brick wall, adding texture and charm. The kitchen is well laid out with fitted units and an electric cooker, offering a practical yet characterful workspace.

The ground floor also benefits from a generously sized double bedroom and a bathroom, providing flexible accommodation and the option for single‑level living if required.

On the upper floor, there are two further bedrooms, both enjoying peaceful rear aspects overlooking the garden. One of the bedrooms features a striking exposed brick wall, reinforcing the cottage’s individual character. The landing provides access to a useful eaves storage cupboard.

Externally, Rhubarb Cottage enjoys a particularly private and established rear garden, laid mainly to lawn with mature trees and planting. There is a patio area ideal for outdoor dining, along with an external store, creating a tranquil and secluded outdoor space rarely found in such a central village setting.

Summary of Accommodation

• Entrance hall
• Open plan lounge and dining room with original stove
• Kitchen area with exposed brick wall and electric cooker
• Ground floor double bedroom
• Ground floor bathroom
• Two upper floor bedrooms, both with rear outlooks
• Landing with eaves storage
• Private rear garden with lawn, mature trees, patio area and external store

General Remarks & Information

Fixtures and Fittings:

Only appliances specifically mentioned in the sales particulars are included in the sale price. In all other aspects the treatment of fixtures and fittings within the relevant Conveyancing Standard Clauses apply.

Services:

Gas heating, mains water, electricity, broadband, telephone (subject to telephone providers’ regulations).

Viewing:

By appointment through Rettie St Andrews. 28 Bell Street, St Andrews, KY16 9UX. Email: standrews@rettie.co.uk Tel: 01334 237 700

Offers:

Offers should be submitted in Scottish Legal Form to the selling agents Rettie & Co. A closing date by which offers must be submitted may be fixed later. Please note that interested parties are advised to register their interest with the selling agents in order that they may be advised should a closing date be set. The seller reserves the right to accept any offer at any time.

Council Tax Band:

C

EPC Rating:

D

Postcode:

KY10 3JL

Tenure:

Freehold

Particulars Prepared:

8th April 2026

This property and other properties offered by Rettie & Co. & Rettie LLP's. can be viewed on our website at www.rettie.co.uk as well as Rightmove, OnTheMarket and The London Office.

The property is sold subject to and with the benefit of all servitude rights, burdens, reservations and wayleaves including rights of access and rights of way, whether public or private, light, support, drainage, water and wayleaves for masts, pylons, stays, cable, drains and water, gas and other pipes whether contained in the title deeds or informally constituted and whether or not referred to above.

Rettie, their clients and any joint agents give notice that:

  1. They are not authorised to make or give any representations or warranties in relation to the property either in writing or by word of mouth. Any information given is entirely without responsibility on the part of the agents or the sellers. These particulars do not form part of any offer or contract and must not be relied upon as statements or representations of fact.
  2. All Rettie floorplans are drawn to RICS standard. The text, photographs and plans are for guidance only and are not necessarily comprehensive and it should not be assumed that the property remains as photographed. Any error, omission or mis-statement shall not annul the sale or entitle any party to compensation or recourse to action at law. It should not be assumed that the property has all necessary planning, building regulation or other consents, including for its current use. Rettie & Co. & Rettie LLP’s have not tested any services, equipment or facilities. Purchasers must satisfy themselves by inspection or otherwise and ought to seek their own professional advice.
  3. All descriptions or references to condition are given in good faith only. Whilst every endeavour is made to ensure accuracy, please check with us on any points of especial importance to you, especially if intending to travel some distance. No responsibility can be accepted for expenses incurred in inspecting properties which have been sold or withdrawn.
Under the HMRC Anti Money Laundering legislation all offers to purchase a property on a cash basis or subject to mortgage require evidence of source of funds. This may include evidence of bank statements/funding source, mortgage or confirmation from a solicitor the purchaser has the funds to conclude the transaction.

All individuals involved in the transaction are required to produce proof of identity and proof of address. Rettie use electronic verification, if this is not possible original documents are acceptable.
  1. The property is sold with all faults and defects, whether of condition or otherwise and neither the seller nor Rettie & Co. or Rettie LLP’s, the selling agent, are responsible for such faults and defects, nor for any statement contained in the particulars of the property prepared by the said agent.
  2. The Purchaser(s) shall be deemed to acknowledge that they have not entered into contract in reliance on the said statements, that they are satisfied themselves as to the content of each of the said statements by inspection or otherwise and that no warranty or representation has been made by the seller or the said agents in relation to or in connection with the property.
  3. Any error, omission or misstatement in any of the said statements shall not entitle the purchaser(s) to rescind or to be discharged from this contract, nor entitle either party to compensation or damages nor in any circumstances to give either party any cause for action.

Location

Kilrenny is one of the most picturesque villages in the East Neuk of Fife, steeped in history and renowned for its traditional stone cottages, historic parish church and strong sense of community. The village lies approximately one mile from the bustling coastal town of Anstruther and enjoys easy access to the beautiful Fife coastline.
Anstruther offers an excellent range of local amenities including independent shops, cafés, restaurants, a marina and well regarded primary and secondary schooling. The wider East Neuk area is celebrated for its scenic coastal walks, beaches, fishing villages and thriving culture of local food producers and artists.

The region is internationally recognised for golf, with world class courses nearby at Crail, Kingsbarns and St Andrews, the latter being around ten miles away. St Andrews also provides a wider range of shopping, dining and leisure facilities, along with the renowned university.

Kilrenny is well placed for commuting, with road links connecting easily to Cupar, St Andrews, Dundee and Edinburgh, making Rhubarb Cottage ideally suited as a permanent residence, a coastal retreat or a charming second home.

Contact us