13 Suthren Yett

Prestonpans, East Lothian, EH32 9GL

Emma Hay

Associate Director

0131 322 2651

emma.hay@rettie.co.uk

Prestonpans, East Lothian, EH32 9GL

3 Receptions
4 Beds
2 Baths

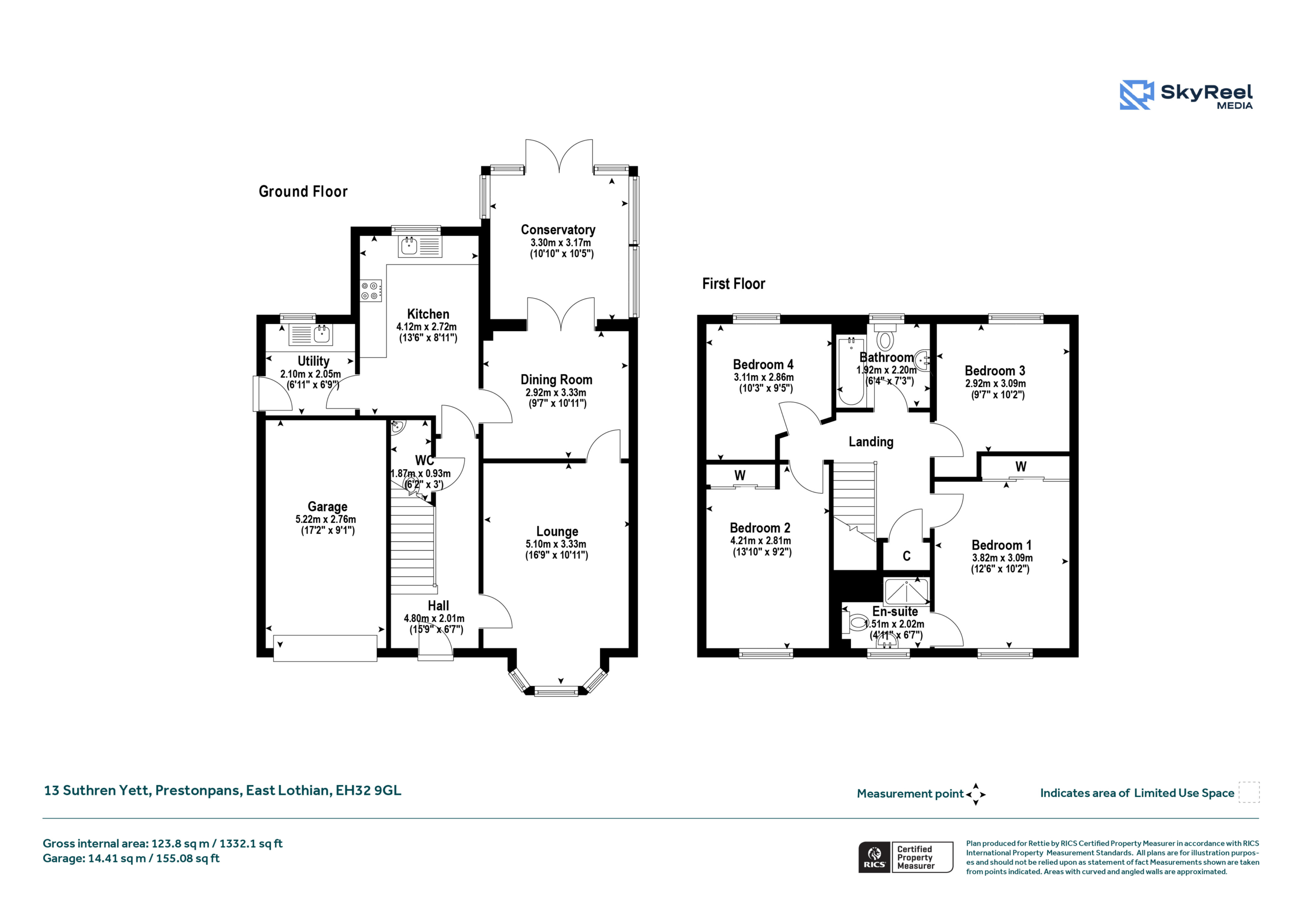
This impressive four-bedroom detached home offers generous and well-balanced accommodation, ideal for modern family living. The ground floor features a welcoming sitting room, perfect for relaxation, alongside a separate dining room providing an excellent space for entertaining. The well-appointed kitchen is complemented by a bright conservatory, creating a lovely additional living area with views over the garden. A practical utility room adds further convenience and is plumbed for a washing machine and home to the gas boiler, with a side door giving access to the rear garden and single garage.

Upstairs, there are four spacious bedrooms, including a superb principal bedroom benefiting from built-in wardrobes and a stylish en suite shower room. The remaining bedrooms are served by a contemporary family bathroom, fitted with a bath, WC, and wash hand basin.

Garden:

Externally, the property enjoys a private rear garden which is securely fenced and predominantly laid to lawn, with a decking area that is perfect for alfresco dining and outdoor entertaining.

Garage:

A single garage with electricity and partial shelving provides excellent storage and parking solutions, completing this attractive family home.

Emma Hay

Associate Director

0131 322 2651

emma.hay@rettie.co.uk

Summary of Accommodation

Summary of Accommodation

Ground Floor: Entrance Hall, Sitting Room, Dining Room, Conservatory, Kitchen, Utility Room and Cloakroom.

First Floor: Landing, Principal Bedroom with En Suite Shower Room, Three Further Double Bedrooms and a Family Bathroom.

Garden: Predominantly laid to lawn with decked area.

Garage: Single Garage with electricity and parking in front.

General Remarks & Information

Fixtures and Fittings:

Only appliances specifically mentioned in the sales particulars are included in the sale price. In all other aspects the treatment of fixtures and fittings within the relevant Conveyancing Standard Clauses apply.

Services:

Gas heating, mains water, electricity, broadband, telephone (subject to telephone providers’ regulations).

Viewing:

By appointment through Rettie Town and Country Homes. 11 Wemyss Place, Edinburgh, EH3 6DH. Email: kelli.blyth@rettie.co.uk Tel: 0131 624 4183

Offers:

Offers should be submitted in Scottish Legal Form to the selling agents Rettie & Co. A closing date by which offers must be submitted may be fixed later. Please note that interested parties are advised to register their interest with the selling agents in order that they may be advised should a closing date be set. The seller reserves the right to accept any offer at any time.

Postcode:

EH32 9GL

Tenure:

Not Specified

This property and other properties offered by Rettie & Co. & Rettie LLP's. can be viewed on our website at www.rettie.co.uk as well as Rightmove, OnTheMarket and The London Office.

The property is sold subject to and with the benefit of all servitude rights, burdens, reservations and wayleaves including rights of access and rights of way, whether public or private, light, support, drainage, water and wayleaves for masts, pylons, stays, cable, drains and water, gas and other pipes whether contained in the title deeds or informally constituted and whether or not referred to above.


Under the HMRC Anti Money Laundering legislation all offers to purchase a property on a cash basis or subject to mortgage require evidence of source of funds. This may include evidence of bank statements/funding source, mortgage or confirmation from a solicitor the purchaser has the funds to conclude the transaction.

All individuals involved in the transaction are required to produce proof of identity and proof of address. Rettie use electronic verification, if this is not possible original documents are acceptable.


Location

Perfect for modern family living, 13 Suthren Yett enjoys a peaceful position within a sought-after residential development in the charming coastal town of Prestonpans. The property benefits from a quiet, family-friendly setting while remaining conveniently close to excellent local amenities, including shops, schools, and leisure facilities. Prestonpans offers a rich sense of community alongside picturesque seaside walks and open green spaces, ideal for outdoor enthusiasts. For commuters, the location is particularly appealing, with easy access to the A1 providing swift connections to Edinburgh and beyond, as well as a nearby train station offering regular services into the city. Combining tranquillity with accessibility, this is an ideal setting for those seeking a balanced lifestyle by the coast.

Contact us

    Emma Hay

    Associate Director

    0131 322 2651

    emma.hay@rettie.co.uk