The Pier House, Kames

Tighnabruaich, Argyll and Bute, PA21 2AF

Kevin Maley

Director of Country House Sales

07384810883

kevin.maley@rettie.co.uk

Tighnabruaich, Argyll and Bute, PA21 2AF

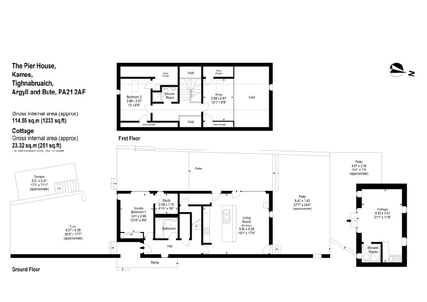
3 Beds

The Pier House, Kames is a delightful contemporary detached waterside home occupying a spectacular location with its own pier, beachfront and separate detached cottage.

This stunning architect designed home sits in the most breathtaking of locations on Scotland’s west coast, close to the village of Tighnabruiach, a hugely popular sailing destination within the Kyles of Bute. Situated on the site of the Kames Pier, once a busy stop off point for passengers on the numerous pleasure steamers that were so popular in the 19th and first half of the 20th century, the house has a pleasing contemporary exterior which fits well into its surroundings. It has been architect designed by Studio KAP to showcase the spectacular views and to make clever use of the space within.

The accommodation begins with a light and airy hallway which leads into the main living space: a fabulous sitting room/dining kitchen which is double height at one end and features a modern log burner with stainless steel flue. An expansive full height picture window and glazed door frame the stunning outlooks and open onto the extensive decked terrace which wraps around two sides of the house. The sleek and stylish kitchen area has its own door out to the terrace and benefits from a gas hob, electric oven, concealed integrated fridge/freezer and washing machine. Double bedroom 1 is on the ground floor and enjoys beautiful views, has built-in storage and a study or dressing room off. Completing this level is an attractive bathroom. 

Stairs lead up to the first floor where there is a gallery level above the sitting room with Velux windows which is currently used as a snug/living room but could also work as another bedroom. Double bedroom 2 has a shower room adjacent. 

Outside, the decked terrace is a fabulous suntrap and the ideal place to sit out and take in the mesmerising views, with plenty of space for entertaining. The remains of the original pier now forms a private grassed pier which makes another wonderful alfresco spot and leads down to the water. Pier House also owns a stretch of the beach in front and adjacent to the cottage to the south of the property.

Plans are included to extend the property with Argyll and Bute Planning department. Further details are available on request.

Adjacent to the main house and included in the sale is Pier House Cottage, a cosy detached traditional cottage which has operated successfully since 2008 providing visitors to the area with an unforgettable holiday experience. The cottage is fully accredited through the Scottish Government as a short term holiday let and has a healthy advanced booking of new and returning guests.

 

 

 

 

Kevin Maley

Director of Country House Sales

07384810883

kevin.maley@rettie.co.uk

Summary of Accommodation

• Versatile accommodation offering space for three to four bedrooms.
• Spectacular waterside location on the site of the Kames Pier
• Includes both historical pier and private beach frontage
• Award winning Scottish Architect "StudioKAP" designed home with expansive views over the Kyles of Bute
• Expansive wraparound decked and lawned terrace
• Detached bothy cottage operating as successful holiday let
• Approx. gross internal floor area 1233 sq ft (main house) and 215 sq ft (cottage)

General Remarks & Information

Fixtures and Fittings:

Only appliances specifically mentioned in the sales particulars are included in the sale price. In all other aspects the treatment of fixtures and fittings within the relevant Conveyancing Standard Clauses apply.

Services:

Gas heating, mains water, electricity, broadband, telephone (subject to telephone providers’ regulations).

Viewing:

By appointment through Rettie Town and Country (West). 147 Bath Street, Glasgow, Glasgow, G2 4SQ. Email: townandcountrywest@rettie.co.uk Tel: 0141 648 8853

Offers:

Offers should be submitted in Scottish Legal Form to the selling agents Rettie & Co. A closing date by which offers must be submitted may be fixed later. Please note that interested parties are advised to register their interest with the selling agents in order that they may be advised should a closing date be set. The seller reserves the right to accept any offer at any time.

Postcode:

PA21 2AF

This property and other properties offered by Rettie & Co. & Rettie LLP's. can be viewed on our website at www.rettie.co.uk as well as Rightmove, OnTheMarket and The London Office.

The property is sold subject to and with the benefit of all servitude rights, burdens, reservations and wayleaves including rights of access and rights of way, whether public or private, light, support, drainage, water and wayleaves for masts, pylons, stays, cable, drains and water, gas and other pipes whether contained in the title deeds or informally constituted and whether or not referred to above.

Rettie, their clients and any joint agents give notice that:

  1. They are not authorised to make or give any representations or warranties in relation to the property either in writing or by word of mouth. Any information given is entirely without responsibility on the part of the agents or the sellers. These particulars do not form part of any offer or contract and must not be relied upon as statements or representations of fact.
  2. All Rettie floorplans are drawn to RICS standard. The text, photographs and plans are for guidance only and are not necessarily comprehensive and it should not be assumed that the property remains as photographed. Any error, omission or mis-statement shall not annul the sale or entitle any party to compensation or recourse to action at law. It should not be assumed that the property has all necessary planning, building regulation or other consents, including for its current use. Rettie & Co. & Rettie LLP’s have not tested any services, equipment or facilities. Purchasers must satisfy themselves by inspection or otherwise and ought to seek their own professional advice.
  3. All descriptions or references to condition are given in good faith only. Whilst every endeavour is made to ensure accuracy, please check with us on any points of especial importance to you, especially if intending to travel some distance. No responsibility can be accepted for expenses incurred in inspecting properties which have been sold or withdrawn.
Under the HMRC Anti Money Laundering legislation all offers to purchase a property on a cash basis or subject to mortgage require evidence of source of funds. This may include evidence of bank statements/funding source, mortgage or confirmation from a solicitor the purchaser has the funds to conclude the transaction.

All individuals involved in the transaction are required to produce proof of identity and proof of address. Rettie use electronic verification, if this is not possible original documents are acceptable.
  1. The property is sold with all faults and defects, whether of condition or otherwise and neither the seller nor Rettie & Co. or Rettie LLP’s, the selling agent, are responsible for such faults and defects, nor for any statement contained in the particulars of the property prepared by the said agent.
  2. The Purchaser(s) shall be deemed to acknowledge that they have not entered into contract in reliance on the said statements, that they are satisfied themselves as to the content of each of the said statements by inspection or otherwise and that no warranty or representation has been made by the seller or the said agents in relation to or in connection with the property.
  3. Any error, omission or misstatement in any of the said statements shall not entitle the purchaser(s) to rescind or to be discharged from this contract, nor entitle either party to compensation or damages nor in any circumstances to give either party any cause for action.

Location

The Pier House occupies a remarkable location which directly fronts the Kyles of Bute. It is very conveniently situated at the heart of the village with its good local facilities. Dunoon and Rothesay provide wider shopping facilities. Local clubs cater for art, music, horticultural and craft interests amongst others. Tighnabruaich has its own primary school and secondary schooling (day and boarding) is available at Dunoon (24 miles). 

The area offers much in the way of outdoor pursuits and is well known for its natural beauty and dramatic scenery. Ever popular with the sailing fraternity, the area also has much to attract wildlife enthusiasts – cormorants, herons, guillemots, seals, dolphins, porpoises and basking sharks have all been observed. Sea, river and loch fishing are available in the area. In addition, there are a number of commercially run shoots on nearby estates which also offer stalking by arrangement.

Argyll Secret Coast is a vibrant and inclusive community offering a wide range of activities and amenities for residents and visitors alike. 

The area features a 9 hole golf course, a local sailing school, tennis court, 5 aside, shinty pitch, and local clubs offers facilities for pickleball, indoor bowls, badminton, table tennis, and yoga, catering to diverse interests. 

The Portavadie spa and marina add to the appeal, with a leisure club that includes a gym, indoor and outdoor pools, a spa, and a restaurant. 

The property is conveniently connected by the Cal Mac Ferry to Gourock, Kintyre Peninsula and Isle of Bute. The local community also boasts a number of high quality restaurants, cafés, an art gallery, beauty therapy services, and a community forest with walking and cycle tracks. 

Beautiful beaches at Ostel Bay enhance the coastal charm, and during the summer, the historic Waverley paddle steamer regularly visits Tighnabruaich, sailing past the iconic Pier House.

Contact us

    Kevin Maley

    Director of Country House Sales

    07384810883

    kevin.maley@rettie.co.uk